Moderne Büro-/Geschäftsflächen in Wals! Optimal auch für Ärzte, Friseur, Yoga/Pilatesstudio uvm...
Büro / Praxis
,
5071
Wals
Wals bietet eine ideale Kombination aus naturnahem Umfeld und hervorragender Infrastruktur. Durch die unmittelbare Nähe zur Stadt Salzburg sowie die sehr gute Verkehrsanbindung ist der Standort sowohl für Kunden als auch für Mitarbeiter optimal erreichbar. Die ruhige, aber zentrale Lage macht Wals zu einem begehrten Gewerbestandort für Unternehmen, die Wert auf gute Erreichbarkeit, Lebensqualität und ein professionelles Umfeld legen.
Beschreibung der Immobilie
Moderne Büro-/Geschäftsflächen in Wals! Optimal auch für Ärzte, Friseur, Yoga/Pilatesstudio uvm...
Im Herzen von Wals entsteht ein modernes Wohn- und Geschäftshaus, das architektonische Eleganz mit nachhaltiger Bauweise vereint. In zeitgemäßer Architektur und hochwertiger Holzbauweise realisieren wir neue
2- und 3-Zimmer-Eigentumswohnungen im 1. und 2.Obergeschoß sowie attraktive Gewerbeeinheiten im Erdgeschoß in bewährter Massivbauweise.
Ein modernes Arbeitsfeeling an einem gut erreichbaren Standort! Optimal geeignet für die verschiedensten Branchen – ob Büro, Praxis, Kanzlei, Ordination bis hin zu Showroom und Dienstleistungsflächen.
Individuelle und flexible Planung möglich.
Drei Mehrfamilienhäuser mit Gewerbenutzung im Erdgeschoss.
Bis zu ca. 320 m² Gesamtnutzfläche im Erdgeschoss - Haus B möglich!
Derzeit aufgeteilt in zwei Einheiten:
Gewerbefläche B1
- Ca. 225,85 m² Nutzfläche
- Ca. 46,00 m² Terrasse
- Ca. 130,00 m² Garten
- Lagerraum im Keller mit ca. 20,79 m²
- Zusammenlegung und Nutzungsbezogene Anpassung möglich / Flexible Grundrissgestaltung!
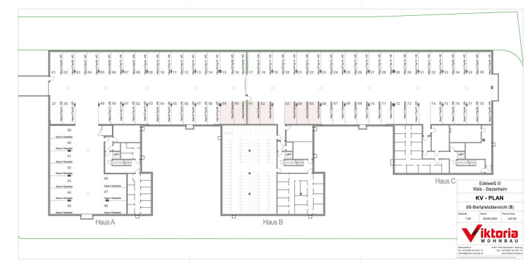
- 7 Tiefgaragenstellplätze und 10 überdachte PKW-Freiplätze verfügbar
- Besucherstellplätze
- Fahrradabstellbereiche
- öffentlicher Kinderspielplatz
- Lift
- HWB 49, fGEE 0,70
- Hochwertige Bauweise
- Fassade mit Holzbauweise im Obergeschoss
- Pflegeleichte Kunststofffenster 3-Scheiben Wärmeschutzverglasung
- PVC Bodenbeläge (Laminat)
- Großformatige Fliesen (60x30cm)
- Terrassen mit massiven Betonsteinplatten
- Weiße Innentüren mit Holzzargen
- Leerkästen für Sonnenschutz inkl. Elektro-Leerverrohrung
- Pelletszentralheizung
- Photovoltaikanlage
- Fußbodenheizung
- Gediegene Sanitärausstattung
- Oberflächenfertige Ausstattung
Optimal geeignet für zahlreiche Zielgruppen wie:
- Ärzte und medizinische Berufe
- Friseur, Yoga/Pilatesstudio
- Steuerberater, Makler, Werbeagenturen, IT-Unternehmen uvm.
Infrastruktur / Entfernungen
Gesundheit
Arzt <500m
Apotheke <500m
Klinik <4.000m
Krankenhaus <4.500m
Kinder & Schulen
Schule <1.000m
Kindergarten <1.500m
Universität <5.000m
Höhere Schule <5.000m
Nahversorgung
Supermarkt <500m
Bäckerei <500m
Einkaufszentrum <4.500m
Sonstige
Bank <500m
Geldautomat <500m
Polizei <500m
Post <500m
Verkehr
Bus <500m
Bahnhof <2.500m
Autobahnanschluss <1.000m
Flughafen <2.500m
Angaben Entfernung Luftlinie / Quelle: OpenStreetMap
Eckdaten Objektnr. 5594/1164
Art: | Büro / Praxis |
Land: | Österreich |
Baujahr: | 2025 |
Zustand: | Erstbezug |
Alter: | Neubau |
Kaufpreis: | 1.327.998,00 € |
Nutzfläche: | 225,85 m² |
Terrassen: | 1 |
Garten: | 130,00 m² |
Keller: | 20,79 m² |
Heizwärmebedarf: | 49,00 kWh/m²a |
fGEE: | 0,70 |
Ausstattung
Fliesen, Laminatboden, Fußbodenheizung, Personenaufzug, Kabel/Satelliten-TV, Parkplatz, Tiefgarage, Wasch/Trockenraum
Ihre persönliche Beratung

Viktoria Wohnbau Vertrieb
Viktoria-Haus Immobilien - und Bauträgergesellschaft mbH
T +43 662 85 16 00-23