Sonnenseite des Lebens – stilvolles Wohnen mit Weitblick ins Grüne in Marchtrenk
Wohnung
,
4614
Marchtrenk
Die Umgebung? Eine ruhige Seitenstraße in einem gewachsenen Wohngebiet mit angenehmer Nachbarschaft. Einkaufsmöglichkeiten, Schulen, Kindergärten und öffentliche Verkehrsmittel befinden sich in der Nähe – die perfekte Balance aus Stadtnähe und Naturidylle.
Beschreibung der Immobilie
Sonnenseite des Lebens – stilvolles Wohnen mit Weitblick ins Grüne in Marchtrenk
Sonnenseite des Lebens – stilvolles Wohnen mit Weitblick ins Grüne in Marchtrenk
Wohntraum mit hochwertiger Ausstattung, großem Balkon und perfektem Grundriss – in ruhiger Marchtrenker Lage
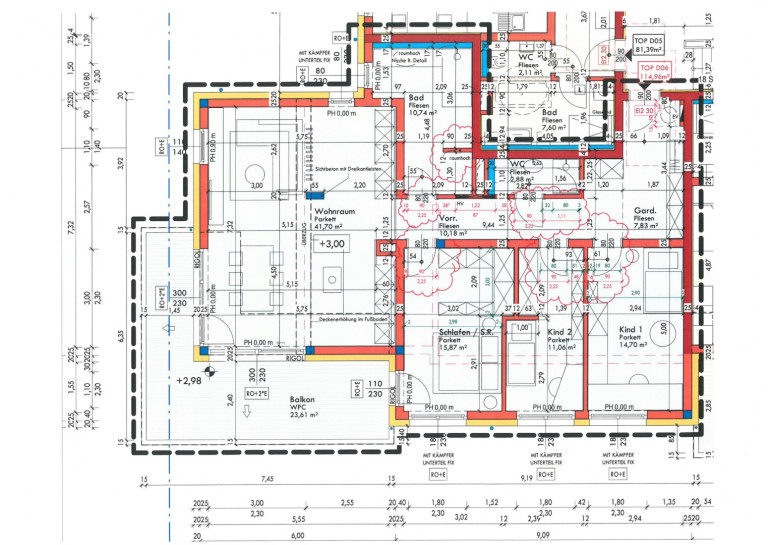
Schon beim Eintreten durch die massive Wohnungstür wird klar: Diese Wohnung ist mehr als nur ein Ort zum Wohnen – sie ist ein stilvoller Rückzugsort, ein Refugium für alle, die Design, Ruhe und Qualität schätzen. Auf rund 115 m² Wohnfläche, ergänzt durch einen großzügigen Balkon mit 23,6 m², entfaltet sich ein Zuhause, das Licht, Raum und Stil in perfekter Harmonie vereint.
Bereits der Eingangsbereich empfängt mit eleganten Einbauschränken und einer spiegelverkleideten Garderobe. Der edle Terrazzo-Boden im Flur, dem Badezimmer und dem Gäste-WC zieht sofort die Blicke auf sich – mit seiner markanten Maserung und mineralischen Optik verleiht er den Räumen eine urbane Eleganz, die einen reizvollen Kontrast zum warmen Echtholzparkett in den Wohn- und Schlafbereichen bildet.
Drei Schlafzimmer, darunter ein Master-Bedroom mit begehbarem Schrank, Teppichboden und beiger Wandtapete, bieten individuellen Rückzugsraum. Das stilvolle Badezimmer mit begehbarer Dusche und hochwertigem Waschtisch wird durch den Terrazzo-Boden nicht nur funktional, sondern auch optisch zu einem echten Statement.
Herzstück der Wohnung ist der offen gestaltete Wohn-Essbereich mit angrenzender Küche. Hier pulsiert das Leben – ob beim Kochen, gemeinsamen Abendessen oder beim Zurücklehnen auf der Couch. Großformatige Fensterflächen und der direkte Zugang auf den südwestlich ausgerichteten Balkon verbinden innen und außen auf fließende Weise. Der Blick? Geht hinaus ins Grüne – ein echtes Highlight.
Die maßgefertigte Einbauküche überzeugt nicht nur durch ihr edles Design, sondern auch durch ihre Funktionalität – perfekt integriert in die Wohnatmosphäre. Hochwertige Geräte, durchdachte Arbeitsflächen und viel Stauraum machen das Kochen hier zum Erlebnis.
Technisch ist alles auf dem neuesten Stand: Klimaanlage, Fußbodenheizung, dreifach verglaste Fenster mit Rollos garantieren höchsten Wohnkomfort. Zwei Tiefgaragenplätze und ein praktischer Kellerraum runden das Angebot ab.
Die Umgebung? Eine ruhige Seitenstraße in einem gewachsenen Wohngebiet mit angenehmer Nachbarschaft. Einkaufsmöglichkeiten, Schulen, Kindergärten und öffentliche Verkehrsmittel befinden sich in der Nähe – die perfekte Balance aus Stadtnähe und Naturidylle.
Ein Zuhause für Menschen mit Sinn für Stil und Qualität – jetzt bezugsbereit.
Kontaktieren Sie uns für einen unverbindlichen Besichtigungstermin. Wir freuen uns auf Ihre Anfrage!
Interesse?
Kontaktieren Sie uns gerne für einen unverbindlichen Besichtigungstermin, wir freuen uns auf Ihre Nachricht.
Matthias Nussbaumer, konzessionierter Immobilientreuhänder
Telefon: +43 660 7056199
E-Mail: m.nussbaumer@immoquelle.at
-----------
Wir weisen darauf hin, dass alle Angaben in diesem Exposé nach bestem Wissen und Gewissen erstellt wurden und wir keine Haftung auf Schreibfehler & Irrtümer übernehmen werden. Eine Weitergabe dieses Angebotes an Dritte ohne ausdrückliche Genehmigung verpflichtet zu Schadenersatz.
Haftungsausschluss für 3D-Visualisierung
Unser Angebot enthält Bilder einer 3D-Visualisierung von einem Dritten. IMMOVENCE GmbH übernimmt keinerlei Gewähr für die Korrektheit, Aktualität oder Qualität der bereitgestellten Bilder. Diese Bilder wurden ausschließlich dafür erstellt, um die Vorstellungskraft und Kreativität unserer Kunden zu unterstützen.
Der Vermittler ist als Doppelmakler tätig.
Infrastruktur / Entfernungen
Gesundheit
Arzt <1.500m
Apotheke <1.000m
Klinik <1.500m
Krankenhaus <7.000m
Kinder & Schulen
Schule <1.500m
Kindergarten <500m
Universität <7.000m
Nahversorgung
Supermarkt <500m
Bäckerei <1.000m
Einkaufszentrum <4.000m
Sonstige
Bank <1.000m
Geldautomat <1.000m
Post <1.500m
Polizei <1.500m
Verkehr
Bus <500m
Autobahnanschluss <1.000m
Bahnhof <2.500m
Flughafen <5.500m
Angaben Entfernung Luftlinie / Quelle: OpenStreetMap
Eckdaten Objektnr. 6674/213
Art: | Wohnung |
Land: | Österreich |
Baujahr: | 2022 |
Zustand: | Neuwertig |
Alter: | Neubau |
Kaufpreis: | 590.000,00 € |
Provision: | 3% des Kaufpreises zzgl. 20% USt. |
Wohnfläche: | 114,96 m² |
Zimmer: | 4 |
Bäder: | 1 |
WC: | 1 |
Balkone: | 1 |
Heizwärmebedarf: | B 38,00 kWh/m²a |
fGEE: | A+ 0,64 |
Ausstattung
Fliesen, Parkett, Gas, Fußbodenheizung, Wohnküche / offene Küche, Personenaufzug, Bad mit Fenster, Tiefgarage
Ihre persönliche Beratung

Matthias Nussbaumer
IMMOVENCE GmbH
T +43 660 70 56 199