TRAUMHAFTE DACHGESCHOSSWOHNUNG IM ERSTBEZUG MIT DACHTERRASSE 33,67m²
Wohnung
- Dachgeschoß,
1110
Wien,Simmering
Beschreibung der Immobilie
TRAUMHAFTE DACHGESCHOSSWOHNUNG IM ERSTBEZUG MIT DACHTERRASSE 33,67m²
In ruhiger Lage entsteht dieses Neubauprojekt bestehend aus Eigentums- und Anlagewohnungen. Der Wohnbau besteht aus zwei Baukörpern, ein straßenseitiger und ein hofseitiger.
Das Wohnhaus befinden sich in Kaiserebersdorf und bietet neben der optimalen Verkehrsanbindung und Infrastruktur, anspruchsvolle Architektur sowie moderne und qualitative Ausstattung, ein Wohntraum für unterschiedliche Bedürfnisse!
Projekt-Highlights:
- Erstbezug / Neubau
- 20 von 23 Eigentumswohnungen verfügbar
- Alle Wohneinheiten verfügen über eine Freifläche wie Garten, Balkon, Loggia, Terrasse oder Dachterrasse
- Hochwertige Parkettböden, Fußbodenheizung, moderne Fliesen, Wärmegedämmte Kunststoff-Isolierglasfenster Terrassen-/Balkontüren mit 3-Fach Isolierverglasung, Gegensprechanlage oder glw., Lift
- Elektrische Außenrolläden
- Schlüsselfertig inkl. Bad
- Kinderwagen- Fahrradabstellraum gemeinschaftlich
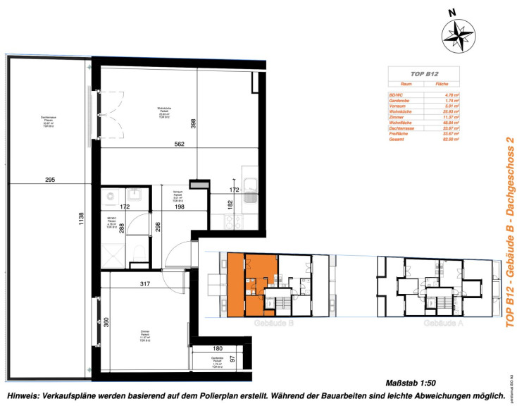
Die Allgemeinbereiche im Kellergeschoss sowie die Außenanlagen, können sich noch geringfügig ändern. Vorbehaltlich der geringfügigen Änderungen bis zur Fertigstellung. Die Plan Skizze dient lediglich zur exemplarischen Darstellung der Raumaufteilung und der Größenverhältnisse! Abweichungen der angeführten Flächen möglich. Irrtum, Änderungen, Satz und Druckfehler vorbehalten.
Alle Wohneinheiten werdenbezugsfertig übergeben, d.h. alle Sanitäranlagen, Fliesen und Parkettboden sind im Kaufpreis inkludiert. Eine detaillierte Bau- und Ausstattungsbeschreibung stellen wir Ihnen bei weiterem Interesse gerne zur Verfügung.
Kaufpreis Eigennutzer: EUR 312.000, --
Kaufpreis Investment: EUR 287.000, -- zzgl. 20% USt.
Nebenkosten:
- Grunderwerbssteuer: 3,50 % vom Kaufpreis
- Eintragungsgebühr: 1,10 % vom Kaufpreis
- Vertragserrichtungskosten und Treuhändlerhonorar: % des Kaufpreises zzgl. 20% USt. und Barauslagen
- Vermittlungsprovision: 3 % des Kaufpreises zzgl. 20% USt.
- Wir weisen ausdrücklich auf unser wirtschaftliches Naheverhältnis mit dem Verkäufer/in hin!
Wir würden uns über ein persönliches Gespräch mit Ihnen sehr freuen!
Weitere verfügbare Wohneinheiten mit zahlreichen aktuellen TOP Projekten! Mehr Details findet Sie auf unsere Homepage!
www.vigoimmobilien.at | +43 664 99 877 599
Wir weisen darauf hin, dass zwischen dem Vermittler und dem zu vermittelnden Dritten ein familiäres oder wirtschaftliches Naheverhältnis besteht.
Der Vermittler ist als Doppelmakler tätig.
Infrastruktur / Entfernungen
Gesundheit
Arzt <1.000m
Apotheke <1.000m
Klinik <1.000m
Krankenhaus <7.500m
Kinder & Schulen
Schule <500m
Kindergarten <1.000m
Universität <6.500m
Höhere Schule <7.000m
Nahversorgung
Supermarkt <500m
Bäckerei <500m
Einkaufszentrum <1.000m
Sonstige
Geldautomat <500m
Bank <500m
Post <1.000m
Polizei <500m
Verkehr
Bus <500m
U-Bahn <4.500m
Straßenbahn <1.000m
Bahnhof <1.000m
Autobahnanschluss <1.000m
Flughafen <8.500m
Angaben Entfernung Luftlinie / Quelle: OpenStreetMap
Eckdaten Objektnr. 7618/814
Art: | Wohnung - Dachgeschoß |
Land: | Österreich |
Baujahr: | 2025 |
Zustand: | Erstbezug |
Alter: | Neubau |
Kaufpreis: | 312.000,00 € |
Provision: | 3% des Kaufpreises zzgl. 20% USt. |
Wohnfläche: | 82,50 m² |
Zimmer: | 2 |
Bäder: | 1 |
WC: | 1 |
Heizwärmebedarf: | C 47,50 kWh/m²a |
fGEE: | A 0,75 |
Ausstattung
Fliesen, Parkett, Fußbodenheizung, Wohnküche / offene Küche, Personenaufzug, Dusche
Ihre persönliche Beratung

Commerce VigoImmobilien
Vigo Immobilien GmbH
T +43 664 998 77 599