TAG DER OFFENEN TÜR 28.11. 12-17 Uhr + 29.11. 9-13 Uhr

Wohnung , 4553 Schlierbach , Stiftsteichstraße


Das Wohngebiet in der Hofwiese in Schlierbach besticht durch seine leicht erhöhte, sonnige und ruhige Lage am Kremstal. Die nahe A9‑Auffahrt in Inzersdorf oder Voitsdorf ermöglicht rasche Verbindungen Richtung Linz (~ 40 km) und Richtung Süden. Zudem sind Bahnhof Schlierbach (Pyhrnbahn) und regionale Buslinien fußläufig erreichbar – optimal für Pendler und Familien. Nicht zu vergessen ist die Infrastruktur in Schlierbach mit Ärzten, Supermarkt sowie Bäcker, Kindergarten und Schulen, Sportplatz, einige Freizeitaktivitätsmöglichkeiten sowie die zur Entspannung errichtete Grüne Achse!

Beschreibung der Immobilie

TAG DER OFFENEN TÜR 28.11. 12-17 Uhr + 29.11. 9-13 Uhr

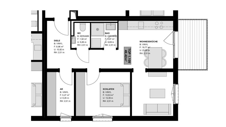
Wer nach einer von 45 Eigentumswohnungen mit Erstbezug ab 2026 sucht, ist hier genau richtig!



Auf ca. 49,5 m² Wohnfläche finden Sie:




  • Einen einladenden Eingangsbereich



  • Ein Schlafzimmer



  • Ein Abstellraum



  • Ein vollausgestattetes Badezimmer mit Dusche, Waschbecken und Waschmaschinenanschluss



  • Eine nicht ausgestattete Wohn-, Essküche mit Ausgang auf den Balkon



  • Ein helles Wohnzimmer



  • Eine separate Toilette




Zudem gehört zur Wohnung:




  • Ein zugeordneter und nummerierter Tiefgaragenstellplatz nach Wahl (nicht im Kaufpreis inklusive)



  • Ein barrierefreier Personenlift im Haus



  • Ein ca. 3,5 m² großes Kellerabteil



  • Ein großzügiger Kinderspielplatz zur allgemeinen Nutzung



  • Ein gemeinschaftlicher Sitzbereich im Grünen



  • Zahlreiche freie Parkplätze direkt vor dem Gebäude




Gerne weisen wir darauf hin, dass bei diesem Projekt vier verschiedene Wohnungsgrößen zum Angebot stehen. Fragen Sie auch gerne diese bei uns an.



Zur besseren Vorstellung der Wohnungen und der verwendeten Materialien, möchten wir Sie sehr gerne persönlich in die Produktionshalle einladen. Vereinbaren Sie sehr gerne einen unverbindlichen Termin!


Der Vermittler ist als Doppelmakler tätig.

Infrastruktur / Entfernungen

Gesundheit
Arzt <3.750m
Apotheke <4.000m
Klinik <4.500m
Krankenhaus <3.500m

Kinder & Schulen
Schule <500m
Kindergarten <500m

Nahversorgung
Supermarkt <500m
Bäckerei <750m
Einkaufszentrum <8.500m

Sonstige
Bank <500m
Geldautomat <500m
Post <500m
Polizei <4.000m

Verkehr
Bus <500m
Bahnhof <1.000m
Autobahnanschluss <2.250m
Flughafen <7.750m

Angaben Entfernung Luftlinie / Quelle: OpenStreetMap

Eckdaten Objektnr. 7446/512

Art: Wohnung
Land: Österreich
Baujahr: 2025
Alter: Neubau
Kaufpreis: 210.000,00
Provision: 8.352,00 € inkl. 20% USt.
Wohnfläche: 49,42 m²
Zimmer: 2
Bäder: 1
WC: 1
Stellplätze: 1
Keller: 3,46 m²
Heizwärmebedarf:  B  27,00 kWh/m²a
fGEE:  A  0,71
Immobilie merken Exposé

Ausstattung

Fliesen, Parkettboden, Fußbodenheizung, Wohnküche / offene Küche, Personenaufzug, Nordbalkon, Ostbalkon, Südbalkon, Westbalkon, Dusche, Kabel/Satelliten-TV, Parkplatz, Tiefgarage


Immobilie anfragen


Ihre persönliche Beratung

PRIMO

Marcel Pramhas

PRIMO

T +43 650 9293149

H +43 650 9293149