ATTRAKTIVE GEWERBEIMMOBILIE: LAGER- UND BÜROFLÄCHE UNTER EINEM DACH - IDEAL FÜR UNTERNEHMEN
Halle / Lager / Produktion
- Halle,
1230
Wien
,
Perfektastraße
PERFEKTASTRASSE
Beschreibung der Immobilie
ATTRAKTIVE GEWERBEIMMOBILIE: LAGER- UND BÜROFLÄCHE UNTER EINEM DACH - IDEAL FÜR UNTERNEHMEN
GEWERBEIMMOBILIE ZUR MIETE: PERFEKTE KOMBINATION AUS LAGER- UND BÜROFLÄCHE
Wir bieten eine vielseitige Gewerbeimmobilie zur Miete an, die ideal für Unternehmen ist, die Büro- und Lagerfläche unter einem Dach vereinen möchten.
Die Immobilie besteht aus einem Lagerbereich im Erdgeschoß liegend und modernen Büroräumen im zweiten Stock desselben Gebäudes liegend, die optimal auf die Bedürfnisse von Unternehmen abgestimmt sind. Ob Sie Lagerkapazitäten benötigen oder einen repräsentativen Standort für Ihr Büro suchen – hier finden Sie beides in einem.
LAGER 1 51,80m2
Erdgeschoß
- Nettomiete/m2 und Monat= EUR 11,95,- exkl. USt.
- Netto- Betriebskosten/m2 und Monat= EUR 1,49,- exkl. USt.
BESCHREIBUNG:
1. Lager: Raumhöhe 3,45m; Binderkante: Raumhöhe 3,00m
2. Boden: Hartasphaltbelag mit Kunstharzbeschichtung
3. Tor: Sektionaltor 268x300cm mit Gehtüre 20x80cm, Beleuchtung: 1 Strahler über Tor.
4. Brandschutztüren: Zugangstüren in das Lager mit Brandschutzverglasung
5. Heizung: Fernwärme, Luftheizer in den Lagern
6. Elektroinstallationen: Aufputz Elektro- Installation
7. Beleuchtung: Lager: Leuchtstoffbalken.
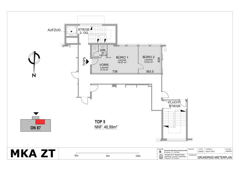
BÜRO 46,99 m2
1. Liftstock
- Nettomiete/m2 und Monat= EUR 16,05,- exkl. USt.
- Netto- Betriebskosten/m2 und Monat= EUR 1,47,- exkl. USt.
AUSSTATTUNG:
- 2 Zimmer
- Miniküche
- Toilette
BESCHREIBUNG:
1. Türen: T30- Brandschutztüren mit Glasausschnitt bei den jeweiligen Büroeinheiten. Türe zu Stiegenhaus in T30- Ausführung mit Panik- Beschlag.
2. Wandverfliesung und Fußböden im WR und WC: Objektfliesen
3. Fußböden: Laminatboden Nuss.
4. Rasterdecken: Abgehängte Rasterschienen mit GFK Platten
5. Rasterleuchten: Leuchtenkörper für Büros, insbesondere Arbeitsplätze mit Bildschirmgeräten.
6. Klimakassetten-Deckengeräte: Büro- und Aufenthaltsräumen inkl. Fernbedienung
7. Bodenkanal aus PVC: schwer entflammbar
8. Elektroinstallation: Schalter und Steckdosen sind im Büro Unterputz verlegt
9. Teeküche: Miniküche bestehend aus Kühlschrank, Spülbecken, Mikorwelle Mischbatterie, 5 Liter Untertischkleinspeicher
10. Heizung: Radiatorenheizung über Fernwärme
11. Waschraum: 5 Liter Kleinspeicher
12. Personenlift: Elektrischer Aufzug für Stiege 1, führt vom Erdgeschoss bis in das 2. Obergeschoss, Tragkraft 6 Personen
13. Lamellen-Jalousien: entlang der Fensterfronten im Büro und Besprechungsraum
PARKEN:
Kosten: je Parkplatz= EUR 55,00,- exkl. UST
MIETDAUER UND MIETBEGINN:
max. 10 Jahre
INFRASTRUKTUR/VERKEHRSANBINDUNG:
- U-Bahnlinien: U6 Perfektastraße
- Billa, Hofer in nächster Nähe
PREISE (zusammengefasst):
Nettomiete BÜRO: EUR 754,18, Netto-BK EUR 69,08
Nettomiete LAGER: EUR 619,01, Netto-BK EUR 77,18
ohne Strom und Heizung
Kaution: EUR 5.700,--
3BMM Provision zzgl. 20%USt
MIETERPROVISION zahlbar selbstverständlich nur bei Mietvertragsabschluss.
Nutzen Sie die Gelegenheit und sichern Sie sich diese attraktive Gewerbeimmobilie, die Ihnen alle Möglichkeiten für ein effizientes Arbeiten bietet.
Kontaktieren Sie uns für weitere Informationen oder einen Besichtigungstermin!
URUSLA RABAS, +436765285527, IMMOBILIEN@RABAS.WIEN
Wir weisen darauf hin, dass zwischen dem Vermittler und dem zu vermittelnden Dritten ein familiäres oder wirtschaftliches Naheverhältnis besteht.
Der Vermittler ist als Doppelmakler tätig.
Infrastruktur / Entfernungen
Gesundheit
Arzt <1.000m
Apotheke <1.000m
Klinik <1.000m
Krankenhaus <2.250m
Kinder & Schulen
Schule <1.250m
Kindergarten <750m
Universität <5.750m
Höhere Schule <5.250m
Nahversorgung
Supermarkt <250m
Bäckerei <250m
Einkaufszentrum <1.500m
Sonstige
Geldautomat <1.250m
Bank <1.250m
Post <1.250m
Polizei <1.500m
Verkehr
Bus <250m
U-Bahn <1.000m
Straßenbahn <2.250m
Bahnhof <1.250m
Autobahnanschluss <2.000m
Angaben Entfernung Luftlinie / Quelle: OpenStreetMap
Eckdaten Objektnr. 2534
Art: | Halle / Lager / Produktion - Halle |
Land: | Österreich |
Zustand: | Neuwertig |
Alter: | Neubau |
Kaltmiete (netto): | 1.373,19 € |
Kaltmiete: | 1.519,45 € |
Provision: | 5.470,02 € inkl. 20% USt. |
Betriebskosten: | 146,26 € |
MwSt Gesamt: | 303,89 € |
Lagerfläche: | 51,80 m² |
Bürofläche: | 47,00 m² |
Zimmer: | 2 |
WC: | 1 |
Heizwärmebedarf: | B 42,90 kWh/m²a |
Ausstattung
Personenaufzug, Teeküche
Ihre persönliche Beratung

Ursula Rabas
Immobilien Rabas
T +43 676 5285527