Exclusives Dachgeschoss - Ihr Logenplatz inmitten der Natur
Wohnung
- Maisonette,
2340
Mödling
Beschreibung der Immobilie
Exclusives Dachgeschoss - Ihr Logenplatz inmitten der Natur
Ein Ort, an dem Weitblick inmitten der Natur nicht nur aus dem Fenster, sondern in jedem Detail spürbar ist – diese Dachgeschosswohnung ist mehr als ein Zuhause, sie ist ein Lebensgefühl. Auf zwei Ebenen (Maisonette) vereint sie Großzügigkeit, Design und Wohlbefinden– durchflutet von Licht, umgeben von Grün und gekrönt von einem Ausblick, der jeden Tag besonders macht.Highlights auf einen Blick:
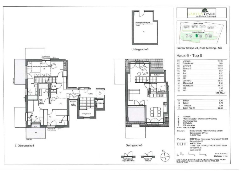
- ca. 130m² Wohnfläche auf zwei Ebenen
- zwei Balkone + großzügige Terrasse
- Gemeinschaftspool, Sauna, Motorikpark, Mehrzweckhalle, Spielplatz
- moderne Küche mit Insel und offener Wohn-und Essbereich
- großzügiger Einlagerungsraum ca. 23m²
- 2 Bäder, 2 WC´s
- 1 Tiefgaragenplätze mit E-Ladestation ist im KAUFPREIS inbegriffen!
ein weiterer Tiefgaragenplatz zzgl.EUR 25.000,-
Lage und Infrastruktur:
Die Lage dieser Wohnung vereint Natur, Freizeit und perfekte Anbindung in idealer Weise. Direkt vor der Haustür beginnt ein idyllischer Waldweg, der zu entspannten Spaziergängen einlädt und Sie bis zum malerischen Husarentempel oder in die Mödlinger Innenstadt führt. Für aktive Stunden im Freien sorgen der angrenzende Motorikpark sowie ein gepflegter Gemeinschaftspool mit Sauna – Freizeitgenuss beginnt hier direkt vor der Tür. Die Nahversorgung ist ebenso gesichert: Ein BILLA-Markt, eine Apotheke sind in rund 5 Gehminuten erreichbar. Weiters gibt es in der näheren Umgebung einen Kindergarten, eine Grundschule sowie Hausärzte. Eine nahegelegene Bushaltestelle verbindet Sie bequem mit dem Bahnhof Mödling, von wo aus Sie in kurzer Zeit ins Zentrum Wiens gelangen. Die charmante Mödlinger Altstadt mit ihren Cafés, Boutiquen und Kulturangeboten erreichen Sie in etwa 5 Autominuten. Auch die Anbindung an die Südautobahn ist hervorragend – so sind Sie schnell und unkompliziert in Wien.
Eckdaten Objektnr. 141/83958
| Art: | Wohnung - Maisonette |
| Land: | Österreich |
| Baujahr: | 2015 |
| Möbliert: | Teil |
| Kaufpreis: | 788.000,00 € |
| Provision: | 3% |
| Wohnfläche: | 129,67 m² |
| Zimmer: | 4 |
| Bäder: | 2 |
| WC: | 2 |
| Balkone: | 2 |
| Terrassen: | 1 |
| Heizwärmebedarf: | B 46,00 kWh/m²a |
| fGEE: | A 0,83 |
Ausstattung
Personenaufzug
Ihre persönliche Beratung
Dieser Makler ist ein offizielles Mitglied des IR – ir.at Mehr Erfahren
