Sie wollen nicht alleine wohnen? Perfekte WG-Wohnung mit Balkon Erstbezug nach Sanierung
Wohnung
- Etage,
3500
Krems an der Donau
- Nahe der Universitäten und IMC - Zentrale Lage in Krems an der Donau - Gute Anbindung an öffentliche Verkehrsmittel - Verschiedene Geschäfte, Cafés und Restaurants in der Nähe
Beschreibung der Immobilie
Sie wollen nicht alleine wohnen? Perfekte WG-Wohnung mit Balkon Erstbezug nach Sanierung
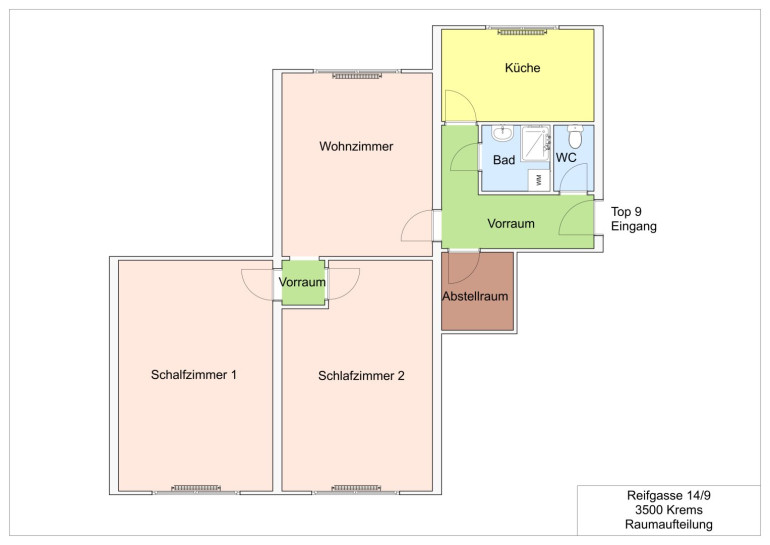
Diese hochwertig sanierte Drei-Zimmer-Wohnung bietet Komfort und eine erstklassige Lage in Krems an der Donau in Niederösterreich. Mit 98,58 m² Wohnfläche und 3 Zimmern ist sie ideal für Paare und Familien, sowie für Studenten. Alle Räume sind mit Fliesen, Fertigparkett und einer Etagenheizung ausgestattet. Eine voll ausgestattete Einbauküche und ein Bad mit Dusche und ein extra WC machen die Wohnung perfekt.
Die Fotos sind teilweise vor dem Umbau und während der Sanierungsphase entstanden.
Die Wohnung befindet sich in der 2. Etage. Mit der guten Verkehrsanbindung über Bus, Bahnhof und dem Auto ist es ein absolut lebenswertes Zuhause. In unmittelbarer Nähe gibt es eine Arztpraxis, Apotheke, Klinik, Schule, Kindergarten, Universität, Höhere Schule, Supermarkt und Bäckerei.
Garagenplatz auf Anfrage.
Ein Besuch lohnt sich!
Die gemütliche Wohnung ist derzeit noch in Sanierung und kann ab 1.11.2025 angemietet werden.
Besichtigungen der Baustelle sind ab sofort möglich.
Wir weisen darauf hin, dass zwischen dem Vermittler und dem zu vermittelnden Dritten ein familiäres oder wirtschaftliches Naheverhältnis besteht.
Der Immobilienmakler erklärt, dass er – entgegen dem in der Immobilienwirtschaft üblichen Geschäftsgebrauch des Doppelmaklers – einseitig nur für den Vermieter tätig ist.
Infrastruktur / Entfernungen
Gesundheit
Arzt <500m
Apotheke <1.000m
Klinik <1.000m
Krankenhaus <2.000m
Kinder & Schulen
Schule <500m
Kindergarten <500m
Universität <500m
Höhere Schule <500m
Nahversorgung
Supermarkt <500m
Bäckerei <500m
Einkaufszentrum <2.500m
Sonstige
Geldautomat <1.000m
Bank <1.000m
Post <1.000m
Polizei <1.000m
Verkehr
Bus <500m
Autobahnanschluss <3.000m
Bahnhof <500m
Flughafen <5.500m
Angaben Entfernung Luftlinie / Quelle: OpenStreetMap
Eckdaten Objektnr. 5908/1595
Art: | Wohnung - Etage |
Land: | Österreich |
Zustand: | Voll_saniert |
Alter: | Neubau |
Gesamtmiete: | 1.399,00 € |
Kaltmiete (netto): | 1.050,01 € |
Kaltmiete: | 1.271,82 € |
Provision: | Gemäß Erstauftraggeberprinzip bezahlt der Abgeber die Provision. |
Betriebskosten: | 221,81 € |
MwSt Gesamt: | 127,18 € |
Wohnfläche: | 98,58 m² |
Nutzfläche: | 98,58 m² |
Zimmer: | 3,50 |
Bäder: | 1 |
WC: | 1 |
Keller: | 3,00 m² |
Heizwärmebedarf: | C 62,00 kWh/m²a |
fGEE: | C 1,09 |
Ausstattung
Fliesen, Parkettboden, Etagenheizung, Fernwärme, Einbauküche, Westbalkon, Dusche
Ihre persönliche Beratung

Andreas Stadler
ABRA IC GmbH
T +43664 3551068