**Hofruhelage** Modern und zentral wohnen
Wohnung
,
1020
Wien
,
Franzensbrückenstraße
Franzensbrückenstraße
Beschreibung der Immobilie
**Hofruhelage** Modern und zentral wohnen
Diese Mietwohnung besticht durch ihre ruhige Hoflage und exzellente Anbindung dank der Nähe zum Zentrum. Eine persönliche Besichtigung lohnt sich in jedem Fall. Senden Sie uns eine Anfrage um alle Details zu erhalten!
Geben Sie uns mögliche Termine zur Besichtigung bekannt, wir melden uns bei Ihnen unverzüglich.
Eckdaten der Immobilie:
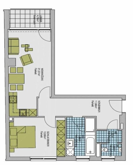
Raumaufteilung:
- Vorraum mit genug Platz für Garderobe
- Wohnküche
- Schlafzimmer
- Badezimmer mit Wanne
- Separates WC
- Hofseitiger Balkon (4,49 m²)
(siehe Plan)
Zustand und Ausstattung:
- Vollausgestattete Küche
- Allgemein neuwertiger Zustand der Wohnung und Geräte
- Hochwertiger Echtholzboden in den Wohnräumen
- Moderne, großflächige Verfliesung der Nassräume
- Heizung und Warmwasseraufbereitung mittels Zentralheizung
Haus und Lage:
- Gepflegtes, modernes Neubauhaus
- Es ist ein Lift vorhanden (5. Stock)
- Kinderwagen- und Fahrradabstellräume, sowie eine Waschküche vorhanden
- Urbane Wohngegend
- Das Stadtzentrum und der Prater befinden sich in Gehweite
- Fußläufig sind alle Geschäfte des täglichen Bedarfs erreichbar
Der Immobilienmakler erklärt, dass er – entgegen dem in der Immobilienwirtschaft üblichen Geschäftsgebrauch des Doppelmaklers – einseitig nur für den Vermieter tätig ist.
Infrastruktur / Entfernungen
Gesundheit
Arzt <250m
Apotheke <250m
Klinik <1.000m
Krankenhaus <750m
Kinder & Schulen
Schule <250m
Kindergarten <500m
Universität <750m
Höhere Schule <1.750m
Nahversorgung
Supermarkt <250m
Bäckerei <250m
Einkaufszentrum <1.000m
Sonstige
Geldautomat <250m
Bank <250m
Post <500m
Polizei <500m
Verkehr
Bus <250m
U-Bahn <250m
Straßenbahn <250m
Bahnhof <500m
Autobahnanschluss <2.500m
Angaben Entfernung Luftlinie / Quelle: OpenStreetMap
Eckdaten Objektnr. 9770
Art: | Wohnung |
Land: | Österreich |
Zustand: | Gepflegt |
Alter: | Neubau |
Gesamtmiete: | 1.295,00 € |
Kaltmiete (netto): | 1.061,60 € |
Kaltmiete: | 1.177,27 € |
Provision: | Gemäß Erstauftraggeberprinzip bezahlt der Abgeber die Provision. |
Betriebskosten: | 115,67 € |
MwSt Gesamt: | 117,73 € |
Wohnfläche: | 55,61 m² |
Nutzfläche: | 61,10 m² |
Gesamtfläche: | 61,10 m² |
Zimmer: | 2 |
Bäder: | 1 |
WC: | 1 |
Balkone: | 1 |
Heizwärmebedarf: | B 31,70 kWh/m²a |
fGEE: | B 0,89 |
Ausstattung
Fliesen, Parkett, Gas, Zentralheizung, Wohnküche / offene Küche, Personenaufzug, Westbalkon, Badewanne, Kabel/Satelliten-TV
Ihre persönliche Beratung

Michal Lizak
Lizak und Partner GmbH
H +43 676 54 79 641