360 TOUR // INNENSTADTBÜRO nahe RINGSTRAßE
Büro / Praxis
,
1040
Wien
Beschreibung der Immobilie
360 TOUR // INNENSTADTBÜRO nahe RINGSTRAßE
INNENSTADTBÜRO nahe RINGSTRAßEIn einem modernen Bürohaus nahe dem Zentrum Wiens wird diese Neubau-Bürofläche wie folgt vermietet:
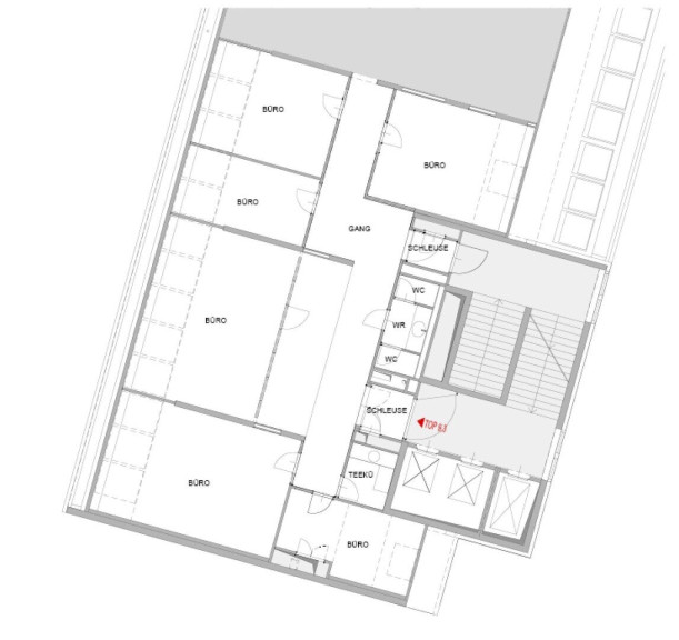
Raumaufteilung:
Vorraum, 6 Büroräume, Teeküche, 2 WC-Anlagen mit Waschräumen, 1 Abstellraum
Ausstattung:
Die Ausstattung ist hochwertig: Hohlraumboden mit Teppichfliesen, Fan-Coil für Heizung und Kühlung, Zutrittskontrolle bzw. Portier.
Angeboten wird ein auf 10 Jahre befristetes Mietverhältnis mit 3-jährigem, mieterseitigen Kündigungsverzicht.
Aufgrund der zentralen Lage ist sowohl die öffentliche Verkehrsanbindung als auf die Infrastruktur sehr gut:
Die Anbindung an das öffentliche Verkehrsnetz (U1,U2 und U4) ist optimal und die Infrastruktur in unmittelbarer Umgebung (Naschmarkt etc) ist ausgezeichnet.
Die großzügige Eingangshalle mit Lift-Lobby schafft eine eindrucksvolle Atmosphäre.
360 Tour:
https://360.kalandra.at/view/fullscreen/id/VZ86J
Infrastruktur / Entfernungen
Gesundheit
Arzt <500m
Apotheke <500m
Klinik <1.000m
Krankenhaus <1.500m
Kinder & Schulen
Schule <500m
Kindergarten <500m
Universität <500m
Höhere Schule <500m
Nahversorgung
Supermarkt <500m
Bäckerei <500m
Einkaufszentrum <1.000m
Sonstige
Geldautomat <500m
Bank <500m
Post <500m
Polizei <500m
Verkehr
Bus <500m
U-Bahn <500m
Straßenbahn <500m
Bahnhof <500m
Autobahnanschluss <3.500m
Angaben Entfernung Luftlinie / Quelle: OpenStreetMap
Eckdaten Objektnr. 18172
Art: | Büro / Praxis |
Land: | Österreich |
Baujahr: | 2012 |
Zustand: | Neuwertig |
Kaltmiete (netto): | 3.279,00 € |
Kaltmiete: | 3.954,51 € |
Provision: | 3 Bruttomonatsmieten zzgl. 20% USt. |
Betriebskosten: | 675,51 € |
MwSt Gesamt: | 790,90 € |
Nutzfläche: | 218,00 m² |
Zimmer: | 6 |
WC: | 2 |
Heizwärmebedarf: | C 60,00 kWh/m²a |
Ausstattung
Zentralheizung, Personenaufzug
Ihre persönliche Beratung

Mag. Robin Kalandra
KALANDRA Immobilien Robert Kalandra e.U.
T +43-1533326913
H +43-69911804004
F +43-1-533-32-69-20