HIETZINGER EINFAMILIENVILLA MIT AUSBAUPOTENTIAL
Haus
- Einfamilienhaus,
1130
Wien
Beschreibung der Immobilie
HIETZINGER EINFAMILIENVILLA MIT AUSBAUPOTENTIAL
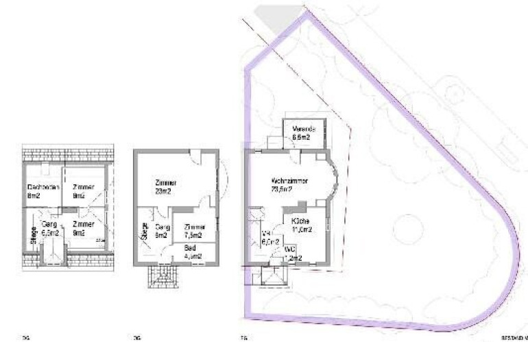
HIETZINGER EINFAMILIENVILLA MIT AUSBAUPOTENTIALDieses in bester Hietzinger Lage gelegene Einfamilienhaus in gekoppelter Bauweise mit ca. 127m² Wohnfläche wird mit einer Bebauungsstudie mit mehreren Varianten zur Flächenerweiterung (ein oder zweigeschossiger Zubau), sodass die Wohnfläche auf 142 bzw. 152 m² vergrößert werden kann zum Kauf angeboten.
Raumaufteilung:
Erdgeschoss:
Entree, Wohnzimmer 23m² ,11m² Küche, WC, Veranda 6m², Garten
1.Obergeschoss:
2 Schlafzimmer (23m² & 7m²), Bad, WC
Dachgeschoss:
zwei Schlafzimmer( je 9 m²), Dachboden
Keller:
Abstellräume
Die Fassade wurde erneuert.
Anbei eine Bebauungsstudie mit mehreren Varianten zur Flächenerweiterung
Ein Energieausweis wurde vom Eigentümer angefordert und wird nachgereicht.
Infrastruktur / Entfernungen
Gesundheit
Arzt <500m
Apotheke <500m
Klinik <1.000m
Krankenhaus <1.500m
Kinder & Schulen
Schule <1.000m
Kindergarten <500m
Universität <500m
Höhere Schule <5.000m
Nahversorgung
Supermarkt <500m
Bäckerei <1.000m
Einkaufszentrum <4.500m
Sonstige
Geldautomat <1.000m
Bank <1.000m
Post <1.000m
Polizei <1.500m
Verkehr
Bus <500m
Straßenbahn <1.000m
U-Bahn <1.500m
Bahnhof <1.500m
Autobahnanschluss <4.500m
Angaben Entfernung Luftlinie / Quelle: OpenStreetMap
Eckdaten Objektnr. 18026
Art: | Haus - Einfamilienhaus |
Land: | Österreich |
Baujahr: | 1900 |
Zustand: | Neuwertig |
Kaufpreis: | 1.600.000,00 € |
Provision: | 3% des Kaufpreises zzgl. 20% USt. |
Wohnfläche: | 127,00 m² |
Grundstücksfl.: | 343,00 m² |
Zimmer: | 6 |
Bäder: | 2 |
WC: | 1 |
Terrassen: | 1 |
Ausstattung
Gas, Etagenheizung
Ihre persönliche Beratung

Mag. Robin Kalandra
KALANDRA Immobilien Robert Kalandra e.U.
T +43-1533326913
H +43-69911804004
F +43-1-533-32-69-20