360° TOUR // VINEYARD RESIDENCES - GESCHÄFTSLOKAL in NEUSTIFT AM WALDE
Einzelhandel
,
1190
Wien
Beschreibung der Immobilie
360° TOUR // VINEYARD RESIDENCES - GESCHÄFTSLOKAL in NEUSTIFT AM WALDE
ERSTBEZUG-NEUBAUEIGENTUMS-BÜRO IN NEUSTIFTIm Herzen von Neustift am Walde gelangt eine exklusive Eigentumsgeschäftslokal mit ca. 75m² Bürofläche zum Verkauf
Die Wohnung befindet sich im ersten Obergeschoss eines Mehrparteienhauses mit 4 Wohneinheiten, welches im Jahre 2021 errichtet wurde.
Das Gebäude ist voll unterkellert und verfügt über einen Personenaufzug und eine hauseigene Tiefgarage.
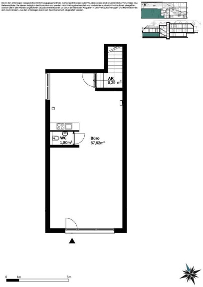
Raumaufteilung:
Das Büro mit ca. 75,01 m² Bürofläche liegt im Erdgeschoss und gliedert sich in folgende Räume:
Büro ca. 67,92 m²
separate Toilette mit Handwaschbecken ca. 1,80 m²
Abstellraum ca. 5,29 m²
Ausstattung:
• Feinsteinzeug-Fliesenboden
• Fußbodenheizung
• elektrische Außenrollläden
• dreifach isolierverglaste Fenster
• Sicherheitseingangstüre
• Lift
PKW-Stellplätze im Innenhof können um Euro 50.000,-
Das Objekt befindet sich in einer der besten Lagen Wiens im 19. Gemeindebezirk, welcher durch seine Grünruhelage besonders beliebt ist. Der Wienerwald und die Weingärten befinden sich in unmittelbarer Nähe. Besonders für Naturliebhaber und Sportbegeisterte ist die Umgebung bestens geeignet.
Zusätzlich lädt eine Vielzahl an Heurigen zum Verweilen ein. In der naheliegenden Krottenbachstraße stehen darüber hinaus zahlreiche Einkaufsmöglichkeiten zur Verfügung.
Durch die Buslinie 35A ist die Anbindung an die U-Bahnlinien U4 und U6 (Station Spittelau) und somit eine gute Erreichbarkeit des Stadtzentrums gewährleistet.
Energieausweis:
Der Heizwärmebedarf beträgt 47,6 kWh/m²a, welcher der Klasse B entspricht.
Infrastruktur / Entfernungen
Gesundheit
Arzt <1.000m
Apotheke <500m
Klinik <2.500m
Krankenhaus <3.000m
Kinder & Schulen
Schule <1.000m
Kindergarten <500m
Universität <2.500m
Höhere Schule <3.000m
Nahversorgung
Supermarkt <500m
Bäckerei <1.000m
Einkaufszentrum <3.500m
Sonstige
Geldautomat <2.000m
Bank <2.000m
Post <500m
Polizei <2.500m
Verkehr
Bus <500m
Straßenbahn <1.500m
U-Bahn <3.500m
Bahnhof <3.000m
Autobahnanschluss <5.000m
Angaben Entfernung Luftlinie / Quelle: OpenStreetMap
Eckdaten Objektnr. 17983
Art: | Einzelhandel |
Land: | Österreich |
Baujahr: | 2022 |
Zustand: | Neuwertig |
Kaufpreis: | 299.000,00 € |
Provision: | 3% des Kaufpreises |
Nutzfläche: | 75,01 m² |
WC: | 1 |
Heizwärmebedarf: | B 47,60 kWh/m²a |
Ausstattung
Fußbodenheizung, Personenaufzug
Ihre persönliche Beratung

Mag. Robin Kalandra
KALANDRA Immobilien Robert Kalandra e.U.
T +43-1533326913
H +43-69911804004
F +43-1-533-32-69-20