360 TOUR // GASTRONOMIE-LOKAL IN TOPLAGE
Einzelhandel
,
1220
Wien
Beschreibung der Immobilie
360 TOUR // GASTRONOMIE-LOKAL IN TOPLAGE
GASTRONOMIE-LOKAL IM ANDROMEDA-TOWERIm Erdgeschoß wird die Einheit wie folgt vermietet:
Raumaufteilung:
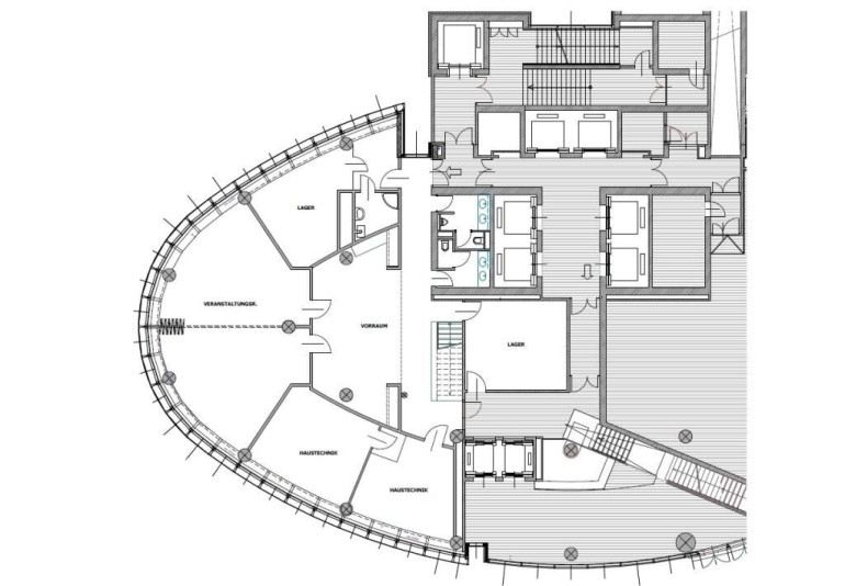
Entree/ Windfang halrunder Hauptraum mit Bartheke, Komplettküche mit allen Geräte, 2 WC
kleiner Gastgarten vor Eingang möglich!
Lager und Nebenflächen auf Ebene -3 mit einem Ausmaße von ca. 73 m²
Austattung:
Ablösefreie Übergabe mit kompletter Lokal & Küchenausstattung
Zur Bruttomiete werden
Betriebskosten netto [€/m2]: 5,85 - somit 1.5.561,- zzgl 20 MWst
sowie Heizkosten /(fernwärme & Stromkosten zusätzlich verrechnet.
Der Grundriss in halb- elliptischer Form garantiert neben einer effizienten Raumnutzung auch noch die Möglichkeit zu einer individuellen Raumaufteilung.
Die gut durchdachte technische Ausstattung und das Service der Haustechnik, welches 24 Stunden zur Verfügung steht, garantieren einen reibungslosen Arbeitsalltag.
Bei dem von Prof. Wilhelm Holzbauer entworfene Andromeda Tower trifft zeitlose Architektur auf einwandfreie Funktionalität. Die Verwendung hochwertiger Materialien verleiht dem Tower nicht nur Qualität vom Feinsten, sondern auch noch einen besonderen Glanz.
Durch seine Nähe zum Vienna International Centre und seine Eingebundenheit in eine Umgebung, bestehend aus hochwertigen Bürokomplexen, Wohngebäuden und Freizeiteinrichtungen kann die Infrastruktur rund um den Andromeda Tower als sehr gut bezeichnet werden.
Auch die Verkehrsanbindung der Umgebung ist sehr gut. Der Tower im 22. Bezirk liegt an der Schnittstelle wichtiger Verkehrsachsen. Mit der in unmittelbarer Nähe gelegenen U1 gelangt man in nur 9 Minuten zum Stephansplatz, ins Zentrum Wiens. Über die Autobahn gelangt man zu dem nur ca. 20 - 25 Minuten entfernten Flughafen, Wien-Schwechat
360 Tour:
https://360.kalandra.at/view/portal/id/VVQVK
Infrastruktur / Entfernungen
Gesundheit
Arzt <500m
Apotheke <500m
Klinik <1.500m
Krankenhaus <2.500m
Kinder & Schulen
Schule <500m
Kindergarten <500m
Universität <2.000m
Höhere Schule <3.000m
Nahversorgung
Supermarkt <500m
Bäckerei <500m
Einkaufszentrum <2.000m
Sonstige
Geldautomat <500m
Bank <500m
Post <500m
Polizei <500m
Verkehr
Bus <500m
U-Bahn <500m
Straßenbahn <1.500m
Bahnhof <500m
Autobahnanschluss <500m
Angaben Entfernung Luftlinie / Quelle: OpenStreetMap
Eckdaten Objektnr. 17931
Art: | Einzelhandel |
Land: | Österreich |
Baujahr: | 1998 |
Zustand: | Neuwertig |
Kaltmiete (netto): | 2.680,00 € |
Kaltmiete: | 2.680,00 € |
Provision: | 15.292,08 € inkl. 20% USt. |
MwSt Gesamt: | 536,00 € |
Nutzfläche: | 268,00 m² |
WC: | 2 |
Heizwärmebedarf: | C 76,00 kWh/m²a |
Ausstattung
Zentralheizung, Personenaufzug
Ihre persönliche Beratung

Mag. Robin Kalandra
KALANDRA Immobilien Robert Kalandra e.U.
T +43-1533326913
H +43-69911804004
F +43-1-533-32-69-20