Individuell planbare Neubauhäuser auf Eigenrund - IHR Eigenheim mit 114m² Garten.
Haus
- Doppelhaushälfte,
1220
Wien
Beschreibung der Immobilie
Individuell planbare Neubauhäuser auf Eigenrund - IHR Eigenheim mit 114m² Garten.
Qualität auf höchstem Niveau - Planung und Ausführung nach eigenen Wünschen und Bedürfnissen.
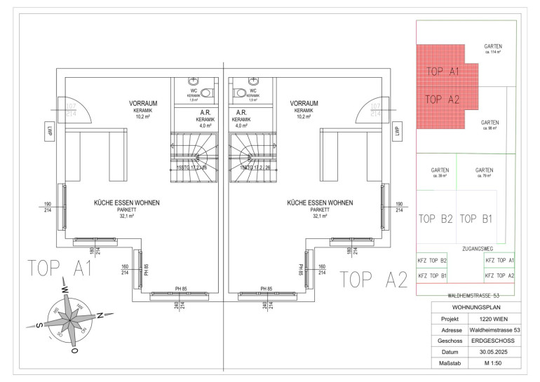
Aufgeteilt auf drei Ebenen verfügt die Immobilie über eine Wohnnutzfläche von ca. 121m², drei helle Schlafzimmer, ein Tageslichtbadezimmer und zwei getrennte Toiletten. Das Herzstück bildet der lichtdurchströmte Wohn-/ Essbereich mit vollausgestatteter Einbauküche samt Elektrogeräte und Zugang auf die herrliche Terrasse mit angrenzendem 114m² Eigengarten. Ein weiteres Highlight sind die herrliche Freiflächen, welche einen umwerfenden Fernblick über den Dächern Wiens versprechen. Der Grundriss lässt sich individuell planen und ermöglicht Ihnen somit freie Hand bei der finalen Gestaltung Ihres neuen Eigenheims.
In einer idyllischen Einfamilienhaussiedlung gelegen, erfahren Sie die Vorteile einer ländlichen Atmosphäre Nahe der belebten Wiener Innenstadt. Die Immobilie bietet seinen neuen Bewohnern einen Ort zum Ankommen und Wohlfühlen gemeinsam mit einem traumhaften Gartenparadies auf Eigengrund. Gegen einen Aufpreis besteht die Möglichkeit eine Sauna und Whirlpool auf dem Dachgeschoss zu errichten. Ergreifen Sie jetzt die einmalige Chance Ihr Traumhaus nach eigenen Wünschen und Bedürfnissen zu gestalten und pure Lebensqualität erfahren zu dürfen.
Flächenaufstellung:
Erdgeschoss 48,20m² + Terrasse ca. 12m²
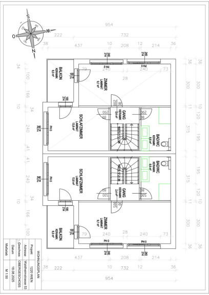
Obergeschoss 32,50m² + 6,00m² Balkon
Dachgeschoss 36,50m² + Dachterrassen 7,8m²
Eigengarten mit ca. 114m² Nutzfläche
Kostenübersicht:
Kaufpreis Eigengrundstück: € 250.000, -
Kaufpreis Haus schlüsselfertig gegen Aufpreis: € 219.900, -
Aufpreis Variante Luxury zusätzliche Etage mit ca. 45,70m² Dachterrasse: € 50.000, -
Baubeginn 3 Monate ab Bemusterung und KV - Unterzeichnung, Bauzeit ca. 3 - 4 Monate
Lagebeschreibung:
Der Standort bietet eine ideale Kombination aus urbanem Wohnen und Naturnähe in der lebenswertesten Stadt der Welt. Eine Vielzahl an Freizeitaktivitäten und Erholungsmöglichkeiten für die ganze Familie befinden sich nur einen Steinwurf entfern. Diverse Einkaufsmöglichkeiten für den täglichen Bedarf wie Billa, Spar sowie öffentliche Verkehrsmittel per Bus und Zug erreichen Sie bequem in wenigen Minuten. Das exklusive Wohnbauprojekt in idyllischer Grünruhelage des begehrten 22. Bezirks verbindet elegantes Design mit modernem Komfort.
Neugierig geworden? Dann melden Sie sich gerne jederzeit unverbindlich unter: +43 677 61510 881.
Als gewerbliche Vermögensberater bieten wir Ihnen zusätzlich die passende Finanzierung Ihrer Traumimmobilie zu den besten Konditionen!
Wir möchten Sie informieren, dass ein Provisionsanspruch erst nach Unterzeichnung eines Miet- oder Kaufanbots besteht. Besichtigungen und Auskünfte sind selbstverständlich unverbindlich und kostenlos. Oben angeführte Angaben basieren auf Informationen und Unterlagen des Eigentümers und sind unsererseits ohne Gewähr. Wir dürfen gem. § 5 Maklergesetz darauf hinweisen, dass wir als Doppelmakler tätig sind und ein wirtschaftliches Naheverhältnis zu unserem Auftraggeber besteht.
Wir weisen darauf hin, dass zwischen dem Vermittler und dem zu vermittelnden Dritten ein familiäres oder wirtschaftliches Naheverhältnis besteht.
Der Vermittler ist als Doppelmakler tätig.
Infrastruktur / Entfernungen
Gesundheit
Arzt <1.500m
Apotheke <1.500m
Klinik <3.000m
Krankenhaus <6.000m
Kinder & Schulen
Schule <1.000m
Kindergarten <1.500m
Universität <1.500m
Höhere Schule <2.500m
Nahversorgung
Supermarkt <1.000m
Bäckerei <1.500m
Einkaufszentrum <1.500m
Sonstige
Bank <1.500m
Geldautomat <2.000m
Post <1.500m
Polizei <1.500m
Verkehr
Bus <500m
U-Bahn <3.000m
Straßenbahn <3.500m
Bahnhof <3.000m
Autobahnanschluss <6.500m
Angaben Entfernung Luftlinie / Quelle: OpenStreetMap
Eckdaten Objektnr. 6352/2445
Art: | Haus - Doppelhaushälfte |
Land: | Österreich |
Zustand: | Erstbezug |
Alter: | Neubau |
Kaufpreis: | 469.900,00 € |
Provision: | 3% des Kaufpreises zzgl. 20% USt. |
Wohnfläche: | 120,80 m² |
Nutzfläche: | 128,24 m² |
Zimmer: | 4 |
Bäder: | 1 |
WC: | 2 |
Balkone: | 1 |
Terrassen: | 2 |
Stellplätze: | 2 |
Garten: | 114,00 m² |
Heizwärmebedarf: | B 46,40 kWh/m²a |
fGEE: | A 0,75 |
Ausstattung
Fliesen, Parkett, Fußbodenheizung, Einbauküche, Bad mit Fenster, Badewanne, Parkplatz
Ihre persönliche Beratung

AURELIUM REAL ESTATE
AURELIUM REAL ESTATE GmbH
T +43 680 3221752
H +4367761616848