2-Zimmer Wohnung in BESTER Stadtlage!

Wohnung , 8010 Graz


II. St.Leonhard, Schützenhofgasse

Beschreibung der Immobilie

2-Zimmer Wohnung in BESTER Stadtlage!

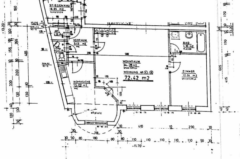
2 Zimmer-Wohnung mit ca. 72 m² Wohnfläche, 2.OG mit Lift



Zubehör: Kellerersatzraum



Heizung: Elektro - Neue Infrarot Heizung



Energieausweis: HWB: 37,8 HWB Energieklasse B



Autoabstellplatz: öffentlicher Autoabstellplatz, ein TG-Platz kann für rund € 90,00 angemietet werden



Gesamtzustand: gut



Besonderes: sehr ruhig, gute Raumaufteilung, großzügige Küche, Südausrichtung, gepflegtes Haus, die Inneneinrichtung kann ausgetauscht werden, Innenhofmitbenützung, perfekte Stadtlage UNI bzw. LKH-Nähe.

 



Gesamtmiete: € 890,00,00 inkl. BK exkl.Heizung



Heizung: € ca.130,00 inkl. Haushaltsstrom





Kaution: 3 Monatsmieten



Honorar: !!! Provisionsfrei für den Mieter!!!



Auskünfte: Herr Dusleag Peter, Tel.: 0676/ 421 57 52





Wir freuen uns in Ihrem Interesse tätig zu sein und stehen Ihnen gerne für Detailfragen zur Verfügung!




Der Immobilienmakler erklärt, dass er – entgegen dem in der Immobilienwirtschaft üblichen Geschäftsgebrauch des Doppelmaklers – einseitig nur für den Vermieter tätig ist.

Infrastruktur / Entfernungen

Gesundheit
Arzt <500m
Apotheke <500m
Klinik <1.000m
Krankenhaus <1.500m

Kinder & Schulen
Schule <500m
Kindergarten <500m
Universität <500m
Höhere Schule <1.500m

Nahversorgung
Supermarkt <500m
Bäckerei <500m
Einkaufszentrum <1.000m

Sonstige
Geldautomat <500m
Bank <500m
Post <500m
Polizei <1.000m

Verkehr
Bus <500m
Straßenbahn <500m
Autobahnanschluss <4.500m
Bahnhof <2.000m
Flughafen <9.500m

Angaben Entfernung Luftlinie / Quelle: OpenStreetMap

Eckdaten Objektnr. 5940/10042

Art: Wohnung
Land: Österreich
Zustand: Gepflegt
Alter: Neubau
Gesamtmiete: 960,00
Kaltmiete (netto): 890,00 €
Kaltmiete: 890,00 €
Provision: Gemäß Erstauftraggeberprinzip bezahlt der Abgeber die Provision.
Heizkosten: 70,00 €
Wohnfläche: 72,00 m²
Bäder: 1
WC: 1
Heizwärmebedarf:  B  37,80 kWh/m²a
Immobilie merken Exposé

Ausstattung

Parkett, Elektro, Einbauküche, Personenaufzug, Badewanne


Immobilie anfragen


Ihre persönliche Beratung

PD Immobilien

Peter Dusleag

PD Immo

T +43 676 421 57 52

H 0771717771717