ERSTBEZUG - Modernes Einfamilienhaus mit 148 m² Wohnfläche, Balkon, Terrasse & 2 PKW-Stellplätzen in Strasshof – belagsfertig!
Haus
- Einfamilienhaus,
2231
Strasshof an der Nordbahn
Beschreibung der Immobilie
ERSTBEZUG - Modernes Einfamilienhaus mit 148 m² Wohnfläche, Balkon, Terrasse & 2 PKW-Stellplätzen in Strasshof – belagsfertig!
Verkauft wird ein modernes, hochwertig errichtetes Einfamilienhaus in zentraler Lage in Strasshof an der Nordbahn nur wenige Kilometer von Wien entfernt.
Das Haus verfügt über eine Wohnfläche von rund 148,48 m² auf zwei Ebenen, ergänzt durch Balkon, Terrasse und 2 PKW-Stellplätze. Die Grundstücksfläche beträgt ca. 572 m² und bietet somit viel Platz für Familien und Freiraumgestaltung.
Die Liegenschaft überzeugt durch eine durchdachte Raumaufteilung, moderne Architektur und exklusive Ausstattung.
Raumaufteilung
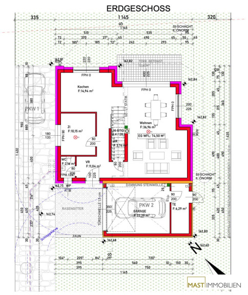
Erdgeschoss:
- Wohnzimmer: 36,96 m²
- Küche: 14,94 m²
- Zimmer: 10,15 m²
- WC: 2,16 m²
- Vorraum: 11,04 m²
- Abstellraum: 2,74 m²
Obergeschoss:
- Flur: 9,04 m²
- Badezimmer: 10,65 m²
- Zimmer 1: 19,80 m²
- Zimmer 2: 16,74 m²
- Zimmer 3: 18,24 m²
Ausstattung & Highlights
- Massivbauweise mit Ziegel
- Moderne Architektur & durchdachtes Raumkonzept
- Balkon & Terrasse
- 2 PKW-Stellplätze
- Belagsfertige Ausführung (schlüsselfertig gegen Aufpreis möglich)
- Weitere Details auf Anfrage
Lage
Das Einfamilienhaus befindet sich in 2231 Strasshof an der Nordbahn, einer ruhigen und dennoch sehr zentralen Wohngegend. In unmittelbarer Umgebung befinden sich Nahversorger, Supermärkte, Bäckereien, Apotheken sowie Gastronomie, die bequem zu Fuß oder in wenigen Minuten mit dem Fahrrad erreichbar sind.
Für Familien besonders attraktiv:
- Kindergärten sind in rund 5 Gehminuten erreichbar.
- Volksschule und Mittelschule Strasshof befinden sich in ca. 10 Gehminuten Entfernung.
- Weiterführende Schulen wie Gymnasium, BHAK/BHAS oder Polytechnische Lehranstalt liegen in den Nachbarorten und sind mit dem Schulbus oder dem Fahrrad gut erreichbar.
Die öffentliche Verkehrsanbindung ist ausgezeichnet: Der Bahnhof Strasshof ist in wenigen Minuten fußläufig erreichbar. Von hier aus bringt Sie die Schnellbahnlinie S1 in kurzer Zeit direkt nach Wien (U1 Leopoldau, U2 Praterstern, U3 Landstraße, U6 Floridsdorf). Auch Regionalzüge halten regelmäßig und bieten zusätzliche Flexibilität.
Mit dem Auto erreichen Sie die Stadtgrenze von Wien in etwa 15 Minuten. Nach Fertigstellung der geplanten S8 Marchfeld Schnellstraße wird Strasshof zudem einen direkten Schnellstraßenanschluss erhalten ein großer Vorteil für Pendler.
Hinweis:
Wir weisen darauf hin, dass zum Auftraggeber ein wirtschaftliches Naheverhältnis besteht.
Weiters möchten wir Sie über unsere Tätigkeit als Doppelmakler gemäß § 17 Maklergesetz informieren.
Wir weisen darauf hin, dass zwischen dem Vermittler und dem zu vermittelnden Dritten ein familiäres oder wirtschaftliches Naheverhältnis besteht.
Der Vermittler ist als Doppelmakler tätig.
Infrastruktur / Entfernungen
Gesundheit
Arzt <1.500m
Apotheke <2.000m
Klinik <6.000m
Kinder & Schulen
Kindergarten <1.000m
Schule <500m
Nahversorgung
Supermarkt <500m
Bäckerei <2.000m
Sonstige
Bank <1.500m
Geldautomat <1.500m
Post <2.000m
Polizei <6.000m
Verkehr
Bus <500m
Bahnhof <1.500m
Angaben Entfernung Luftlinie / Quelle: OpenStreetMap
Eckdaten Objektnr. 5387/7266
Art: | Haus - Einfamilienhaus |
Land: | Österreich |
Baujahr: | 2025 |
Zustand: | Erstbezug |
Alter: | Neubau |
Kaufpreis: | 649.000,00 € |
Provision: | 3% des Kaufpreises zzgl. 20% USt. |
Wohnfläche: | 148,48 m² |
Zimmer: | 5 |
Bäder: | 1 |
WC: | 2 |
Balkone: | 1 |
Terrassen: | 1 |
Stellplätze: | 1 |
Ausstattung
Estrichboden, Bad mit Fenster, Badewanne, Dusche, Garage
Ihre persönliche Beratung

Stefanie Vidovic
MA.ST Immobilien & Design e.U.
T +43 664 967 65 48