Büroflächen im Shoppingcenter Galleria | 1030 Wien
                                                            Büro / Praxis
                                - Bürofläche,
                            
                            
                                
                                                                            1030
                                    
                                                                            Wien
                                    
                                    
                                
                                                                    
                                        
                                    
                                
                            
                        
                        Beschreibung der Immobilie
Büroflächen im Shoppingcenter Galleria | 1030 Wien
BESCHREIBUNGIm Einkaufszentrum Galleria kommen inmitten des 3. Bezirks Büroflächen in die Vermarktung.
Die Flächen bieten moderne Ausstattung; im Haus selbst gibt es einen Lift sowie eine hauseigene Parkgarage.
VERFÜGBARKEIT
ab 01.11.2025
VERFÜGBARE MIETFLÄCHEN
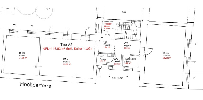
EG Top A5 117 m² € 15,00
1.OG Top A6 101 m² € 15,00
Betriebskosten € 4,70
PKW-Stellplatz € 150,00 / Monat
AUSSTATTUNG
Personenaufzug
Parkettboden
flexible Gipskartonwände
Küche
Innen liegender Sonnenschutz
Zentralheizung
Spiegelrasterleuchten
TECHNISCHE DETAILS
Neubau
Energiekennwerte:
Energieklasse B
Heizwärmebedarf: 46,90 kWh/m²a
LAGE UND VERKEHRSANBINDUNG
öffentlicher Verkehr:
U-Bahn: U3
Schnellbahn: Station Wien Mitte - Landstraße
Straßenbahn: O, 1
Bus: 4A, 74A, 77A
PKW-Stellplätze in der hauseigenen Parkgarage vorhanden
€ 150,00 / Stellplatz / Monat
Individualverkehr:
Mit öffentlichen Verkehrsmitteln ist eine optimale Erreichbarkeit geboten. Weiters ist die Anschlussstelle Gürtel auf die A23 in wenigen Minuten erreichbar und bietet eine schnelle PKW- Anbindung zum Flughafen und den Autobahnen.
INFRASTRUKTUR
Durch die Lage im Einkaufszentrum Galleria ist eine hervorragende Infrastruktur mit zahlreichen Geschäften, Supermärktes sowie Restaurants & Cafés gegeben.
KAUTION
3-6 Bruttomonatsmieten
PROVISION
Im Falle eines Vertragsabschlusses beträgt unser Honorar lt. Maklerverordnung für Immobilienmakler, BGBI.262 und 297/1996, 3 Bruttomonatsmieten zzgl. 20 % Ust. Weiters möchten wir auf unsere allgemeinen Geschäftsbedingungen und den ausschließlichen Gerichtsstand Wien, Innere Stadt verweisen.
Alle Preisangaben verstehen sich pro Monat, zzgl. der gesetzlichen Ust. und Betriebskosten
Eckdaten Objektnr. 337/05730
| Art: | Büro / Praxis - Bürofläche | 
| Land: | Österreich | 
| Baujahr: | 1890 | 
| Alter: | Neubau | 
| Gesamtmiete: | 2.765,88 € | 
| Kaltmiete (netto): | 1.755,00 € | 
| Miete / m²: | 15,00 € | 
| Provision: | 3BMM | 
| Betriebskosten: | 549,90 € | 
| MwSt Gesamt: | 460,98 € | 
| Nutzfläche: | 117,00 m² | 
| Zimmer: | 3 | 
| WC: | 1 | 
| Heizwärmebedarf: | D 123,80 kWh/m²a | 
| fGEE: | C 1,60 | 
Ihre persönliche Beratung
 
                    MA Florian Bogner
Colliers International Immobilienmakler GmbH
T +43 1 535 53 05531
F +43 1 535 53 25
Dieser Makler ist ein offizielles Mitglied des IR – ir.at Mehr Erfahren
 
                 
                 
                 
                 
                 
                 
                 
                 
                