Helle Wohnung mit Balkon auf ganzer Etage zzgl. Rohdachboden, Nähe Einsiedlerpark
Wohnung
- Etage,
1050
Wien
Beschreibung der Immobilie
Helle Wohnung mit Balkon auf ganzer Etage zzgl. Rohdachboden, Nähe Einsiedlerpark
Im Falle der Notwendigkeit einer Fremdfinanzierung Ihrer Wunschimmobilie ermittelt unser Wohnbau-Finanzierungsexperte gerne die optimale Finanzierungslösung und findet das passende Zins- und Konditionsangebot für Sie. Er vergleicht die aktuellen Angebote aller relevanten Banken und Bausparkassen. Der Angebotsvergleich kann aus einem Portfolio von über 120 Banken erfolgen. Das Erstgespräch ist für Sie kostenfrei und unverbindlich, gerne auch bei Ihnen vor Ort. So sparen Sie Ihre wertvolle Zeit und erhalten eine professionelle und unabhängige Finanzierungslösung vom Spezialisten. Sprechen Sie uns wegen eines Termins gerne an!
Zum Verkauf gelangt eine helle 5-Zimmer Wohnung im 5. Wiener Gemeindebezirk.
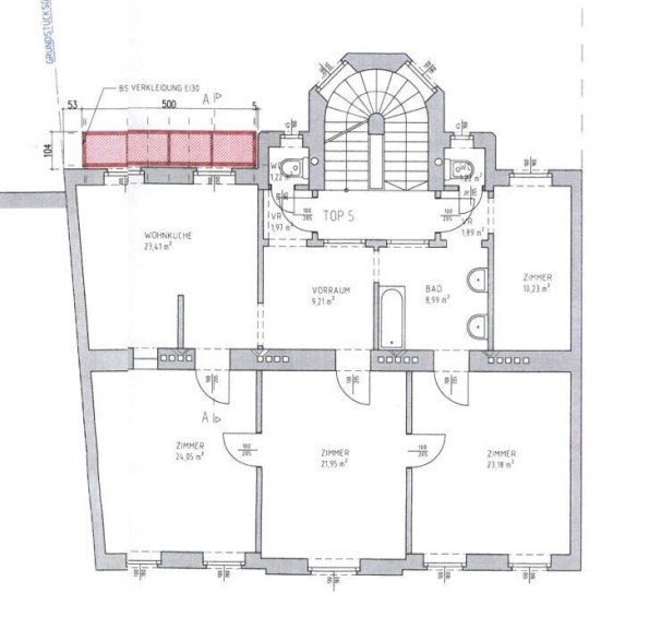
Die Wohnung, mit ca. 128 m² Wohnfläche, befindet sich im 3. Stock eines schönen Altbaus und gliedert sich in ein Vorzimmer, einen Vorraum, eine Wohnküche mit Balkon in einen grünen Innenhof, vier Zimmer, ein Bad und zwei WCs. Beheizt wird mittels Gas-Etagenheizung. Die Wohnräume sind mit schönem Parkettboden ausgestattet, die Nassräume sind verfliest.
Zur Wohnung ist der Rohdachboden mit einer Größe von knapp 145m² als Zubehör parifziert.
Die Einheit befindet sich aktuell in einem gepflegten, gebrauchten Zustand. Im Zuge einer Generalsanierung würde sich eine großzügige 4-5 Zimmer Wohnung mit ansprechendem Grundriss gestalten lassen.
Seitens der Verkäuferseite kann die Wohnung auch als sanierter Erstbezug erworben werden. Die Grundrissplanung und Ausstattung kann in Absprache mit dem Verkäufer flexibel ausgeführt werden.
Das Objekt besticht durch seine ausgezeichnete Lage. In unmittelbarer Nähe befinden sich diverse Geschäfte des täglichen Bedarfs sowie Restaurants und Kaffeehäuser. Die Anbindung an den öffentlichen Verkehr wird über die Buslinien 12A, 14A und 59A sowie die Straßenbahnlinien 6 und 18 gewährleistet. Die Haltestellen sind in nur wenigen Gehminuten erreichbar. Die U4 Station Margaretengürtel erreichen Sie zudem in 8 Gehminuten. In Zukunft wird auch eine neue Haltestelle der Linie U2 in der Nähe vorzufinden sein. Die zahlreichen Parks in der Umgebung laden zudem zu ausgiebigen Spaziergängen in der Natur ein.
Die Vertragserrichtung und Treuhandabwicklung ist gebunden an die Kanzlei Mag. Schreiber A-1010 Wien, Schottenring 16. Die Kosten betragen 1,5% + 20% Ust + Barauslagen.
Gerne lassen wir Ihnen bei ernsthaftem Interesse - vor Kaufanbotlegung - weitere vertraulichen Dokumente zu dieser Liegenschaft zukommen, welche nicht veröffentlicht werden dürfen.
Überzeugen Sie sich selbst von diesem Objekt. Für Besichtigungen und nähere Informationen stehen wir Ihnen gerne zur Verfügung!
Frau Marie-Louise Eisenburger
national - Tel: 0676 605 9800
international - Tel: +43 676 605 9800
e-mail: eisenburger@lifestyle-properties.at
Hinweis gemäß Energieausweisvorlagegesetz: Ein Energieausweis wurde vom Eigentümer bzw. Verkäufer, nach unserer Aufklärung über die generell geltende Vorlagepflicht, sowie Aufforderung zu seiner Erstellung noch nicht vorgelegt. Daher gilt zumindest eine dem Alter und der Art des Gebäudes entsprechende Gesamtenergieeffizienz als vereinbart. Wir übernehmen keinerlei Gewähr oder Haftung für die tatsächliche Energieeffizienz der angebotenen Immobilie.
Wir weisen darauf hin, dass zwischen dem Vermittler und dem zu vermittelnden Dritten ein familiäres oder wirtschaftliches Naheverhältnis besteht.
Der Vermittler ist als Doppelmakler tätig.
Infrastruktur / Entfernungen
Gesundheit
Arzt <500m
Apotheke <500m
Klinik <1.000m
Krankenhaus <1.000m
Kinder & Schulen
Schule <500m
Kindergarten <500m
Universität <1.500m
Höhere Schule <1.000m
Nahversorgung
Supermarkt <500m
Bäckerei <500m
Einkaufszentrum <1.500m
Sonstige
Geldautomat <500m
Bank <500m
Post <500m
Polizei <1.000m
Verkehr
Bus <500m
U-Bahn <500m
Straßenbahn <500m
Bahnhof <1.000m
Autobahnanschluss <4.000m
Angaben Entfernung Luftlinie / Quelle: OpenStreetMap
Eckdaten Objektnr. 4996
Art: | Wohnung - Etage |
Land: | Österreich |
Baujahr: | 1900 |
Zustand: | Gepflegt |
Alter: | Altbau |
Kaufpreis: | 849.000,00 € |
Provision: | 3% des Kaufpreises zzgl. 20% USt. |
Betriebskosten: | 255,25 € |
MwSt Gesamt: | 25,53 € |
Wohnfläche: | 127,60 m² |
Zimmer: | 5 |
Bäder: | 1 |
WC: | 2 |
Ausstattung
Fliesen, Parkett, Gas, Etagenheizung, Dusche
Ihre persönliche Beratung

Marie-Louise Eisenburger
Lifestyle Properties
T +43 1 512 14 84
H +43 676 6059800