Beschreibung der Immobilie
MODERNE 4-ZIMMER WOHNUNG MIT BALKON
NEUBAUBMIETE - NÄHE GERSTHOFERSTRASSE
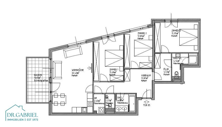
RAUMAUFTEILUNG:
Eingangsbereich, Wohn- Esszimmer mit voll ausgestatteter offenen Küche und Zugang zum Balkon, 3 Schlafzimmer, ein Badezimmer mit Wanne und Waschmaschienenanschluss, ein Duschbad mit WC, ein Abstellraum und eine separate Toilette.
AUSSTATTUNG:
- hochwertigen Vollholzparkettböden in den Wohn- und Schlafräumen
- Fliesen in den Sanitärbereichen
- Miele Geräte in der Küche
- elektrische Außenjalousie
- Videogegensprechanlage
- Fußbodenheizung
Die Anlage verfügt über Kellerabteile, Fahrrad- und Kinderwagenabstellraum und eine Waschküche.
Garagenstellplätze können separat (nach Verfügbarkeit) angemietet werden € 120,00/Monat angemietet werden - Kaution: € 300,00 - Abwicklungshonorar an die Hausverwaltung: € 120,00
Die ausgezeichnete Umgebung der Wohnungsanlage bietet in unmittelbarer Nähe:
- Einkaufsmöglichkeiten
- Pötzleinsdorfer Schlosspark
- BOKU Wien
- internationale Schulen und Kindergärten
- gute Anbindung an öffentliche Verkehrsmittel (Straßenbahn: 41, Bus: 40A)
- Abwicklungshonorar an die Hausverwaltung: € 155,00
* Dieses Objekt wird Ihnen unverbindlich und freibleibend angeboten. Oben angeführte Angaben basieren auf Informationen und Unterlagen des Eigentümers und sind unsererseits ohne Gewähr.
********************************************************************
LAYOUT:
entrance area, a living-dining room with a fully equipped open kitchen with access to the balcony, 3 bedrooms, a bathroom with tub and washing machine connection, a storage room and a separate toilet.
Contact us for a viewing and convince yourself of everything this apartment can offer you.
The high-quality equipment convinces especially by
- by hardwood parquet floors in the living and sleeping areas tiles in the sanitary areas
- tiles in the sanitary areas
- Miele appliances in the kitchen
- electric outside blinds
- video intercom
- floor heating
Each apartment has a cellar compartment in the basement, a bicycle- and stroller storage room and a laundry room for shared use are available in the condominium.
Garage parking spaces can be rented separately depending on availability.€ 120,00/month - Deposit: € 300,00 - Contract preparation fee to the property management company: € 120,00
Contract preparation fee to the property management company: € 155,00
The excellent infrastructure of the residential complex offers in the immediate vicinity:
- numerous grocery stores
- the Pötzleinsdorfer Schlosspark
- the BOKU Vienna
- international schools and kindergarten
- excellent access to public transport (tram 41, bus 40A)
Der Immobilienmakler erklärt, dass er – entgegen dem in der Immobilienwirtschaft üblichen Geschäftsgebrauch des Doppelmaklers – einseitig nur für den Vermieter tätig ist.
Eckdaten Objektnr. 29505
Art: | Wohnung |
Land: | Österreich |
Baujahr: | 2019 |
Zustand: | Gepflegt |
Alter: | Neubau |
Gesamtmiete: | 3.035,00 € |
Kaltmiete (netto): | 2.428,96 € |
Kaltmiete: | 2.759,09 € |
Provision: | Gemäß Erstauftraggeberprinzip bezahlt der Abgeber die Provision. |
Betriebskosten: | 330,13 € |
MwSt Gesamt: | 275,91 € |
Wohnfläche: | 108,25 m² |
Zimmer: | 4 |
Bäder: | 2 |
WC: | 2 |
Balkone: | 1 |
Heizwärmebedarf: | B 31,82 kWh/m²a |
fGEE: | A 0,77 |
Ausstattung
Parkett, Fliesen, Fernwärme, Fußbodenheizung, Einbauküche, Wohnküche / offene Küche, Personenaufzug, Badewanne, Kabel/Satelliten-TV, Garage, Wasch/Trockenraum
Ihre persönliche Beratung

Office Team
Dr. Alexandra Gabriel Realitätenvermittlungsgesellschaft m.b.H.
T +43 1 533 10 96