Beschreibung der Immobilie
„Aspern Living – Garten & City im Einklang“
Willkommen im „Löwenzahn & Espenlaub“
Unter dem Projektnamen „Löwenzahn & Espenlaub“ entstehen acht hochwertig geplante Eigentumswohnungen, die modernes und nachhaltiges Wohnen mit urbanem Anspruch vereinen. Die Wohnflächen reichen von kompakten 39 m² bis zu großzügigen 138 m² – ideal für Singles, Paare und Familien.
Jede Wohnung verfügt über eine private Freifläche wie Balkon, Terrasse oder Garten. Zusätzlich stehen gemeinschaftliche Grünbereiche und Urban-Gardening-Flächen zur Verfügung.
Es stehen folgende Immobilien zur Auswahl
- zwei 2-Zimmer-Wohnungen
- vier 3-Zimmer-Wohnungen
- zwei exklusive 4-Zimmer-Maisonetten mit Galerieebene
Das Projekt wird als Niedrigenergiehaus mit ÖGNI-Gold-Zertifizierung umgesetzt und bietet modernste Technik wie Luftwärmepumpen, Photovoltaik und Fußbodenheizung.
Lage des Wohnprojekts
Der traditionsreiche Stadtteil Aspern verbindet urbane Entwicklung mit historisch gewachsenem Umfeld.
Der Asperner Heldenplatz bildet dabei das lebendige Zentrum: ein historisch geprägter Platz, der heute mit seinem beliebten Bauernmarkt, Cafés, Nahversorgern und dem angrenzenden Schulcampus zu einem Treffpunkt für Bewohner geworden ist.
Wer errichtet das „Löwenzahn & Espenlaub“
Dieser österreichische Bauträger ist ein angesehener Projektentwickler, der sich auf nachhaltige und wertorientierte Wohnbauprojekte spezialisiert hat. Bereits über 1.600 neue Wohnungen wurden erfolgreich realisiert – die allesamt innerhalb kurzer Zeit abverkauft wurden. Das Unternehmen ist bereits mehrfach ausgezeichnet. Zudem ist das Unternehmen Mitglied bei bedeutenden Verbänden wie ÖGNI, ÖVI, VÖPE, was für verbindliche Qualitätsstandards steht.
Käuferinnen und Käufer profitieren von unserer gemeinsamen Erfahrung, Sicherheit und einem reibungslosen Ablauf – von der ersten Beratung bis hin zur Schlüsselübergabe begleiten wir Sie!
Gerne laden wir Sie zu einem unverbindlichen Beratungsgespräch ein, um all Ihre Fragen und die weitere Vorgehensweise zu dem Wohnprojekt „Löwenzahn & Espenlaub“ im Detail mit Ihnen besprechen zu können. Ich freue mich darauf Sie kennenzulernen!
Ausstattung & Besonderheiten
- Hochwertige Architektur und moderne Grundrisse
- Nachhaltiges Energiekonzept
- Photovoltaikanlage auf dem Dach zur Unterstützung der Stromversorgung der Allgemeinbereiche.
- Heizung und Warmwasser erfolgt mittels Luft-Wärmepumpen
- Fußbodenheizung für behagliches Wohnen
- Kühlung über die Fußbodenheizung- Eine Temperierung kann im Sommer über diese erfolgen
- Vorbereitung für eine Klimaanlage bei allen Wohnungen (Leitungen, Einreichung, ohne Endgeräte). Diese Wohnungen können gegen Aufpreis mit einer Klimaanlage ausgestattet werden
- Großzügige Fensterflächen für viel Tageslicht
- Kunststoff- ALU Fenster- 3 Scheiben Isolierverglasung
- Im EG: elektrisch bedienbarer Außenrollläden mit Aushebesperrriegel
- In den OG: elektrisch bedienbare Außenraffstores
- Im DG: elektrisch bedienbare Außenrollläden (Solar)
- Scheucher-Parkett Eiche
- Sanitärräume- Feinsteinzeug 60x 60 cm
- Terrasse und Eigengarten als erweiterter Wohnraum
- Sicherheitstüren einbruchhemmend, Widerstandsklasse WK3
- Gemeinschaftliche Grünflächen
- Urban-Gardening-Flächen
- Tiefgarage mit 11 Stellplätzen
- Möglichkeit zur Nachrüstung auf E-Tankstellen. Die Leerverrohrungen werden ausgeführt.
- Jeder Wohnung ist im UG ein Einlagerungsraum zugeordnet
- Medienversorgung über A1, Verkabelung im Wohnbereich, Leerverrohrung in den Zimmern.
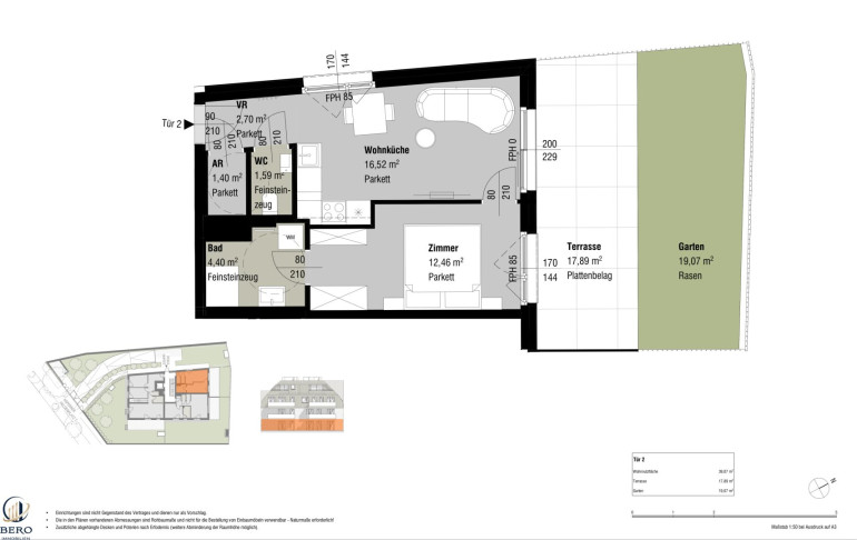
2 Zimmer Gartenwohnung
Top 2
Diese barrierefreie Erdgeschosswohnung bietet eine offene Wohnküche, ein geräumiges Schlafzimmer mit Bad en Suite. Weiters ein separates WC einen praktischen Abstellraum sowie eine großzügige Terrasse und einen privaten Garten. Große Fensterfronten schaffen ein helles Ambiente.
Ideal für: Singles, Paare und Gartenfreunde, Homeoffice im Grünen möglich. Abends bei einem Getränk die untergehende Sonne genießen, morgens barfuß durch den Tau laufen – Lebensqualität pur.
Raumaufteilung
- Wohnfläche: ca. 39,07 m²
- offene Wohnküche ca. 16,52 m²
- 2 Zimmer
- Terrasse: ca. 17,89 m²
- Garten, Nordwest- Ausrichtung: ca. 19,07 m²
- Bad mit Dusche, Waschtisch & WaMa Anschluss
- separates WC
- praktischer Abstellraum
- Barrierefrei
Ein Stellplatz in der hauseigenen Tiefgarage ist um € 34.900 dazu zu erwerben.
Lage, Infrastruktur & Freizeit
Durch die Nähe zur Seestadt Aspern – einem der größten Stadtentwicklungsprojekte Europas – gewinnt die Lage zusehends an Attraktivität. Moderne Infrastruktur, Arbeitsplätze, Bildungseinrichtungen und kulturelle Angebote entstehen im direkten Umfeld und machen Aspern zu einem der spannendsten Wohnstandorte Wiens.
Gleichzeitig ist der Stadtteil von Grünräumen umgeben: die Lobau, dass Mühlwasser, die Neue Donau und der Badeteich Hirschstetten sind nur wenige Minuten entfernt und bieten Freizeit- und Erholungsraum von höchster Qualität. Die U2-Station Aspernstraße sowie Straßenbahn- und Buslinien garantieren eine schnelle Anbindung in die Wiener Innenstadt – in rund 15 Minuten erreichen Sie den ersten Bezirk.
Öffentlicher Verkehr
- U2 Aspernstraße
- Straßenbahn 25
- Buslinien 26A, 93A, 97A, 98A, N26, N91 – direkte Verbindung ins Stadtzentrum (ca. 15 Minuten).
Einkaufsmöglichkeiten
Supermärkte, Bäckerei, Apotheke, Banken sowie der Bauernmarkt am Siegesplatz befinden sich in unmittelbarer Nähe.
Bildung
Kindergärten, Volksschule und Neue Mittelschule liegen direkt angrenzend.
Freizeitmöglichkeiten
Rund um den Asperner Heldenplatz eröffnet sich ein vielfältiges Freizeitangebot. Denn die Lobau, dass Mühlwasser, die Neue Donau und der Badeteich Hirschstetten sind nur wenige Minuten entfernt. Von entspannten Spaziergängen in der Lobau über Radtouren entlang der Donauinsel bis hin zu Badeerlebnissen im Mühlwasser oder im Badeteich Hirschstetten. Sportanlagen, Spielplätze und Naherholungsgebiete machen den Standort ideal für Familien, Sportbegeisterte und Naturliebhaber.
Der Astrid‑Lindgren‑Park südlich des Heldenplatzes bietet mit Spielplätzen, Sitzgelegenheiten und einem Kriegerdenkmal ruhige Oasen mitten im Quartier. Sowohl der Siegesplatz als auch der Heldenplatz stehen im Fokus von Stadtgestaltungsplänen, die Begrünung, Verkehrsberuhigung und Aufenthaltsqualität in den Mittelpunkt stellen.
Hinweis & weiterführende Informationen
Wir weisen ausdrücklich auf unser wirtschaftliches Naheverhältnis mit dem Abgeber/der Abgeberin hin! Irrtum und Änderungen vorbehalten! Die angeführten Bilder sind Visualisierungen. Abänderungen zur tatsächlichen Ausführung können resultieren. Die auf den Bildern ersichtlichen Einrichtungsgegenstände und Accessoires werden nicht mit verkauft. Eventuelle Änderungen der vorliegenden Baubeschreibung und Planung, die sich auf Grund von behördlichen Auflagen, Höherer Gewalt, Lieferengpässe, Kundenwünschen oder sonst notwendigen technischen Gründen ergeben, bleiben vorbehalten. Die ursprünglich ausgeschriebene Qualitätsnorm wird jedoch jederzeit gewährleistet. Alle Angaben ohne Gewährleistungsanspruch! Die Angaben im Exposee erfolgen im Auftrag unseres Auftraggebers. Für die Richtigkeit und Vollständigkeit der uns zur Verfügung gestellten Unterlagen/Auskünfte durch Veräußerer, Behörden usw. übernehmen wir keine Gewähr. Eigene Haftung ist ausgeschlossen.
Infrastruktur / Entfernungen
Gesundheit
Arzt <225m
Apotheke <525m
Klinik <975m
Krankenhaus <1.350m
Kinder & Schulen
Schule <150m
Kindergarten <300m
Universität <2.150m
Höhere Schule <2.050m
Nahversorgung
Supermarkt <475m
Bäckerei <275m
Einkaufszentrum <3.200m
Sonstige
Geldautomat <200m
Bank <200m
Post <800m
Polizei <425m
Verkehr
Bus <75m
U-Bahn <850m
Straßenbahn <150m
Bahnhof <850m
Autobahnanschluss <2.600m
Angaben Entfernung Luftlinie / Quelle: OpenStreetMap
Eckdaten Objektnr. 8311/352
Art: | Wohnung |
Land: | Österreich |
Baujahr: | 2025 |
Zustand: | Erstbezug |
Alter: | Neubau |
Kaufpreis: | 259.000,00 € |
Provision: | 3% des Kaufpreises zzgl. 20% USt. |
Wohnfläche: | 39,04 m² |
Zimmer: | 2 |
Bäder: | 1 |
WC: | 1 |
Terrassen: | 1 |
Garten: | 19,07 m² |
Heizwärmebedarf: | B 29,10 kWh/m²a |
fGEE: | A+ 0,67 |
Ausstattung
Dielenboden, Fliesen, Steinboden, Parkett, Fußbodenheizung, Wohnküche / offene Küche, Personenaufzug, Dusche, Kabel/Satelliten-TV, Tiefgarage
Ihre persönliche Beratung

Beatrix Fötsch
Bero Immobilien GmbH
T +43 1 997 80 64
H +43 699 11227903