Historischer Charme und zeitlose Eleganz – eine stilvolle Jahrhundertwendevilla für höchste Ansprüche.
Haus
- Villa,
2483
Ebreichsdorf
Ebreichsdorf ist der ideale Wohnort für alle, die historische Wohnkultur in einer stilvollen Villa mit dem Komfort einer hervorragenden Infrastruktur verbinden möchten. Der Ort bietet alles, was das tägliche Leben angenehm macht: Einkaufsmöglichkeiten, Schulen, Kindergärten, Ärzte und vielfältige Freizeitangebote befinden sich direkt vor Ort. Sport- und Naturfreunde schätzen den nahegelegenen Schlosspark und Golfplatz, die umliegenden Rad- und Wanderwege sowie das renommierte Reitsportzentrum. Ebreichsdorf liegt nur rund 25 km südlich von Wien und vereint idyllisches Landleben mit perfekter Stadtnähe. Dank der schnellen Anbindung über die A3 und den Nahverkehrszug gelangen Sie in etwa 20 Minuten ins Wiener Stadtzentrum. Auch der Flughafen Wien-Schwechat ist in weniger als einer halben Stunde erreichbar.




















Beschreibung der Immobilie
Historischer Charme und zeitlose Eleganz – eine stilvolle Jahrhundertwendevilla für höchste Ansprüche.
Ein Wohnjuwel der Jahrhundertwende
Historischer Charme, moderner Luxus und eine Spitzenlage
Stellen Sie sich vor, Sie wohnen in einer prachtvoll renovierten Jahrhundertwendevilla, die nicht nur großzügigen Wohnraum, sondern auch höchsten Komfort und zeitlose Eleganz bietet. Dieses Anwesen ist die perfekte Wahl für Familien, die historische Architektur mit modernem Wohngefühl in einer begehrten Lage verbinden möchten.
Erdgeschoss und Obergeschoss – repräsentativ und einladend
Schon beim Betreten empfängt Sie ein lichtdurchflutetes Entrée mit hohen Decken, stilvoller Einrichtung und edlen Feinstein- bzw. Marmorböden. Die eleganten Wohnbereiche auf beiden Etagen sind jeweils mit Kaminen ausgestattet und schaffen eine warme, einladende Atmosphäre. Großzügige Speisezimmer mit modernen oder rustikal inspirierten Einbauküchen verbinden den historischen Charakter der Villa mit zeitgemäßem Wohnkomfort. Zusätzliche Zimmer und mehrere Badezimmer bieten durch die großzügige Raumaufteilung flexible Nutzungsmöglichkeiten – ideal für groß Familie, Gäste oder Homeoffice.
Terrasse – Wohnen im Grünen
Vom Wohnbereich im Erdgeschoss gelangen Sie auf die großzügige, südseitige Terrasse mit Blick in den prachtvoll angelegten Garten. Ein perfekter Ort für erholsame Stunden im Freien, gesellige Runden oder sommerliche Feste.
Der Keller – mehr als nur Nutzräume
Neben funktionalen Lagerräumen und dem Heizraum könnte der Bereich auch als gut temperierten Weinkeller genützt werden – ideal zur Lagerung edler Tropfen, für besondere Genussmomente.
Parkmöglichkeiten
Ausreichend Platz für Ihre Fahrzeuge bieten mehrere Stellplätze direkt am Grundstück.
Fazit
Diese prachtvolle Jahrhundertwendevilla vereint den Charme und die Eleganz vergangener Zeiten mit dem Komfort moderner Ausstattung – ein einzigartiges Zuhause in bester Lage.
Noch nichts gefunden? Wir informieren Sie über geeignete Immobilienangebote noch vor allen anderen.
Legen Sie jetzt Ihren individuellen Suchagenten unter folgendem Link an. Wir schicken Ihnen passende Immobilien exklusiv vorab zu.
Suchagent anlegen - https://thomas-engl.service.immo/registrieren/de
Wir weisen darauf hin, dass zwischen dem Vermittler und dem zu vermittelnden Dritten ein familiäres oder wirtschaftliches Naheverhältnis besteht.
Der Vermittler ist als Doppelmakler tätig.
Infrastruktur / Entfernungen
Gesundheit
Arzt <1.000m
Apotheke <1.000m
Klinik <9.500m
Kinder & Schulen
Kindergarten <500m
Schule <1.500m
Nahversorgung
Supermarkt <500m
Bäckerei <1.000m
Einkaufszentrum <9.500m
Sonstige
Bank <1.000m
Geldautomat <1.000m
Post <1.500m
Polizei <1.500m
Verkehr
Bus <500m
Bahnhof <1.500m
Autobahnanschluss <2.500m
Straßenbahn <10.000m
Angaben Entfernung Luftlinie / Quelle: OpenStreetMap
Eckdaten Objektnr. 7536/105
Art: | Haus - Villa |
Land: | Österreich |
Baujahr: | 1900 |
Zustand: | Neuwertig |
Möbliert: | Teil |
Alter: | Altbau |
Kaufpreis: | 1.739.000,00 € |
Provision: | 3% des Kaufpreises zzgl. 20% USt. |
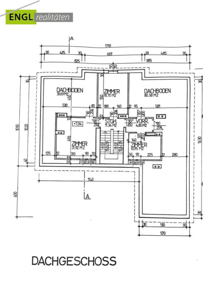
Wohnfläche: | 391,06 m² |
Nutzfläche: | 631,61 m² |
Grundstücksfl.: | 1.856,00 m² |
Zimmer: | 10 |
Bäder: | 3 |
WC: | 4 |
Terrassen: | 1 |
Stellplätze: | 3 |
Keller: | 71,27 m² |
Heizwärmebedarf: | D 118,30 kWh/m²a |
fGEE: | D 1,91 |
Ausstattung
Teppichboden, Fliesen, Steinboden, Gas, Fußbodenheizung, Kamin, Zentralheizung, Wohnküche / offene Küche, Bad mit Fenster, Badewanne, Dusche, Kabel/Satelliten-TV, Parkplatz, Swimmingpool, Wasch/Trockenraum
Ihre persönliche Beratung

Thomas Engl
Engl Realitäten GmbH
T +436608777761
H +436608777761