"Wohntraum" - Neubau Gartenwohnung Top 3 - Erstbezug
Wohnung
,
1170
Wien
,
Franz Glaser Gasse 30
Grün-/Ruhelage
Beschreibung der Immobilie
"Wohntraum" - Neubau Gartenwohnung Top 3 - Erstbezug
"Wohntraum" - Neubau Gartenwohnung Top 3 - Erstbezug
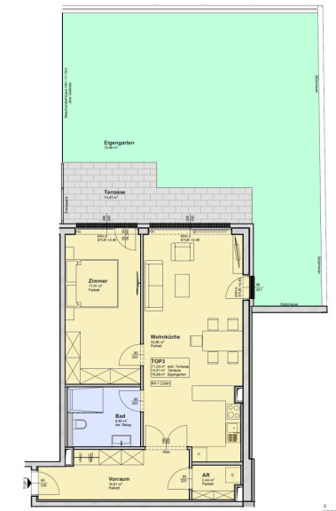
Insgesamt 13 Top´s von 46 m² bis 177 m² mit Terrassen od. Balkon od. Garten -
71 m² Wfl + 14 m² Terrasse + 79 m² Garten:
Großes Wohnzimmer mit offener Küche und Zugang zur Terrasse/Garten - Schlafzimmer mit Schrankraum
und Zugang zur Terrasse/Garten - Bad/WC - Abstellraum - Vorzimmer - Kellerabteil.
Tiefgaragenplätze möglich: á € 258,--
Das Projekt „Franz-Glaser-Gasse 30“ befindet sich in attraktiver Grün- und Ruhelage in Hernals. Eingebettet in die hügeligen
Ausläufer der „Wiener Hausberge“ ist man in wenigen Minuten im Wienerwald und hat Zugang zu einem – für Großstädte –
ungewöhnlichen Naherholungsangebot. Auch in die Stadt hat man es nicht weit: mit der Straßenbahnlinie 43 ist man in 20
Minuten beim Schottentor. Mit Erweiterung der U-Bahnlinie U5 rückt Hernals noch näher an die Innenstadt heran.
Auf dem Grundstück entsteht ein modernes Wohngebäude mit insgesamt 13 Wohneinheiten und knapp 1.100 m²
Gesamtwohnnutzfläche. Alle Wohnungen verfügen über Freiflächen und sind mit Garten, Balkon und/oder Terrasse ausgestattet.
Zusätzlich kommen die künftigen Bewohner in den Genuss einer hauseigenen Tiefgarage mit 11 Stellplätzen, die durch eine
geschwungene Einfahrt erreicht werden. Die Größe der Wohnungen reichen von 2-Zimmer-Wohnungen für Singles und
Pärchen bis hin zum Dachgeschoss-Penthouse, das sich über zwei Etagen erstreckt und einen atemberaubenden Blick bietet.
Für nähere Informationen steht Ihnen Herr Stubenvoll gerne unter 0664/30 88 940 zur Verfügung.
Der Immobilienmakler erklärt, dass er – entgegen dem in der Immobilienwirtschaft üblichen Geschäftsgebrauch des Doppelmaklers – einseitig nur für den Vermieter tätig ist.
Infrastruktur / Entfernungen
Gesundheit
Arzt <950m
Apotheke <1.050m
Klinik <1.500m
Krankenhaus <1.175m
Kinder & Schulen
Schule <1.475m
Kindergarten <850m
Universität <575m
Höhere Schule <2.850m
Nahversorgung
Supermarkt <575m
Bäckerei <900m
Einkaufszentrum <1.425m
Sonstige
Geldautomat <1.400m
Bank <1.400m
Post <950m
Polizei <1.725m
Verkehr
Bus <125m
Straßenbahn <875m
U-Bahn <2.075m
Bahnhof <1.925m
Autobahnanschluss <5.575m
Angaben Entfernung Luftlinie / Quelle: OpenStreetMap
Eckdaten Objektnr. 6115/3334968
Art: | Wohnung |
Land: | Österreich |
Baujahr: | 2023 |
Zustand: | Erstbezug |
Alter: | Neubau |
Gesamtmiete: | 2.770,00 € |
Provision: | Gemäß Erstauftraggeberprinzip bezahlt der Abgeber die Provision. |
Sonstige Kosten: | 2.770,00 € |
Wohnfläche: | 71,00 m² |
Zimmer: | 2 |
Bäder: | 1 |
WC: | 1 |
Terrassen: | 1 |
Garten: | 79,00 m² |
Keller: | 2,00 m² |
Heizwärmebedarf: | 33,89 kWh/m²a |
Ausstattung
Fliesen, Parkett, Gas, Fußbodenheizung, Zentralheizung, Wohnküche / offene Küche, Personenaufzug, Dusche, Tiefgarage
Ihre persönliche Beratung

Ferdinand Stubenvoll
Stubenvoll Immobilien
T +43 664 30 88 940
H +436643088940