Gürtel neu interpretiert – ein Wohnprojekt der Extraklasse mit Weitblick: Urban, Zentral, Nachhaltig
Wohnung
- Maisonette,
1070
Wien,Neubau
Lage – urbanes Leben am Puls der Stadt Dieses stilvolle Wohnprojekt befindet sich in repräsentativer Lage direkt am Lerchenfelder Gürtel, im Herzen des 7. Bezirks – einer der kreativsten und dynamischsten Gegenden Wiens. Die U-Bahn-Linie U6 (Station Thaliastraße) befindet sich unmittelbar vor der Haustür, ergänzt durch die Straßenbahnlinien 5 und 46 sowie die Buslinie 48A. Perfekt ausgebaute Radwege entlang des Gürtels bieten zusätzliche, umweltfreundliche Mobilität.
Beschreibung der Immobilie
Gürtel neu interpretiert – ein Wohnprojekt der Extraklasse mit Weitblick: Urban, Zentral, Nachhaltig
Projektbeschreibung
Ein Zuhause, das mehr kann – urban, nachhaltig, außergewöhnlich
Im kreativen 7. Bezirk Wiens entsteht ein Wohnprojekt, das weit über klassischen Wohnraum hinausgeht. In einem liebevoll revitalisierten Jahrhundertwendehaus vereinen sich historischer Charme und modernste Technik zu einer Architektur, die Nachhaltigkeit, Komfort und zeitlose Eleganz verkörpert. Die Altbauwohnungen wurden mit höchstem Anspruch an Design und Handwerkskunst saniert, während die neu geschaffenen Dachgeschosswohnungen mit offenen Grundrissen, lichtdurchfluteten Räumen und unvergleichlichen Ausblicken über Wien ein Wohnerlebnis der besonderen Art bieten.
Stilvoll wohnen mit Weitblick
Die smart geplanten Wohneinheiten umfassen ca. 35–116 m² Wohnfläche und bieten Freiflächen von ca. 5,60–29,32 m². Ob charmantes Altbau-City-Apartment – stilvoll saniert und ausgestattet – mit Weitblick oder exklusive Dachgeschosswohnung bzw. Rooftop - Flats mit spektakulärem Stadtblick: Hier findet jede Lebensform ihr ideales Zuhause. Mit 1 bis 3 Zimmern und der Möglichkeit, Einheiten flexibel zu kombinieren, bietet das Projekt maximale Wohnvielfalt.
Fakten & Highlights
Wohnflächen: ca. 35–106 m², 1–3 Zimmer, flexibel kombinierbar
Freiflächen: ca. 5,6–29,3 m², viele mit beeindruckendem Stadtblick
Hochwertige Ausstattung: Eiche-Echtholzparkett, 30×60 cm Feinsteinzeug-Fliesen, exklusive Designer-Bäder
Fußbodenheizung in allen Einheiten
Integrierte Klimaanlage ab dem 4. Obergeschoss
4-Season-Dämmverglasung, elektrisch steuerbarer Sonnenschutz
Nachhaltige Heizung mittels Luft-Wärmepumpe & Photovoltaikanlage am Dach
Smarthome-Verwaltungsapp, barrierefrei
Fertigstellung: 2024/2025
Lage & Infrastruktur
Direkt am Lerchenfelder Gürtel gelegen, verbindet dieser Standort urbane Lebendigkeit mit exzellenter Anbindung.
In unmittelbarer Umgebung laden die Mariahilfer Straße, Lugner City, Stadthalle und der Westbahnhof zum Einkaufen, Flanieren und Genießen ein. Der 7. Bezirk vereint auf einzigartige Weise traditionelle Kulturstätten mit moderner Avantgarde, gemütliche Kaffeehäuser mit trendigen Bars sowie klassische Geschäfte mit edlen Boutiquen.
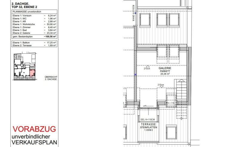
Wohnung Top 32/ Dachgeschoss
Diese charmante Maisonette-Wohnung erstreckt sich über 100 m² Wohnfläche und besticht durch ihre offene Gestaltung, helle Räume und großzügige Freiflächen.
Ebene 1: Ein einladender Vorraum mit Platz für eine Garderobe führt in die Wohnung. Ein separates WC und ein praktischer Abstellraum sorgen für zusätzlichen Komfort. Die offene Wohnküche – Herzstück der Wohnung – bietet direkten Zugang zum Balkon. Ein ruhiges Zimmer sowie ein stilvoll ausgestattetes Badezimmer mit Badewanne und Waschmaschinenanschluss runden diese Ebene ab.
Ebene 2: Die offene Galerie mit Blick in den Wohnbereich eignet sich perfekt als Master Bedroom, Atelier oder Arbeitsbereich. Die sonnige Terrasse ist ein privater Rückzugsort für entspannte Stunden über den Dächern der Stadt.
Ein Ort zum Ankommen, Bleiben – und Wohlfühlen
Ob stilvoller Rückzugsort oder urbaner Lebensmittelpunkt – dieses außergewöhnliche Projekt verbindet klare Linien, zeitloses Design und nachhaltige Wohnkonzepte zu einem Lebensraum, der höchsten Ansprüchen gerecht wird.
Ein Zuhause für alle, die das Besondere suchen.
Noch nichts gefunden? Wir informieren Sie über geeignete Immobilienangebote noch vor allen anderen.
Legen Sie jetzt Ihren individuellen Suchagenten unter folgendem Link an. Wir schicken Ihnen passende Immobilien exklusiv vorab zu.
Suchagent anlegen - https://mag-iur-diana-voskov.service.immo/registrieren/de
Wir weisen darauf hin, dass zwischen dem Vermittler und dem zu vermittelnden Dritten ein familiäres oder wirtschaftliches Naheverhältnis besteht.
Der Vermittler ist als Doppelmakler tätig.
Infrastruktur / Entfernungen
Gesundheit
Arzt <500m
Apotheke <500m
Klinik <500m
Krankenhaus <1.500m
Kinder & Schulen
Schule <500m
Kindergarten <500m
Universität <1.000m
Höhere Schule <500m
Nahversorgung
Supermarkt <500m
Bäckerei <500m
Einkaufszentrum <500m
Sonstige
Geldautomat <500m
Bank <500m
Post <500m
Polizei <500m
Verkehr
Bus <500m
U-Bahn <500m
Straßenbahn <500m
Bahnhof <500m
Autobahnanschluss <4.500m
Angaben Entfernung Luftlinie / Quelle: OpenStreetMap
Eckdaten Objektnr. 1855/53
Art: | Wohnung - Maisonette |
Land: | Österreich |
Baujahr: | 2025 |
Zustand: | Erstbezug |
Alter: | Neubau |
Kaufpreis: | 899.000,00 € |
Provision: | 3% des Kaufpreises zzgl. 20% USt. |
Wohnfläche: | 97,50 m² |
Nutzfläche: | 126,44 m² |
Zimmer: | 3,50 |
Bäder: | 1 |
WC: | 1 |
Balkone: | 1 |
Terrassen: | 1 |
Heizwärmebedarf: | B 26,80 kWh/m²a |
Ausstattung
Fliesen, Parkett, Solarenergie, Fußbodenheizung, Personenaufzug
Ihre persönliche Beratung

Mag. iur. Diana Voskov
Mag. iur. Diana Voskov
T +436505423337
H +436505423337