EINZIGARTIG SCHÖN - MALERISCHES ANWESEN mit herrlichem Eigengrund in WIENNÄHE!
                                                            Haus
                                - Zweifamilienhaus,
                            
                            
                                
                                                                            7053
                                    
                                                                            Hornstein
                                    
                                    
                                
                                                                    
                                        
                                    
                                
                            
                        
                        Hornstein, eine lebenswerte Gemeinde im erweiterten südlichen Speckgürtel zählt ca. 3.000 Einwohner und besticht mit ihrem hübschen dörflichen Charakter und der geografisch sehr guten Lage. Die Nähe zu vielen Ballungszentren wie u.a. Eisenstadt, Wr. Neustadt und Wien, macht die Marktgemeinde Hornstein zu einem beliebten und begehrten Ort zum Leben und Arbeiten. Im Ort befindet sich eine VS, Kindergarten & Krippe sowie eine Musikschule. Auch finden zahlreiche Künstler hier den perfekten Rückzugsort für Kreativität und Schaffen. Der Funpark, ein großes Sport- und Naherholungsareal mit einer Vielfalt an Freizeitaktivitäten, wie Tennis, Beach Volley etc. bietet zudem einen guten Ausgangspunkt für Natur und Wanderbegeisterte, die das Leithagebirge mit dem Sonnberg als höchsten Punkt, genießen wollen. Angebunden an die A3 ist Wien in ca. 40 Autominuten erreichbar, die Landeshauptstadt Eisenstadt hingegen in weniger als 15 Minuten.
 
                
                            
                     
                
                            
                     
                
                            
                     
                
                            
                     
                
                            
                     
                
                            
                     
                
                            
                     
                
                            
                     
                
                            
                     
                
                            
                     
                
                            
                     
                
                            
                     
                
                            
                     
                
                            
                     
                
                            
                     
                
                            
                     
                
                            
                     
                
                            
                     
                
                            
                     
                
                            
                     
                
                            
                     
                
                            
                     
                
                            
                     
                
                            
                     
                
                            
                     
                
                            
                     
                
                            
                     
                
                            
                     
                
                            
                     
                
                            
                     
                
                            
                     
                
                            
                     
                
                            
                     
                
                            
                     
                
                            
                     
                
                            
                     
                
                            
                     
                
                            
                     
                
                    Beschreibung der Immobilie
EINZIGARTIG SCHÖN - MALERISCHES ANWESEN mit herrlichem Eigengrund in WIENNÄHE!
Eingebettet in eine malerische Landschaft mit sanften Hügeln und Wäldern liegt dieses traumhaft schöne Anwesen im gediegenen Landhausstil mit äußerst gepflegten Außenflächen & schöner Poollandschaft samt Stadl & Nebengebäuden.
Die selten schöne Liegenschaft erstreckt sich auf einem großzügigen & idyllischen Eigengrund von ca. 4.850 m² und bietet jeglichen Komfort für jene, die Ruhe, ein weitläufiges Grundstück inmitten idyllischer Natur und viel Privatsphäre in zentraler Lage & Wiennähe, schätzen. Aufgrund der stetigen & liebevollen Instandhaltung der Eigentümer wurde diese Liegenschaft über Generationen gepflegt, aufwendig renoviert & immer wieder erweitert. Im Jahre 1958 im Massivbau errichtet, verfügt sie über zwei schön angelegte Wohneinheiten, die perfekt als Mehrgenerationenhaus geeignet sind.
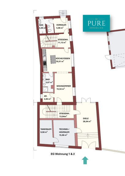
WOHNEINHEIT 1 ca. 211,50m² :
Schon beim Betreten des herrschaftlichen Eingangstors präsentiert sich dieses Anwesen einladend freundlich. Über eine geräumige Diele im geschmackvollem Landhausstil gelangt man in das Haupthaus bzw. die Wohneinheit 1. Die schön renovierten Türen mit kunstvollem Glasdekor als Designelement geben dem Entree ein besonders behagliches Ambiente, in dem man gerne länger verweilt und den schönen Blick ins Grüne genießt.
Über wenige Stufen gelangt man in den Halbstock, wo sich die klassisch zeitlose Küche mit Essplatz befindet. In Weiß, mit hellgrünen Glasrückwänden, wirkt sie freundlich mediterran und bietet aufgrund einer angrenzenden Speis genügend Stauraum & Platz.
Im 1. Stock befindet sich der gediegene & großzügige Wohn- und Esssalon. Dieser wirkt aufgrund seiner angenehmen Raumhöhe, der hervorragenden Tischlerarbeit und der aufwendigen Stukkatur sehr elegant und dennoch gemütlich. Schöne Stilmöbel zieren die gediegenen Räumlichkeiten und ein stimmungsvoller Kamin rundet das schöne Ambiente ab.
Auf dieser Ebene befindet sich auch ein geräumiges Komfortbad mit Eckbadewanne & Dusche. Ein Doppelwaschbecken sowie ein praktischer Schrankraum sorgen für noch mehr Behaglichkeit im Wohlfühlbad. Das WC ist angrenzend & praktischerweise separat.
Im Dachgeschoß finden zwei geräumige Schlafzimmer Platz, eins davon mit schön verbautem Schrankraum.
WOHNEINHEIT 2 ca. 92,08m² :
Nach einer behutsamen Vollsanierung 2019 präsentiert sich diese zweite Wohneinheit in einem gelungenen Mix aus Moderne & Landhausstil! Offen und großzügig gestaltet sich der Wohn- Essbereich mit integrierter Küche, Kochinsel & Bar. Ein charmanter Torbogen verbindet die beiden Räumlichkeiten und gibt dem Gesamtbild einen mediterranen Touch. Hochwertige Dielenböden lassen die Wohn- und Schlafräume warm wirken und unterstreichen das behagliche Wohngefühl.
Zwei traumhaft schön renovierte Bäder sorgen für jeglichen Komfort. Ausgestattet mit Walk-In-Duschen, Doppelwaschbecken und Bidet bestechen sie außerdem mit ihrem schicken & zeitlosen Fliesendesign. Eine moderne Holztreppe führt zu einem kleinen Vorzimmer mit dem angrenzenden Schlafraum. Dieser ist großzügig angelegt und bietet zudem Platz für einen Schreibtisch.
Das Herzstück dieser Wohneinheit ist jedoch die liebliche Terrasse mit einer Prise mediterranem Flair! Definitiv einer der Lieblingsplätze der Familie! Eine schön gewachsene Pinie spendet Schatten, die Zypressen wachsen malerisch entlang des gepflegten Mauerwerks. Von hier haben Sie einen wunderschönen Blick auf das Anwesen.
OUTDOOR & NEBENGEBÄUDE:
Die Zufahrt erfolgt bequem über ein elektronisch gesteuertes Tor. Ein schön gepflasterter Vorhof führt zur Doppelgarage (ca. 40m²), die Platz für mindestens zwei Autos bietet. Die weitläufige Liegenschaft gliedert sich fast zur Hälfte in den vorderen, bebauten Bereich und in herrliche Grünflächen bzw. Hausgärten, die wunderbar als Anbaufläche genutzt werden können. Auch mediterrane Pflanzen wie Lavendel, Oliven- oder Feigenbäume, würden sich in diesem milden pannonischen Klima wohlfühlen.
Zentral gelegen, inmitten schöner Natur und herrlichem Altbaumbestand befindet sich ein hübsches Sommerhäuschen mit großzügiger Poollandschaft. Dieses sehr gepflegte Holzhaus beeindruckt mit einem nettem Stüberl mit gemütlichem Schwedenofen, Sauna, Dusche & WC. Ein schön verfliester Terrassenbereich ist an heißen Sommertagen der perfekte Schattenplatz zum Verweilen und bietet einen schönen Blick aufs Pool. Aufgrund einer Überdachung kann dieses auch an kühleren Tagen genutzt werden.
Demgegenüber befindet sich ein geräumiger und gut erhaltener Stadl (ca.140m²), der viel Raum für kreative Ideen bietet und wunderbar als Atelier, Werkstatt oder Seminarraum etc. genutzt werden kann. Genug Platz für Ihre besondere Geschäftsidee! Ebenso befindet sich ein Wirtschaftsgebäude mit mehreren kleinen Räumen und geräumigem Dachboden auf dem Grundstück.
HIGHLIGHTS ALLGEMEIN & WOHNEINHEIT 2:
- 2 separate Wohneinheiten - optional zusammenlegbar
- Beide äußerst gepflegt & stilvoll
- Fassade & Wärmeschutz (Jahr 2000)
- Wohneinheit 2 geschmackvoll generalsaniert (Jahr 2019)
- 2 schicke Bäder & Walk-In Duschen
- Offenes & modernes Raumkonzept mit Küche & Kochinsel
- Gemütlicher Schwedenofen (Austroflamm) im Wohn-Essbereich
- Großzügiges Schlafzimmer
- Bad & WC getrennt
- Alle Wohneinheiten inkl. Poolhaus sind mit Schwedenöfen ausgestattet
WOHNEINHEIT 1:
- Wohneinheit 1 mit elegantem Sternenparkett & edler Stuckatur
- Stilvolle Diele mit gediegenem Holztor
- Dekorgläser mit Kunstmalerei als attraktives Designelement
- Großzügiges Wohn-Esszimmer mit gediegener Atmosphäre
- Schön inszenierter Kamin für stimmungsvolles Ambiente
- Hübsche Küche mit Essplatz, gemütlichem Schwedenofen & Speis
- 2 Schlafräume
- Geräumiges Komfortbad mit Eckbadewanne, Dusche & Doppelwaschbecken
- Bad & WC getrennt
OUTDOOR & NEBENGEBÄUDE:
- Weitläufige Liegenschaft mit viel Anbaupotential
- Schön angelegte Außenflächen - gepflasterter Vorhof
- Traumhaft schöne Poolanlage mit Außendusche & Überdachung
- Poolhaus mit Sauna, Stüberl, Dusche & WC und gemütlichem Schwedenofen
- Gut erhaltener Stadl
- Wirtschaftsgebäude mit Dachboden
- Elektrisches Einfahrtstor zur Doppelgarage
- Idyllische Terrassen für erholsame Stunden
- Kräuterbeete
- Schöner Altbaumbestand
- 2 Mähroboter für die Grünflächen
- Brunnen
und vieles mehr......
FAZIT: Eine absolute Rarität und selten schöne Liegenschaft in zentraler Lage mit viel Potential nur 40 Minuten von Wien!
Ich freue mich Ihnen dieses besonders schöne Objekt bei einem Gespräch oder einer ausführlichen Besichtigung näher zu bringen!
VERKAUF & BERATUNG
Anna Schlachter
Staatlich konzessionierte Immobilienmaklerin
Tel: +43/699 / 17 77 99 11
E-Mail: office@pure-immobilien.com 
Dieses Objekt wird unverbindlich und freibleibend angeboten.
Alle Informationen beruhen auf Angaben des Abgebers und sind ohne Gewähr. Die Angaben wurden sorgfältig geprüft, dessen ungeachtet kann keine Garantie für Richtigkeit, Vollständigkeit und Aktualität übernommen werden. Da die Immobilie aktuell in Vermessung ist, wird keine Haftung für die hier angeführten Maße & Flächenangaben übernommern.
Ein Energieausweis ist spätestens zum Zeitpunkt der Vertragserklärungsabgabe vorzulegen und binnen 14 Tagen nach Vertragsabschluss zu übergeben. Der Angeber wurde über die Informationspflicht nach dem Energie-Vorlage-Gesetz von 2012 aufgeklärt und zur Einholung eines Energieausweises aufgefordert.
Wir dürfen darauf hinweisen, dass wir als Doppelmakler tätig sind und ein wirtschaftliches Nahverhältnis zu unserem Auftraggeber besteht. Dieses ergibt sich aus regelmäßiger, geschäftlicher Verbindung. Weiters möchten wir Sie informieren, dass ein Provisionsanspruch erst nach Unterzeichnung eines Kaufanbots und erfolgreichem Abschluss besteht. Eine Besichtigung der Liegenschaft ist selbstverständlich für Sie unverbindlich und kostenlos.
WICHTIGER gesetzlicher HINWEIS:
Wir bitten um Ihr Verständnis, dass wir aufgrund einer neuen EU-Richtlinie (§11FAGG) Unterlagen und Besichtigungstermine für unsere Immobilien erst dann zusenden und vereinbaren können, wenn Sie uns bestätigen, dass Sie über Ihre Rücktrittsrechte aufgeklärt wurden und unser sofortiges Tätigwerden wünschen.
Des weiteren ersuchen wir um Verständnis, dass wir gemäß österreichischer Gewerbeordnung, sowie unserer Nachweispflicht gegenüber dem Auftraggeber nur Anfragen mit vollständigem Namen, Anschrift, Telefonnummer und Mail Adresse bearbeiten bzw. detaillierte Unterlagen weiterleiten können.
Wir bitten um Ihr Verständnis, vielen Dank!
Wir weisen darauf hin, dass zwischen dem Vermittler und dem zu vermittelnden Dritten ein familiäres oder wirtschaftliches Naheverhältnis besteht.
Der Vermittler ist als Doppelmakler tätig.
Eckdaten Objektnr. 6286/2243
| Art: | Haus - Zweifamilienhaus | 
| Land: | Österreich | 
| Baujahr: | 1958 | 
| Zustand: | Gepflegt | 
| Kaufpreis: | 1.190.000,00 € | 
| Provision: | 3% des Kaufpreises zzgl. 20% USt. | 
| Wohnfläche: | 303,50 m² | 
| Nutzfläche: | 500,00 m² | 
| Grundstücksfl.: | 4.857,00 m² | 
| Bäder: | 3 | 
| WC: | 3 | 
Ausstattung
Fliesen, Parkett, Öl, Zentralheizung, Einbauküche, Wohnküche / offene Küche, Parkplatz(Duplex), Swimmingpool
Ihre persönliche Beratung
 
                                                        Anna Schlachter
PURE Immobilien
H +43 699 17779911