NACHFOLGER GESUCHT: SCHICK, STYLISCH, UNBEFRISTET – GASTROLOKAL NÄHE AUGARTEN INKL.SCHANIGARTEN
Gastgewerbe
- Gastronomie/Restaurant,
1020
Wien
+ U-Bahn (Linie U2 / Taborstraße) - 2 Gehminuten + Straßenbahn (Linie 2 /Taborstraße) - 3 Gehminuten + Supermarkt ( BILLA) - 5 Gehminuten + Augarten - 3 Gehminuten
Beschreibung der Immobilie
NACHFOLGER GESUCHT: SCHICK, STYLISCH, UNBEFRISTET – GASTROLOKAL NÄHE AUGARTEN INKL.SCHANIGARTEN
Zum Verkauf gelangt ein voll ausgestattetes Gastronomielokal in attraktiver Lage des 2. Wiener Gemeindebezirks, in unmittelbarer Nähe zu frequentierten Wohn- und Geschäftsgebieten. Das Lokal präsentiert sich in einem gepflegten Zustand und bietet sowohl im Innenbereich als auch im Außenbereich ideale Voraussetzungen für einen erfolgreichen Gastronomiebetrieb.
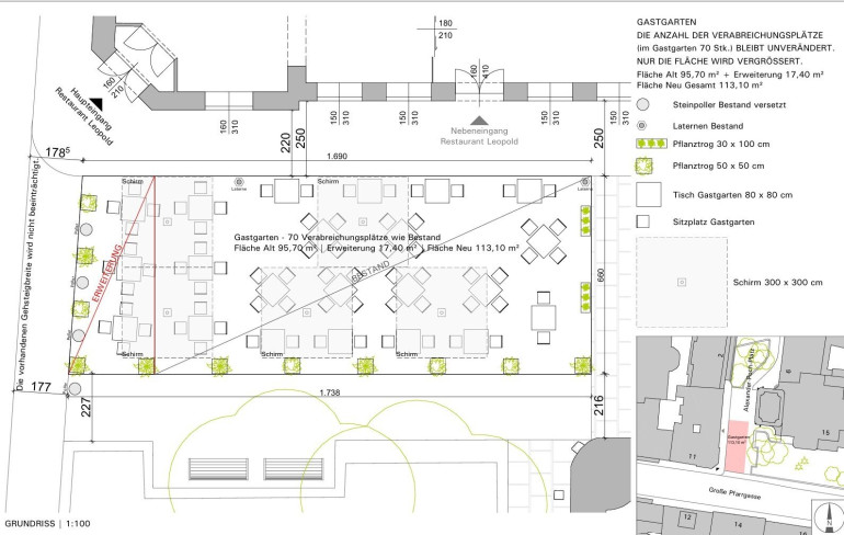
Die Gesamtfläche von ca. 234 m² Innenbereich wird ergänzt durch einen großzügigen Schanigarten mit ca. 114 m², der zum Verweilen einlädt und über eine Ganzjahresgenehmigung (außer Dezember) verfügt – ein klarer Wettbewerbsvorteil im urbanen Raum.
Das Objekt ist betriebsbereit und verfügt über alle notwendigen Genehmigungen sowie eine vollständige gastronomische Infrastruktur.
Ausstattung und Besonderheiten:
- Voll ausgestatteter Küchenbereich mit professionellem Equipment
- Separater Lager- und Kühlbereich
- Eine barrierefreie Anlage
- Moderne Sanitäreinrichtungen
- Attraktiver Gästebereich mit flexibler Raumaufteilung
- Ein ideales Platzangebot – Innen bis 110 Plätze (optional + 20 Plätze Hochtische) (Außen bis 80 Personen)
Kosten:
Nettomiete: € 4.381,93
Betriebskosten: € 471,53
------------------------------------------------------------------------------------------------------
Nettovorschreibung: € 4.853,46
+ 20 % USt.: € 970,70
Bruttovorschreibung GESAMT: € 5.824,16
Ablöse: € 400.000,--
Provision: 3 BMM zzgl. gesetzl. MwSt.
Kaution: 3 BMM zzgl. gesetzl. MwSt.
Kontakt:
Für Fragen und Besichtigungen kontaktieren Sie bitte Herrn Büer unter 0699 194 737 30 oder unter boris.bueer@wisionhome.at
Weitere Objekte auf: www.wisionhome.at
Hinweis gemäß Energieausweisvorlagegesetz: Ein Energieausweis wurde vom Eigentümer bzw. Verkäufer, nach unserer Aufklärung über die generell geltende Vorlagepflicht, sowie Aufforderung zu seiner Erstellung noch nicht vorgelegt. Daher gilt zumindest eine dem Alter und der Art des Gebäudes entsprechende Gesamtenergieeffizienz als vereinbart. Wir übernehmen keinerlei Gewähr oder Haftung für die tatsächliche Energieeffizienz der angebotenen Immobilie.
Infrastruktur / Entfernungen
Gesundheit
Arzt <500m
Apotheke <500m
Klinik <1.000m
Krankenhaus <500m
Kinder & Schulen
Schule <500m
Kindergarten <500m
Universität <1.000m
Höhere Schule <1.000m
Nahversorgung
Supermarkt <500m
Bäckerei <500m
Einkaufszentrum <1.500m
Sonstige
Geldautomat <500m
Bank <500m
Post <500m
Polizei <500m
Verkehr
Bus <500m
U-Bahn <500m
Straßenbahn <500m
Bahnhof <500m
Autobahnanschluss <3.000m
Angaben Entfernung Luftlinie / Quelle: OpenStreetMap
Eckdaten Objektnr. 7320/389
Art: | Gastgewerbe - Gastronomie/Restaurant |
Land: | Österreich |
Zustand: | Gepflegt |
Möbliert: | Voll |
Kaltmiete (netto): | 4.381,93 € |
Kaltmiete: | 4.853,46 € |
Miete / m²: | 18,77 € |
Provision: | 3 Bruttomonatsmieten zzgl. 20% USt. |
Betriebskosten: | 471,53 € |
MwSt Gesamt: | 970,70 € |
Nutzfläche: | 233,43 m² |
Ausstattung
Fliesen, Parkett, Einbauküche, Angeschl. Bar, Gastterrasse
Ihre persönliche Beratung

Boris Bueer
WISION HOME GmbH
T +43 69919473730
H +43 69919473730