++ NEU ++ Modernes Wohnen im Weinviertel – Drei belagsfertige Doppelhaushälften in Neubau
Haus
- Doppelhaushälfte,
2125
Neubau
Perfekte Balance zwischen Stadt und Land Nur rund 50 km nördlich von Wien gelegen, profitieren Sie von einer hervorragenden Verkehrsanbindung: Mit dem Auto erreichen Sie Wien in ca. 50 Minuten, Bratislava in rund 1 Stunde und St. Pölten in ca. 1 Stunde 20 Minuten. Über die A5, S1 und S2 gelangen Sie schnell und bequem zu den regionalen Zentren und in die Bundeshauptstadt. Mikrostandort – Alles in der Nähe Bahnhof Neubau-Kreuzstetten (S-Bahn S2) nur ca. 4 Autominuten entfernt – direkte Verbindung nach Wien. Kindergarten in nur 800 m Entfernung – bequem zu Fuß erreichbar. Volksschule, Gymnasium und HLW in Mistelbach, nur rund 10 km entfernt. Landesklinikum Mistelbach-Gänserndorf in ca. 13 Minuten mit dem Auto erreichbar. Lebensqualität im Weinviertel Neubau bietet eine hervorragende Infrastruktur im Nahbereich: Nahversorger, Ärzte, Gastronomie, Sport- und Freizeitmöglichkeiten. Die Umgebung lädt zu ausgedehnten Spaziergängen, Rad- und Wandertouren ein und ist ideal für alle, die Natur und Ruhe schätzen, ohne auf die Nähe zur Stadt verzichten zu wollen.
Beschreibung der Immobilie
++ NEU ++ Modernes Wohnen im Weinviertel – Drei belagsfertige Doppelhaushälften in Neubau
Zum Verkauf stehen drei moderne, belagsfertige Doppelhaushälften mit Flachdach in hochwertiger Massivbauweise. Die Häuser liegen in einer ruhigen Wohngegend im Bauland Agrargebiet von Neubau und vereinen zeitgemäße Architektur mit energieeffizienter Bauweise.
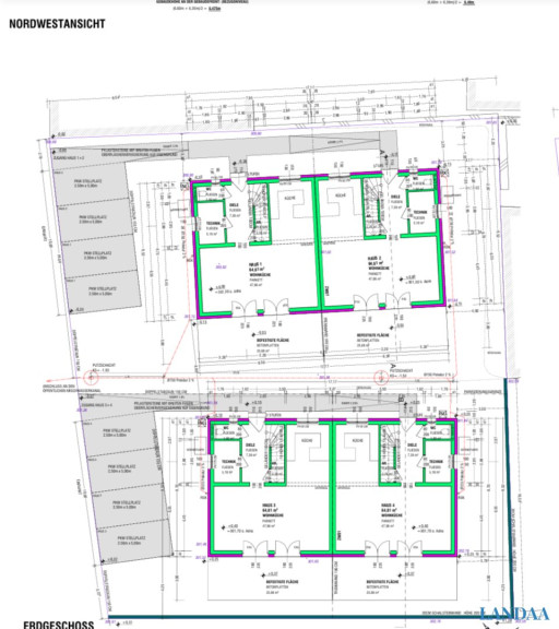
Jede Einheit bietet eine großzügige Wohnfläche von ca. 126 m², verteilt auf zwei Etagen, sowie ein attraktives Grundstück mit sonniger Terrasse und Eigengarten. Dank der belagsfertigen Ausführung haben Käufer die Möglichkeit, die Innenausstattung nach ihren persönlichen Vorstellungen zu gestalten.
Der Verkehrswert laut Gutachten (Stand Juli 2024) beträgt EUR 532.000,-- pro Einheit.
Grundstück & Anschlüsse
Anschlüsse: Ortswasser, Kanal, Strom (EVN), Telefon
Anschlusskosten: Strom, Wasser, Kanal ca. EUR 6.000,-- (vom Käufer zu tragen)
Grundstücksanteil: ca. 62 m² Garten + Terrasse
Bauweise & Ausstattung
Bauart: Massivbau
Fundamente: Stahlbeton-Fundamentplatte
Außenmauerwerk: Planziegel 25 cm mit 16 cm Vollwärmeschutzfassade (Baumit-System)
Decken: Stahlbetonelementdecken
Fenster: Kunststoff, 3-fach-Isolierverglasung, anthrazitgrau, E-Rollläden
Türen: Hauseingangstüre Kunststoff, anthrazitgrau, Glasausschnitt
Dach: Flachdach mit Wärmedämmung
Heizung: Fußbodenheizung (EG & OG), Luft/Wasser-Wärmepumpe
Warmwasser: 150 L E-Boiler im Technikraum
Sanitär: Anschlüsse für Bad, WC, Waschmaschine, Küche, Terrasse
Terrasse: ca. 25 m² Betonplatten
Raumaufteilung (ca. 126,37 m² Nutzfläche pro Einheit)
Erdgeschoss (EG):
Diele: 7,39 m²
WC: 1,80 m²
Technikraum: 5,18 m²
Abstellraum: 2,28 m²
Wohnküche: 47,96 m²
Obergeschoss (OG):
Vorraum: 5,17 m²
Bad: 11,10 m²
Zimmer 1: 13,78 m²
Schrankraum: 4,25 m²
Zimmer 2: 14,90 m²
Zimmer 3: 12,56 m²
Zusätzlich:
Terrasse: 25,68 m²
Garten: 62,22 m²
Besonderheiten
Hochwertige, energieeffiziente Bauweise
Großzügige, familienfreundliche Grundrisse
Eigengarten und große Terrasse
Fußbodenheizung & moderne Wärmepumpe
Nahe Anbindung an Wien
Belagsfertiger Zustand – freie Gestaltungsoptionen im Innenbereich
Wir weisen darauf hin, dass zwischen dem Vermittler und dem zu vermittelnden Dritten ein familiäres oder wirtschaftliches Naheverhältnis besteht.
Der Vermittler ist als Doppelmakler tätig.
Infrastruktur / Entfernungen
Gesundheit
Arzt <3.000m
Apotheke <6.000m
Klinik <9.000m
Krankenhaus <9.000m
Kinder & Schulen
Schule <4.500m
Kindergarten <4.500m
Nahversorgung
Supermarkt <4.000m
Bäckerei <9.000m
Sonstige
Bank <4.500m
Geldautomat <6.000m
Polizei <4.500m
Post <4.000m
Verkehr
Bus <500m
Bahnhof <1.500m
Autobahnanschluss <5.000m
Angaben Entfernung Luftlinie / Quelle: OpenStreetMap
Eckdaten Objektnr. 5013
Art: | Haus - Doppelhaushälfte |
Land: | Österreich |
Baujahr: | 2023 |
Alter: | Neubau |
Kaufpreis: | 379.900,00 € |
Heizwärmebedarf: | B 34,70 kWh/m²a |
fGEE: | A+ 0,68 |
Ausstattung
Fußbodenheizung, Parkplatz
Ihre persönliche Beratung

Roman Babadschanov
Landaa Immobilienverwertung GmbH
H +43676 84 37 77 777