Großzügiges Traumhaus, top ausgestattet, mitten im Grünen, Swimmingpool
Haus
- Einfamilienhaus,
1230
Wien
Dieses Traumhaus liegt in Mitten der Natur und bietet aber auch die Nähe zur Infrastruktur und ermöglicht Ihnen sogar ein autoloses Dasein. Einkaufsmöglichkeiten (HOFER, EUROSPAR, BILLA, Bipa, Libro, Der Mann, Apotheke etc.) sind bequem innerhalb von 6-8min zu Fuß erreichbar. Ebenso sind Kindergärten und Volksschulen in der Nähe und fußläufig erreichbar. Ein kleinerer und ein großer Spielplatz ist nur 100m, bzw. 300m entfernt. Mit der Buslinie 56A benötigen Sie nur 3min zu der S-Bahnstation Atzgersdorf. Das Freibad ist nur 600m entfernt und ist im Sommer eine willkommene Abwechslung.
Beschreibung der Immobilie
Großzügiges Traumhaus, top ausgestattet, mitten im Grünen, Swimmingpool
Das exklusive und repräsentative Einfamilienhaus in Wien-Liesing, ist einzigartig und sehr gepflegt. Es ist ein perfektes Zuhause für diejenigen, die innerstädtisch einen Traumgarten mit großzügigem Raum für ein gemütliches Beisammensein oder einfach zum Entspannen wünschen.
In diesem schön angelegten Garten befindet sich ein Swimmingpool (Edelstahlbecken von Niro-Pool), eine Außendusche und ein Grillplatz. Der Garten ist mit hohen grünen Hecken eingerahmt und bietet so viel Privatsphäre. Ostseitig grenzt ein sehr großer Park an das Grundstück.
Diese herrliche Liegenschaft liegt mitten im Grünen, an einer Sackgasse und in absoluter Ruhelage!
Das Haus wurde liebevoll und sehr, sehr hochwertig ausgestattet.
Das Haus hat 257m² Wohnfläche, 6 Zimmer, 3 Bäder, 3 Schrankräume, 2 Abstellräume und 4 WC`s
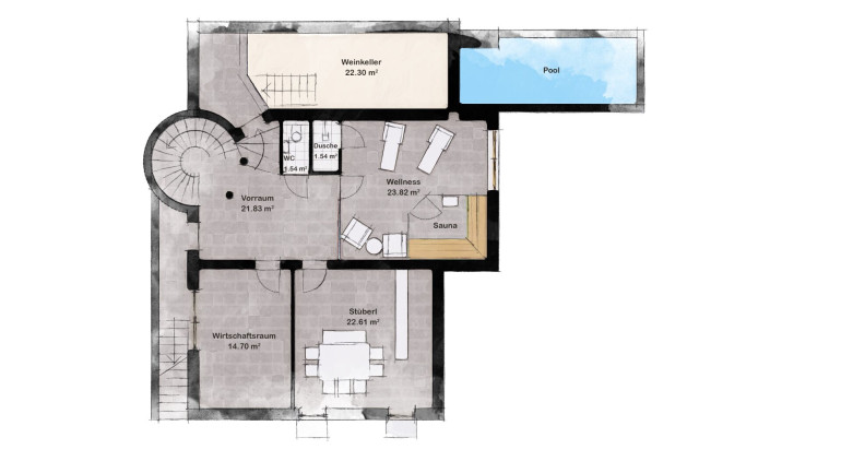
Der ca. 105m² große Keller, bietet viele Annehmlichkeiten
- - einen großen Wellnessbereich mit einer hochwertigen Gruber Sauna, einer tollen Dusche und einem WC
- - ein Kellerstüberl mit Bar und kleiner Kücheninsel
- - einen Raum, der mit geringem Aufwand als Indoorpool, oder als Weinkeller adaptiert werden kann
- - Zugang auch über eine Außentreppe, so besteht die Möglichkeit eine Einliegerwohnung, oder eine Praxis einzurichten
- - Der Keller ragt aus der Erde, über normale Fenster werden die Räume mit hellem Tageslicht durchflutet
Beheizt wird dieses Schmuckstück mit einer Gasbrennwerttherme, diese kann auf eine Wärmepumpe umgerüstet werden.
Das Haus wird unmöbliert verkauft (die DAN Küche mit Neff Geräten und die Bäder bleiben natürlich), gegen Aufpreis können die Möbel ganz oder teilweise gerne übernommen werden.
Weitere Highlights:
Holzkamin
Gruber Sauna
Holz/Alu Fenster,
Fußbodenheizung,
Wäscheabwurfschacht
Zentralstaubsauganlage
Alarmanlage mit Kamera,
Edelstahlpool von Niro-Pool
Klimaanlage im Dachgeschoß
Teilweise Raumhöhe ca. 2,95m
1 Garage und 1 weiterer Stellplatz
Raffstores und Rollläden elektrisch,
Holzinnentüren mit bündigen Bändern
Bodenbeläge, wunderschönes, teures Parkett und Feinsteinzeug Fliesen (Schubert Stone),
etc. etc. etc.....
In dieses Haus könnten Sie sofort einziehen, es ist top gepflegt, immer wieder instand gehalten worden und in diesem Zustand eine Seltenheit.
Wir weisen darauf hin, dass zwischen dem Vermittler und dem zu vermittelnden Dritten ein familiäres oder wirtschaftliches Naheverhältnis besteht.
Der Vermittler ist als Doppelmakler tätig.
Infrastruktur / Entfernungen
Gesundheit
Arzt <1.000m
Apotheke <500m
Klinik <1.500m
Krankenhaus <1.000m
Kinder & Schulen
Schule <1.000m
Kindergarten <500m
Universität <4.000m
Höhere Schule <4.500m
Nahversorgung
Supermarkt <500m
Bäckerei <500m
Einkaufszentrum <2.000m
Sonstige
Geldautomat <1.000m
Bank <1.000m
Post <2.000m
Polizei <2.000m
Verkehr
Bus <500m
U-Bahn <2.500m
Straßenbahn <1.500m
Bahnhof <1.000m
Autobahnanschluss <3.000m
Angaben Entfernung Luftlinie / Quelle: OpenStreetMap
Eckdaten Objektnr. 281
Art: | Haus - Einfamilienhaus |
Land: | Österreich |
Baujahr: | 2006 |
Zustand: | Neuwertig |
Alter: | Neubau |
Kaufpreis: | 1.790.000,00 € |
Provision: | 3% des Kaufpreises zzgl. 20% USt. |
Betriebskosten: | 202,89 € |
Wohnfläche: | 257,00 m² |
Nutzfläche: | 362,00 m² |
Grundstücksfl.: | 421,00 m² |
Zimmer: | 6 |
Bäder: | 3 |
WC: | 4 |
Balkone: | 1 |
Stellplätze: | 1 |
Garten: | 245,00 m² |
Keller: | 105,26 m² |
Heizwärmebedarf: | C 78,20 kWh/m²a |
fGEE: | C 1,12 |
Ausstattung
Gas, Fußbodenheizung, Kamin, Wohnküche / offene Küche, Bad mit Fenster, Badewanne, Dusche, Kabel/Satelliten-TV, Garage, Parkplatz, Alarmanlage, Sauna, Sicherheitskamera, Swimmingpool, Wasch/Trockenraum
Ihre persönliche Beratung

Erich Trompeter
Lehner & Trompeter Bauträger GmbH
H +43 676 913 82 32