Beschreibung der Immobilie
Loftbüro in der Ungargasse
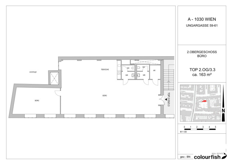
In unmittelbarer Nähe zum Bahnhof Rennweg und der Rudolfstiftung, wurden wenigen Jahren im ehemaligen Fabrikstrakt des Fabiani-Hauses klassische Loftflächen generalsaniert. Zur Vermietung kommt diese Einheit im 2. Liftstock. Der aktuelle Grundriss gliedert sich in einen großen offenen Bereich inklusive ausgestatteter Teeküche und einem abgetrennten Besprechungsraum sowie getrennte Sanitäranlagen und einem Serverraum. Die Einheit ist zum großzügigen Innenhof orientiert. Im Zuge der Generalsanierung erhielten die Fabrikslofts einen Epoxyharz-Boden, der den Industriecharakter betonen soll und eine Kühlung über die gesamte Fläche. Die Strom- und EDV-Verkabelung wird einerseits entlang den Fensterachsen geführt, aber auch über freilaufende, abgehängte Kabeltrassen, um innenliegende Arbeitsplätze problemlos anspeisen zu können.
Im Innenhof befindet sich einerseits die Einfahrt in die hauseigene Tiefgarage , andererseits eine Vielzahl von Stellplätzen, die je nach Verfügbarkeit dazu gemietet werden können.
verfügbare Fläche/Konditionen:
2.OG Top 3.3: ca. 163 m²
Nettomiete netto pro Monat: € 16,00/m²
Betriebskosten netto pro Monat: € 2,57/m²
Heiz-/Kühlkosten netto pro Monat: € 1,14/m²
weitere verfügbare Fläche:
2.OG Top 3.3: ca. 163 m² - netto pro Monat: € 16,00/m² - RESERVIERT!
Für die Erstellung des Mietvertrags gelangt seitens der Hausverwaltung ein Betrag von EUR 249,- brutto zur Verrechnung.
Alle Preise zzgl. 20% USt.
Ausstattung:
- Kühlung
- ausgestattete Teeküche
- Lift
- Epoxidharzbodenbelag
- CAT 7 Verkabelung vom Vormieter
- Bürobeleuchtung
- getrennte Sanitäreinheiten
Öffentliche Anbindung:
U-Bahn: U3 Rochusmarkt
Straßenbahnlinie: O
Buslinie: 4A
Schnellbahn: S1, S2, S3, S7, S15 
Individualverkehr:
Autobahnanbindung A4, A23
Straßenanbindung B1, B2261, B227
Flughafen Wien Schwechat in ca. 20 Minuten erreichbar
Wien Zentrum in ca. 10 Minuten erreichbar
Wir weisen darauf hin, dass zwischen dem Vermittler und dem zu vermittelnden Dritten ein familiäres oder wirtschaftliches Naheverhältnis besteht.
Der Vermittler ist als Doppelmakler tätig.
Infrastruktur / Entfernungen
Gesundheit
Arzt <500m
Apotheke <500m
Klinik <500m
Krankenhaus <500m
Kinder & Schulen
Schule <500m
Kindergarten <500m
Universität <500m
Höhere Schule <500m
Nahversorgung
Supermarkt <500m
Bäckerei <500m
Einkaufszentrum <1.000m
Sonstige
Geldautomat <500m
Bank <500m
Post <500m
Polizei <500m
Verkehr
Bus <500m
U-Bahn <1.000m
Straßenbahn <500m
Bahnhof <500m
Autobahnanschluss <2.000m
Angaben Entfernung Luftlinie / Quelle: OpenStreetMap
Eckdaten Objektnr. 7329
| Art: | Büro / Praxis | 
| Land: | Österreich | 
| Kaltmiete (netto): | 2.608,00 € | 
| Kaltmiete: | 3.026,64 € | 
| Miete / m²: | 16,00 € | 
| Provision: | 3 BMM zzgl. 20% USt. | 
| Betriebskosten: | 418,64 € | 
| MwSt Gesamt: | 605,33 € | 
| Nutzfläche: | 163,00 m² | 
| Heizwärmebedarf: | C 61,00 kWh/m²a | 
| fGEE: | C 1,11 | 
Ihre persönliche Beratung
 
                                                        Florian Rainer
Colourfish Real Estate Immobilienmakler GmbH
T +43 664 930 40 909
H +43 664 930 40 909
 
                 
                 
                 
                 
                 
                 
                 
                 
                