Beschreibung der Immobilie
Helle 2-Zimmer-Maisonettewohnung, Nähe Wiedner Hauptstraße
Im Falle der Notwendigkeit einer Fremdfinanzierung Ihrer Wunschimmobilie ermittelt unser Wohnbau-Finanzierungsexperte gerne die optimale Finanzierungslösung und findet das passende Zins- und Konditionsangebot für Sie. Er vergleicht die aktuellen Angebote aller relevanten Banken und Bausparkassen. Der Angebotsvergleich kann aus einem Portfolio von über 120 Banken erfolgen. Das Erstgespräch ist für Sie kostenfrei und unverbindlich, gerne auch bei Ihnen vor Ort. So sparen Sie Ihre wertvolle Zeit und erhalten eine professionelle und unabhängige Finanzierungslösung vom Spezialisten. Sprechen Sie uns wegen eines Termins gerne an!
Zum Verkauf gelangt eine 2-Zimmer Maisonettewohnung im 4. Wiener Gemeindebezirk.
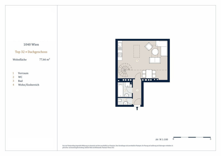
Die entzückende Wohnung mit ca. 78 m² befindet sich, bequem über einen Aufzug erreichbar, im 2. DG eines um die Jahrhundertwende errichteten Stilaltbaus in einer gefragten Wohngegend des 4. Wiener Gemeindebezirks. Die elegante Gründerzeitfassade sowie auch sämtliche Allgemeinflächen des Hauses wurden mit viel Liebe zum Detail renoviert. Das Eckzinshaus verfügt über 3 Regelgeschosse und einem ausgebauten Dachgeschoss. Die Wohnung wurde modernisiert und hochwertig ausgestattet und teilt sich auf 2 Etagen in einen Vorraum, eine Wohnküche, ein Schlafzimmer, ein Bad, eine Galerie und ein WC auf.
Sie betreten die Wohnung und befinden sich im Vorraum, gerade durch gelangen Sie in die helle Wohnküche. Über eine Wendeltreppe gelangen Sie zum Schlafzimmer und den Galeriebereich, der der Wohnung einen besonderen Charme verleiht. Das Badezimmer ist mit einer Badewanne und einem Waschbecken ausgestattet. Das separate WC befindet sich auch im Vorraum.
Die Infrastruktur ist unschlagbar! Nur wenige Gehminuten entfernt befinden sich sowohl die belebte Wiedner Hauptstraße als auch die Margarethenstraße. Hier finden Sie alles, was Sie für Ihren täglichen Bedarf benötigen, kleine Weinläden wo edle Tropfen verköstigt werden können, gemütliche Restaurants und vieles mehr. Auch die öffentlichen Anbindung ist ausgezeichnet, Busse 13A, 59A, 14A und Straßenbahnen 1, 62 oder Badner Bahn, die sich in unmittelbarer Fußnähe befinden, erleichtern Ihnen den Weg in die Innenstadt, während die U-Bahnlinien U4 (Pilgramgasse) und U1 (Taubstummengasse) sowie der U1 (Hauptbahnhof) in nur 5-7 Gehminuten erreichbar sind. Selbst für Autofahrer bietet die Lage ideale Bedingungen, erstklassige Verkehrsanbindung über A1, A2 oder A23 ermöglichen Ihnen maximale Flexibilität und Komfort um Ihre täglichen Wege zu bewältigen.
Erleben Sie die Vielfalt und Lebendigkeit dieser einzigartigen Nachbarschaft und lassen Sie sich von ihrem unwiderstehlichen Charme verzaubern.
Die Vertragserrichtung und Treuhandabwicklung ist gebunden an die Kanzlei TaylorWessing, e|n|w|c Natlacen Walderdorff Cancola Rechtsanwälte GmbH, Schwarzenbergplatz 7, 1030 Wien. Die Kosten betragen 1,5 % des Kaufpreises zzgl. 20 % USt. sowie Barauslagen und Beglaubigung. Bei Fremdfinanzierung erhöht sich das Honorar auf 1,8 % vom Kaufpreis zzgl. 20 % USt., Barauslagen und Beglaubigung.
Überzeugen Sie sich selbst von diesem Objekt.
Gerne lassen wir Ihnen bei ernsthaftem Interesse - vor Kaufanbotlegung - weitere vertraulichen Dokumente zu dieser Liegenschaft zukommen, welche nicht veröffentlicht werden dürfen.
Für Besichtigungen und nähere Informationen stehen wir Ihnen gerne zur Verfügung!
Frau Marie-Louise Eisenburger
national - Tel: 0676 605 9800
international - Tel: +43 676 605 9800
e-mail: eisenburger@lifestyle-properties.at
Wir weisen darauf hin, dass zwischen dem Vermittler und dem zu vermittelnden Dritten ein familiäres oder wirtschaftliches Naheverhältnis besteht.
Der Vermittler ist als Doppelmakler tätig.
Infrastruktur / Entfernungen
Gesundheit
Arzt <500m
Apotheke <500m
Klinik <500m
Krankenhaus <500m
Kinder & Schulen
Schule <500m
Kindergarten <500m
Universität <500m
Höhere Schule <500m
Nahversorgung
Supermarkt <500m
Bäckerei <500m
Einkaufszentrum <500m
Sonstige
Geldautomat <500m
Bank <500m
Post <500m
Polizei <500m
Verkehr
Bus <500m
U-Bahn <1.000m
Straßenbahn <500m
Bahnhof <1.000m
Autobahnanschluss <3.500m
Angaben Entfernung Luftlinie / Quelle: OpenStreetMap
Eckdaten Objektnr. 4909
Art: | Wohnung - Maisonette |
Land: | Österreich |
Baujahr: | 1900 |
Alter: | Altbau |
Kaufpreis: | 525.000,00 € |
Provision: | 3% des Kaufpreises zzgl. 20% USt. |
Betriebskosten: | 133,76 € |
MwSt Gesamt: | 15,40 € |
Wohnfläche: | 77,66 m² |
Zimmer: | 2 |
Bäder: | 1 |
WC: | 1 |
Heizwärmebedarf: | C 71,20 kWh/m²a |
Ausstattung
Fliesen, Parkett, Gas, Etagenheizung, Wohnküche / offene Küche, Personenaufzug, Badewanne, Dusche
Ihre persönliche Beratung

Marie-Louise Eisenburger
Lifestyle Properties
T +43 1 512 14 84
H +43 676 6059800