Helle 2-Zimmer-Wohnung in Toplage HWB 37,5 Klasse B

Wohnung , 3500 Krems an der Donau


Beschreibung der Immobilie

Helle 2-Zimmer-Wohnung in Toplage HWB 37,5 Klasse B

Die Wohnung befindet sich im 2. Stock eines gepflegten Wohnhauses und überzeugt durch ihre hellen Räume, die ideale Raumaufteilung .



Dank der durchdachten Anbindung mit Lift gelangen Sie bequem und wetterunabhängig zu Supermärkten, einem Fitnessstudio, Restaurants und weiteren Einkaufsmöglichkeiten – ein urbaner Wohntraum inmitten der Kremser Altstadt!



Raumaufteilung: durchdacht & einladend



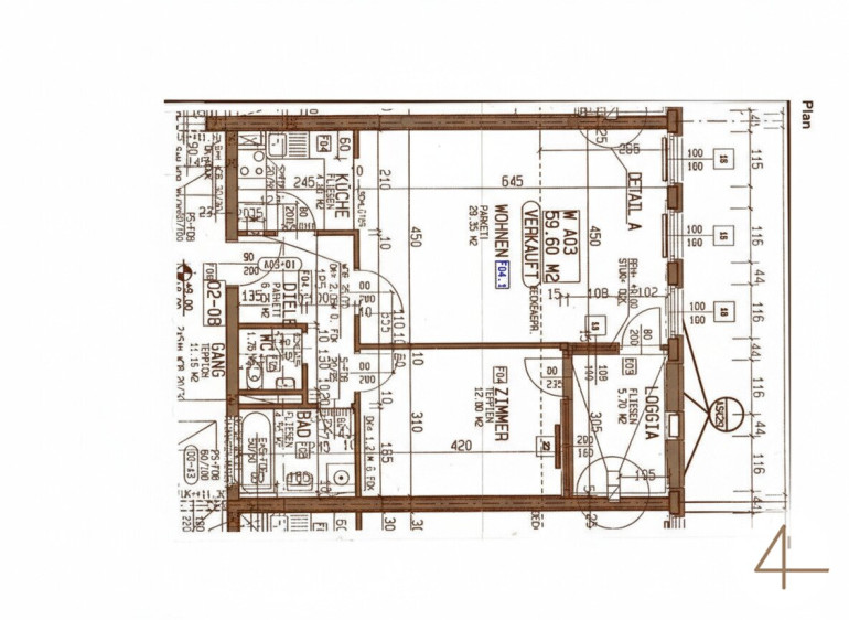
59,60 m2 Wohnfläche lt. Plan +. Loggia 5,70 m2




  • Zentraler Vorraum mit Zugang zu allen Zimmern



  • Großzügiges, lichtdurchflutetes Wohnzimmer



  • Kochnische mit Verbindung zum Wohnbereich



  • Ruhiges Schlafzimmer uneinsichtige Lage



  • Badezimmer mit Badewanne



  • Separates WC



  • Großzügiges Kellerabteil für zusätzlichen Stauraum



Der Vermittler ist als Doppelmakler tätig.

Eckdaten Objektnr. 8055

Art: Wohnung
Land: Österreich
Kaufpreis: 299.000,00
Provision: 10.764,00 € inkl. 20% USt.
Wohnfläche: 60,00 m²
Heizwärmebedarf:  B  37,50 kWh/m²a
Immobilie merken Exposé

Immobilie anfragen


Ihre persönliche Beratung

4immobilien GmbH

Carla Allram

4immobilien OG

T 0676 / 59 479 59

H 0676 / 59 479 59