Exklusives Maisonette Apartment mit 103 m² und Loggia in Maria Enzersdorf - TOP 7
Wohnung
,
2344
Maria Enzersdorf
Beschreibung der Immobilie
Exklusives Maisonette Apartment mit 103 m² und Loggia in Maria Enzersdorf - TOP 7
Premium Living in Maria Enzersdorf – Ihr Maisonette Deluxe Apartment mit Masterbath und Loggia am Stadtrand von Wien
In einer der begehrtesten Wohngegenden am südlichen Stadtrand Wiens entsteht das Wohnprojekt der Extraklasse: ME H19 - Sieben stilvolle Wohneinheiten, eingebettet in die idyllische Gartenstadt Maria Enzersdorf, vereinen modernen Luxus mit höchstem Wohnkomfort. Ihr neues Zuhause wartet schon auf Sie - die Fertigstellung ist für September 2025 geplant.
Diese außergewöhnliche Liegenschaft spricht Menschen an, die das Besondere suchen: Ruhe, Qualität und ein stilvolles Zuhause – nur wenige Minuten von der Wiener Stadtgrenze entfernt. Ob als stilvoller Rückzugsort oder wertstabile Investition – hier trifft Lebensqualität auf architektonische Eleganz.
Maisonette Deluxe Apartment mit Loggia – Wohnen mit Stil und Nähe zur Natur
Die angebotene Maisonettewohnung mit ca. 103 m² Wohnfläche, verteilt auf Obergeschoss und Dachgeschoss, überzeugt durch eine durchdachte Raumaufteilung und exklusive Ausstattungsdetails:
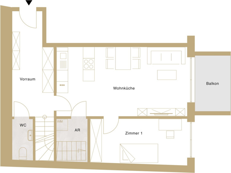
Im Obergeschoss:
Der helle und großzügige Vorraum heißt Sie willkommen und bietet Platz für eine Garderobe und Stauraum.
Das Herzstück der Wohnung bildet der helle Wohn- und Essbereich mit offener Küche. Es ist ausreichend Platz für eine Küche mit Kochinsel. Bodentiefen Fenstern sorgen für Helligkeit. Von hier aus gelangen Sie direkt zur zur Loggia.
Ein Zimmer welches Sie als Büro, Hauswirtschafsraum oder Schlafzimmer nutzen können.
Ein WC mit Handwaschbecken.
Damit der Raum optimal genutzt wird, haben Sie noch den Vorteil eines Abstellraumes unter der Treppe mit Waschmaschinenanschluß.
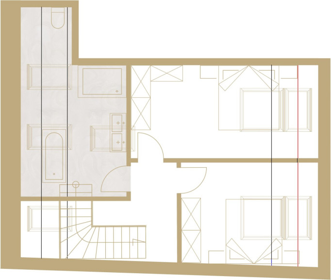
Im Dachgeschoss:
Zwei großzügige Schlafzimmer mit Dachflächenfenstern sorgen für helle, freundliche Räume und ein angenehmes Wohngefühl.
Das großzügige Badezimmer ist ein absolutes Highlight: Die stilvolle Dachschräge verleiht dem Raum besonderen Charme, während ausreichend Platz für eine freistehende Badewanne, eine bodenebene Dusche, zwei Waschbecken sowie ein in einer Nische platziertes WC höchsten Komfort und modernes Design vereinen.
Hochwertige Ausstattung für gehobene Ansprüche
Dieses Bauprojekt erfüllt höchste bauliche und technische Standards:
Ziegelmassivbauweise
PVC-Alu-Fenster in Weiß mit 3-fach Wärmeschutzverglasung
Elektrische Rollläden
Fußbodenheizung mit Fernwärmeanschluss, Warmwasseraufbereitung auch mittels Fernwärme
Vorbereitung für Photovoltaikanlage
Die Wohnung wird belagsfertig übergeben und bietet Ihnen somit die Möglichkeit, Ihre individuellen Wohnträume nach eigenen Vorstellungen zu verwirklichen. Fertigstellung September 2025.
Auf Wunsch ist selbstverständlich auch eine schlüsselfertige Ausführung möglich – gegen einen Aufpreis von € 31.005 genießen Sie den Komfort, direkt einzuziehen und sich von Anfang an rundum wohlzufühlen.
Parkmöglichkeiten
Für Ihr Fahrzeug stehen zwei Optionen zur Verfügung:
KFZ-Abstellplatz im Freien um € 15.000
Tiefgaragenplatz um € 22.000
Lage & Infrastruktur – Leben am Stadtrand mit bester Anbindung
Das Projekt ME H19 befindet sich in einer besonders begehrten Wohngegend von Maria Enzersdorf, eingebettet in die ruhige und grüne Umgebung der Gartenstadt und dennoch nur wenige Minuten von der Wiener Stadtgrenze entfernt. Diese Lage bietet die perfekte Kombination aus naturnahem Wohnen und urbaner Erreichbarkeit – ideal für alle, die Lebensqualität, Ruhe und kurze Wege gleichermaßen schätzen.
Öffentliche Verkehrsmittel:
Nur ca. 6 Gehminuten entfernt befindet sich die Schnellbahnstation Brunn-Maria Enzersdorf (S-Bahn S3) – von dort erreichen Sie den Wiener Hauptbahnhof in etwa 25 Minuten.
Mehrere Buslinien (z. B. 269, 270, 365) verbinden die Umgebung mit Mödling, Perchtoldsdorf und dem angrenzenden Wiener Stadtgebiet.
Die U6-Station Siebenhirten ist ebenfalls in kurzer Zeit erreichbar.
Mit dem Auto:
Die A2 Südautobahn sowie die Südosttangente (A23) erreichen Sie in wenigen Fahrminuten – somit gelangen Sie rasch sowohl ins Wiener Zentrum als auch in Richtung Burgenland oder Steiermark.
Wien-Innenstadt: ca. 20–25 Minuten Fahrzeit
Mödling Zentrum: ca. 5 Minuten
Shopping City Süd (SCS): ca. 10 Minuten
Nahversorgung & Infrastruktur:
In unmittelbarer Nähe finden sich zahlreiche Supermärkte (Spar, Billa, Hofer), Apotheken, Bäckereien und Bankfilialen.
Kindergärten, Schulen (z. B. HTL Mödling, BG/BRG Keimgasse) und Sporteinrichtungen sind schnell erreichbar.
Für medizinische Versorgung sorgen Allgemeinmediziner, Fachärzte und das Landesklinikum Mödling in der Umgebung.
Freizeit & Natur:
In wenigen Minuten erreichen Sie den Naturpark Föhrenberge, den Liechtensteinpark, sowie zahlreiche Wander- und Radwege.
Beliebte Ausflugsziele wie Perchtoldsdorf, die Burg Liechtenstein oder die Weinberge rund um Gumpoldskirchen befinden sich ganz in der Nähe.
Zahlreiche Cafés, Heurige, Restaurants und kulturelle Einrichtungen machen die Region zusätzlich lebenswert.
Mein Service
Ich lade Sie herzlich ein, dieses außergewöhnliche Eigentumswohnung bei einer persönlichen Besichtigung kennenzulernen. Lassen Sie sich von den vielen Vorteilen dieses einzigartigen Objekts überzeugen.
Rufen Sie mich jetzt an: +43 664 4224040
Niki Gold | Immobilienfachberaterin mit Herz
Der Vermittler ist als Doppelmakler tätig.
Infrastruktur / Entfernungen
Gesundheit
Arzt <500m
Apotheke <500m
Klinik <2.500m
Krankenhaus <1.500m
Kinder & Schulen
Schule <500m
Kindergarten <500m
Höhere Schule <3.000m
Universität <10.000m
Nahversorgung
Supermarkt <500m
Bäckerei <1.000m
Einkaufszentrum <2.000m
Sonstige
Bank <500m
Geldautomat <500m
Post <1.000m
Polizei <500m
Verkehr
Bus <500m
U-Bahn <4.000m
Straßenbahn <4.500m
Bahnhof <1.000m
Autobahnanschluss <2.000m
Angaben Entfernung Luftlinie / Quelle: OpenStreetMap
Eckdaten Objektnr. 1643/88
Art: | Wohnung |
Land: | Österreich |
Baujahr: | 2025 |
Zustand: | Erstbezug |
Alter: | Neubau |
Kaufpreis: | 599.093,00 € |
Provision: | 3% des Kaufpreises zzgl. 20% USt. |
Wohnfläche: | 103,35 m² |
Nutzfläche: | 115,72 m² |
Lagerfläche: | 2,03 m² |
Zimmer: | 4 |
Bäder: | 1 |
WC: | 2 |
Ausstattung
Fernwärme, Fußbodenheizung
Ihre persönliche Beratung

LL.B. Niki Gold
Niki Gold Immobilien
T +43 664 422 4040
H +43 664 422 4040