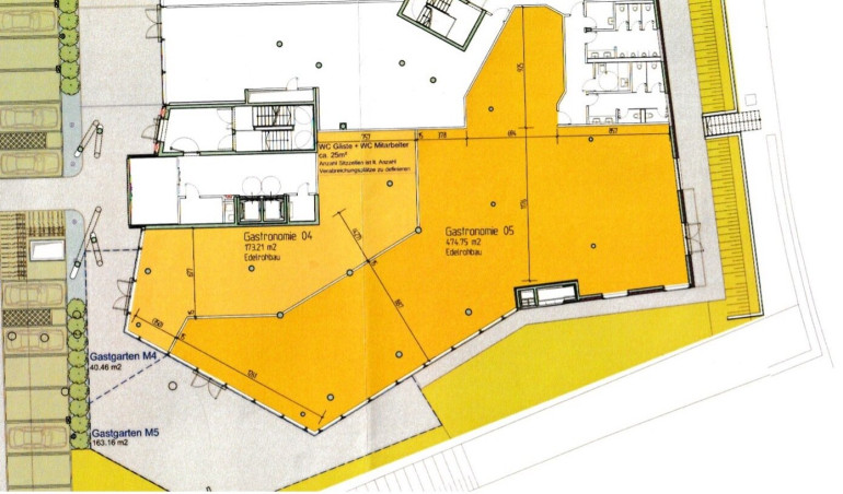
GROSSGASTRONOMIE/BETRIEBSFLÄCHE - erstes Objekt an der Zufahrt zum Industriezentrum NÖ Süd - 472 m²

Gastgewerbe , 2351 Wiener Neudorf


Die Liegenschaft befindet sich direkt an der Autobahnabfahrt A2 - Wiener Neudorf (IZ NÖ SÜD). In unmittelbarer Nähe gibt es zahlreiche Repräsentanzen großer Firmen und viele Parkplätze. Das Objekt befindet sich im erweiterten Edelrohbau und erlaubt dem künftigen Mieter mit hoher Flexibilität den Innenausbau nach eigenen Vorstellungen zu gestalten.

Beschreibung der Immobilie

GROSSGASTRONOMIE/BETRIEBSFLÄCHE - erstes Objekt an der Zufahrt zum Industriezentrum NÖ Süd - 472 m²

Der angegebene Preis von € 8.260.- versteht sich für die 472 m² Innenfläche mitsamt Gartenanteil (163 m²).





ACHTUNG WICHTIGE INFORMATION: GEMÄSS DEN VORGABEN UNSERER ANBIETER – ABGEBER WERDEN DETAILLIERTE ANGABEN ÜBER DIE INTERESSENTEN BENÖTIGT. IM FALLE IHRER ANFRAGE BITTEN WIR UM ANGABE VON: FIRMENNAME / NAME, ADRESSE, TELEFON, E-MAIL.



Auf ein wirtschaftliches Naheverhältnis zum Abgeber wird hingewiesen. Alle Informationen basieren auf Angaben des Abgebers und sind somit ohne Gewähr. Der Auftraggeber wurde von der Firma Gastrotel über die gesetzliche Verpflichtung zur Vorlage eines Energiesauweises aufgeklärt, ist dieser Aufforderung bis dato jedoch noch nicht nachgekommen.



Für Fragen bzw. zur Vereinbarung einer Besichtigung erreichen Sie



Frau Jutta SCHRÖDER: 0664 307 68 59  oder Herrn Christian HILSCHER: 0664 240 71 79    bzw. per Mail: office@gastrotel.at  




Wir weisen darauf hin, dass zwischen dem Vermittler und dem zu vermittelnden Dritten ein familiäres oder wirtschaftliches Naheverhältnis besteht.


Der Vermittler ist als Doppelmakler tätig.

Infrastruktur / Entfernungen

Gesundheit
Arzt <1.000m
Apotheke <1.000m
Klinik <3.500m
Krankenhaus <3.000m

Kinder & Schulen
Kindergarten <1.500m
Schule <1.500m
Höhere Schule <3.000m
Universität <10.000m

Nahversorgung
Supermarkt <500m
Bäckerei <1.500m
Einkaufszentrum <500m

Sonstige
Bank <500m
Geldautomat <500m
Post <500m
Polizei <1.000m

Verkehr
Bus <500m
U-Bahn <6.500m
Bahnhof <1.500m
Autobahnanschluss <1.000m
Straßenbahn <4.000m

Angaben Entfernung Luftlinie / Quelle: OpenStreetMap

Eckdaten Objektnr. 25714

Art: Gastgewerbe
Land: Österreich
Zustand: Erstbezug
Alter: Neubau
Kaltmiete (netto): 8.260,00 €
Kaltmiete: 10.195,20 €
Betriebskosten: 1.935,20 €
Nutzfläche: 472,00 m²
Garten: 163,00 m²
Immobilie merken Exposé

Immobilie anfragen


Ihre persönliche Beratung

Walter Heidinger

WERTIMMOBILIEN Consulting KG

T +43 664 312 06 46