BEZUGSFERTIG I Nähe Mühlwasser I Klimaaktiv-zertifiziert I Tiefgarage I Wärmepumpe I Fußbodenheizung & Kühlung I PV-Anlage

Wohnung , 1220 Wien


Das Projekt liegt in einer ruhigen Seitengasse, umgeben von weitläufigen Grünflächen und nur ca. 10min (Fußweg) vom Mühlwasser entfernt. Die Donau-Auen, der Nationalpark Lobau und weitere Freizeitangebote sind ebenfalls schnell fußläufig oder mit dem Fahrrad erreichbar. Die Buslinien 93A und 98A liegen fußläufig, die U2 Station "Aspernstraße" ist über Anschluss erreichbar. Öffentliche Verkehrsmittel: -Buslinien 93A, N91, 98A, 97A, 92A, -U2-Station erreichbar mit dem Bus oder Straßenbahn, Einkaufsmöglichkeit: -Billa: ca. 250 m entfernt

Beschreibung der Immobilie

BEZUGSFERTIG I Nähe Mühlwasser I Klimaaktiv-zertifiziert I Tiefgarage I Wärmepumpe I Fußbodenheizung & Kühlung I PV-Anlage

Wohnbauprojekt "K5"- bezugsfertig 



Nahe dem Mühlwasser in einer ruhigen Seitengasse, befindet sich das Neubauprojekt "K5" mit insgesamt 30 Eigentumswohnungen in Bau. Die Einheiten verfügen über 2 bis 4 Zimmer und Wohnflächen zwischen ca. 38 und 101 m² – jeweils mit Balkon, Terrasse oder Eigengarten. 



Das Projekt ist klimaaktiv-zertifiziert und setzt auf eine nachhaltige Bauweise mit langfristigem Fokus: Energieversorgung über eine Wasser-Wasser-Wärmepumpe, Photovoltaikanlage am Dach sowie moderne Dämmung sorgen für niedrige Betriebskosten und ein angenehmes Raumklima. Alle Wohnungen sind barrierefrei zugänglich, ein Lift ist vorhanden. In der Tiefgarage stehen 17 Stellplätze mit Option einer E‑Ladevorbereitung zur Verfügung.



Durch Kombination aus Grünlage, guter Anbindung und der zukunftsorientierten Bauweise sind die Wohnungen sowohl für Eigennutzer als auch für Anleger ideal geeignet.



Im Überblick: 



  • Wohneinheiten: 30 Wohnungen verteilt auf zwei Stiegen mit 2 bis 4 Zimmern 
  • Wohnflächen: ca. 38 m² bis 101 m²
  • Geplante Fertigstellung: Dezember 2025
  • Außenflächen: Balkon, Terrasse oder Eigengarten je Einheit
  • Barrierefreier Zugang zu allen Wohnungen
  • Tiefgarage mit 17 Stellplätzen
  • Fahrradraum / Kinderwagenabstellraum / Eigenes Kellerabteil


Technische Ausstattung & Komfort:



  • Wasser-Wasser-Wärmepumpe in Splitausführung (Kühlung & Heizung)
  • Photovoltaik/Solaranlage zur Reduktion von Energie- und Betriebskosten
  • Fußbodenheizung mit Raumthermostaten  
  • Fußbodentemperierung in sämtlichen Wohnbereichen
  • Elektrische Handtuchheizkörper in den Bädern
  • Split-Klimageräte in den Dachgeschosswohnungen
  • Hochwertige Innenausstattung (Eichenparkett, Feinsteinfliesen u.v.m.)
  • 3‑fach verglaste Holz‑Alu‑Fenster und Sonnenschutz in allen Wohnungen (Rollladen, Raffstores, Markisoletten) 
  • Kleinkinderspielplatz auf Eigengrund


In die Zukunft Investieren: Immobilien gelten als wertbeständige und sichere Anlageform. Alle Wohnungen und Stellplätze können auch als Vorsorge- / Anlagewohnungmit Umsatzsteuerausweisung (weitere Vermietung verpflichtend!) erworben werden! 



Sichern Sie sich Ihre neue Vorsorgewohnung - gerne beraten wir Sie dazu! 



Gerne steht Ihnen Herr Benjamin Bornschein für weitere Fragen bzw. flexibel gestaltbare Besichtigungstermine unter 0664 4255 264 zur Verfügung.  



www.ringsmuth-immobilien.at



Irrtum und Änderungen vorbehalten!

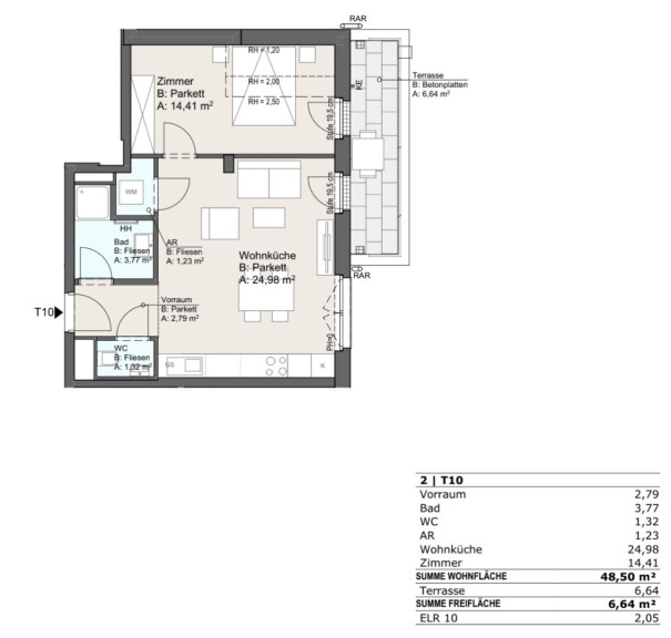
Top 10  | 2 Zimmer | ca. 49 m² + ca. 7 m² Terrasse



Die ca. 49 m² große Wohnung befindet sich im 3. Liftstock. Die Terrasse mit ca. 7 m² ist direkt von der Wohnküche aus begehbar. Alle Räume sind mit großflächigen, bodentiefen Fenstern ausgestattet und bieten ein freundlich-helles Wohnambiente.



Raumaufteilung:
– Wohnküche: ca. 24,98 m²

– Zimmer: ca. 14,41 m²

– Bad: ca. 3,77 m²

– WC separat: ca. 1,32 m²

– Vorraum: ca. 2,79 m²

– Abstellraum: ca. 1,23 m²

– Terrasse: ca. 6,64 m²

Ein Kellerabteil mit ca. 2,05 m² ist der Wohnung zugeordnet.



Wohnbauprojekt "K5"- fertiggestellt und bezugsfertig!



Nahe dem Mühlwasser in einer ruhigen Seitengasse, entsteht das Neubauprojekt "K5" mit insgesamt 30 Eigentumswohnungen. Die Einheiten verfügen über 2 bis 4 Zimmer und Wohnflächen zwischen ca. 38 und 101 m² – jeweils mit Balkon, Terrasse oder Eigengarten. 



Das Projekt ist klimaaktiv-zertifiziert und setzt auf eine nachhaltige Bauweise mit langfristigem Fokus: Energieversorgung über eine Wasser-Wasser-Wärmepumpe, Photovoltaikanlage am Dach sowie moderne Dämmung sorgen für niedrige Betriebskosten und ein angenehmes Raumklima. Alle Wohnungen sind barrierefrei zugänglich, ein Lift ist vorhanden. In der Tiefgarage stehen 17 Stellplätze zur Verfügung.



Technische Ausstattung & Komfort:



  • Wasser-Wasser-Wärmepumpe in Splitausführung (Kühlung & Heizung)
  • Photovoltaik/Solaranlage zur Reduktion von Energie- und Betriebskosten
  • Fußbodenheizung mit Raumthermostaten  
  • Fußbodentemperierung in sämtlichen Wohnbereichen
  • Elektrische Handtuchheizkörper in den Bädern
  • Split-Klimageräte in den Dachgeschosswohnungen
  • Hochwertige Innenausstattung (Eichenparkett, Feinsteinfliesen u.v.m.)
  • 3‑fach verglaste Holz‑Alu‑Fenster und Sonnenschutz in allen Wohnungen (Rollladen, Raffstores, Markisoletten) 
  • Kleinkinderspielplatz auf Eigengrund


Kaufpreis:



Der Verkaufspreisbeläuft sich auf Euro 300.860.-



Diese Wohnung kann auch als Vorsorge- / Anlagewohnungmit Umsatzsteuerausweisung (weitere Vermietung verpflichtend!) erworben werden: 



Anlegerpreis: Euro 271.045.- (zzgl. 20% Ust).  



Alle Preise verstehen sich ohne Kücheneinrichtung und Tiefgaragenstellplatz (á € 28.800.- bzw. 25.350.- Netto + USt), in schlüsselfertiger Ausführung! 



In die Zukunft Investieren: Immobilien gelten als wertbeständige und sichere Anlageform.



Sichern Sie sich Ihre neue Vorsorgewohnung - gerne beraten wir Sie dazu! 



Gerne steht Ihnen Herr Benjamin Bornschein für weitere Fragen bzw. flexibel gestaltbare Besichtigungstermine unter 0664 4255 264 zur Verfügung.  



www.ringsmuth-immobilien.at



Irrtum und Änderungen vorbehalten!




Der Vermittler ist als Doppelmakler tätig.

Infrastruktur / Entfernungen

Gesundheit
Arzt <500m
Apotheke <1.000m
Klinik <1.500m
Krankenhaus <1.500m

Kinder & Schulen
Schule <500m
Kindergarten <500m
Universität <3.000m
Höhere Schule <2.500m

Nahversorgung
Supermarkt <500m
Bäckerei <1.000m
Einkaufszentrum <3.500m

Sonstige
Geldautomat <1.000m
Bank <1.000m
Post <1.000m
Polizei <1.000m

Verkehr
Bus <500m
U-Bahn <1.500m
Straßenbahn <1.000m
Bahnhof <1.500m
Autobahnanschluss <2.500m

Angaben Entfernung Luftlinie / Quelle: OpenStreetMap

Eckdaten Objektnr. 16036

Art: Wohnung
Land: Österreich
Baujahr: 2025
Zustand: Erstbezug
Alter: Neubau
Kaufpreis: 300.860,00
Provision: 3% des Kaufpreises zzgl. 20% USt.
Wohnfläche: 48,50 m²
Nutzfläche: 55,14 m²
Zimmer: 2
Bäder: 1
WC: 1
Terrassen: 1
Keller: 2,05 m²
Heizwärmebedarf:  B  29,70 kWh/m²a
fGEE:  A+  0,60
Immobilie merken Exposé

Ausstattung

Fliesen, Parkett, Fußbodenheizung, Wohnküche / offene Küche, Personenaufzug, Dusche, Tiefgarage


Immobilie anfragen


Ihre persönliche Beratung

Alexander Ringsmuth GmbH

Benjamin Bornschein

Alexander Ringsmuth GmbH

T +43 1 3709098

H +43 664 4255 264