Beschreibung der Immobilie
Helle Altbau-Garconniere | Balkon bewilligt | U-Bahn
Einen Häuserblock weiter entsteht Österreichs größter Bildungscampus (Areal der ehemaligen Wirtschaftsuniversität)
der Balkon ist bereits bewilligt und kann bei Badarf angebaut werden
Im Zuge des Dachgeschoßausbaus wird auch ein Lift eingebaut, das Stiegenhaus sowie die Außenfassade werden renoviert. Für die Käufer der Wohnungen erfolgt dies ohne Zusatzkosten
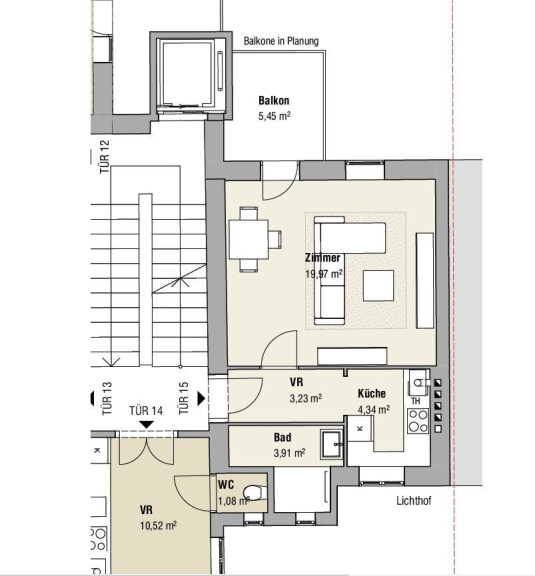
Top 15 - 3.Stock - ca.30,94m² - 1 Zimmer - Dusche und WC - Küche - Balkonzubau bewilligt 5,43m² - gebrauchter Zustand zum Renovieren
5 min Gehdistanz zu den U-Bahnstationen Spittelau oder Nußdorfer Straße
schönes Gründerzeithaus mit gegliederter Fassade - Gewerbeflächen und Wohnungen
Weitere Informationen gerne unter +43 676 933 16 91 - Besichtigungen ab sofort möglich
Energieklasse F/E
Nebenkosten bei Kaufverträgen:
- Grunderwerbsteuer : 3, 5%
- Grundbuchseintragungsgebühr : 1, 1%
- Vermittlungsprovision: Bitte beachten Sie, dass bei erfolgreicher Vermittlung mit Rechtswirksamkeit des zu vermittelnden Geschäfts eine Provision laut Immobilienmaklerverordnung i.H.v. 3% zzgl. 20% USt. des Kaufpreises zu leisten ist.
- Kosten der Vertragserrichtung und grundbücherlichen Durchführung nach Vereinbarung im Rahmen der Tarifordnung des jeweiligen Urkundenerrichters sowie Barauslagen für Beglaubigungen und Stempelgebühren
Alle Informationen, insbesondere jene hinsichtlich des Energieausweises beruhen auf den Auskünften und Unterlagen des Eigentümers. Wir haben weder die Richtigkeit oder Vollständigkeit der Angaben noch die tatsächliche Gesamtenergieeffizienz überprüft und übernehmen hierfür keine Gewähr. Wir weisen darauf hin, dass zum Auftraggeber ein wirtschaftliches Naheverhältnis besteht. Unsere Angebote sind freibleibend und unverbindlich. Zwischenverkauf, -vermietung oder -verpachtung durch den zu vermittelnden Dritten sind vorbehalten. Der Vermittler ist als Doppelmakler tätig.
Wir weisen darauf hin, dass zwischen dem Vermittler und dem zu vermittelnden Dritten ein familiäres oder wirtschaftliches Naheverhältnis besteht.
Der Vermittler ist als Doppelmakler tätig.
Infrastruktur / Entfernungen
Gesundheit
Arzt <500m
Apotheke <500m
Klinik <500m
Krankenhaus <1.500m
Kinder & Schulen
Schule <1.000m
Kindergarten <500m
Universität <500m
Höhere Schule <1.000m
Nahversorgung
Supermarkt <500m
Bäckerei <500m
Einkaufszentrum <2.000m
Sonstige
Geldautomat <500m
Bank <500m
Post <500m
Polizei <500m
Verkehr
Bus <500m
U-Bahn <500m
Straßenbahn <500m
Bahnhof <500m
Autobahnanschluss <1.000m
Angaben Entfernung Luftlinie / Quelle: OpenStreetMap
Eckdaten Objektnr. 8200/227
Art: | Wohnung |
Land: | Österreich |
Baujahr: | 1906 |
Alter: | Altbau |
Kaufpreis: | 174.000,00 € |
Provision: | 3% des Kaufpreises zzgl. 20% USt. |
Betriebskosten: | 69,50 € |
MwSt Gesamt: | 6,95 € |
Wohnfläche: | 30,94 m² |
Nutzfläche: | 30,94 m² |
Zimmer: | 1 |
Bäder: | 1 |
WC: | 1 |
Balkone: | 1 |
Ausstattung
Gas, Etagenheizung, Dusche
Ihre persönliche Beratung

ZEBEH GmbH
ZEBEH GmbH
T +43 676 9331691
H 0676 933 16 91