Großzügige Handelsfläche mit Lager am Boznerplatz zu vermieten oder verkaufen
Einzelhandel
- Einzelhandelsladen,
6020
Innsbruck
Beschreibung der Immobilie
Großzügige Handelsfläche mit Lager am Boznerplatz zu vermieten oder verkaufen
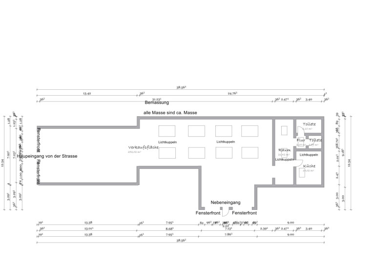
Diese vielseitige Immobilie befindet sich im Erdgeschoss und bietet eine Gesamtfläche von ca. 309,49 m². Der Zugang erfolgt direkt vom Boznerplatz. Die Handelsfläche ist in einen vorderen, lang gezogenen Verkaufsbereich und ein hinteres Lager unterteilt, das durch eine Rigipswand abgetrennt ist. Im Lager befinden sich ein WC, ein weiterer Wasseranschluss und der Elektrokasten. Die Trennwand zum Lager kann bei Bedarf entfernt werden. Eine Schaufensterfläche zum Boznerplatz hin bietet hervorragende Werbemöglichkeiten. Das Logo kann am Gebäude angebracht werden.
Ausstattung:
- Lüftungsanlage mit Wärmerückgewinnung und eigenem Stromzähler
- Fast barrierefrei (eine kleine Stufe beim Eingangsbereich zum Boznerplatz, barrierefreier Zugang über Seiteneingang)
- Fußboden: Fliesen
- Anlieferung: Halten vor dem Lokal und händische Lieferung über die ebene Passage zum Seiteneingang
- Optional: Zusätzliche kleinere Lagerflächen im Keller anmietbar, Zugang über Lift/Treppe des Wohnhauses
- Gemeinsame Nutzung des Müllraums mit der Wohnanlage
Lage: Die Immobilie befindet sich in zentraler Lage am Boznerplatz, was eine hohe Sichtbarkeit und gute Erreichbarkeit gewährleistet. Die Umgebung bietet zahlreiche Einkaufsmöglichkeiten und eine gute Anbindung an den öffentlichen Nahverkehr.
Preis: Verkaufspreis: Nach Absprache
Der Vermittler ist als Doppelmakler tätig.
Infrastruktur / Entfernungen
Gesundheit
Arzt <500m
Apotheke <500m
Klinik <1.000m
Krankenhaus <1.000m
Kinder & Schulen
Schule <500m
Kindergarten <500m
Universität <500m
Höhere Schule <1.000m
Nahversorgung
Supermarkt <500m
Bäckerei <500m
Einkaufszentrum <500m
Sonstige
Bank <500m
Geldautomat <500m
Post <500m
Polizei <500m
Verkehr
Bus <500m
Straßenbahn <500m
Autobahnanschluss <2.000m
Bahnhof <500m
Flughafen <4.000m
Angaben Entfernung Luftlinie / Quelle: OpenStreetMap
Eckdaten Objektnr. 1820/44
Art: | Einzelhandel - Einzelhandelsladen |
Land: | Österreich |
Zustand: | Teil_vollrenoviert |
Alter: | Altbau |
Kaltmiete (netto): | 5.150,00 € |
Kaltmiete: | 7.250,00 € |
Provision: | 3 Bruttomonatsmieten zzgl. 20% USt. |
Betriebskosten: | 2.100,00 € |
MwSt Gesamt: | 1.450,00 € |
Nutzfläche: | 309,49 m² |
WC: | 1 |
Heizwärmebedarf: | E 182,93 kWh/m²a |
fGEE: | D 2,32 |
Ausstattung
Fliesen, Alternativ
Ihre persönliche Beratung

Edward Kopton
A & U Immobilienvermittlungs GmbH
H +436642753644