Beschreibung der Immobilie
Schöne 1-Zimmer-Wohnung in guter Lage
Vermietetes Raumwunder als Anlage mit über 3 % Rendite
Diese charmante Garconnière im 2. Obergeschoß einer kleinen, gepflegten Wohnanlage steht als Anlegerwohnung zum Verkauf und überzeugt durch ihre ausgezeichnete Verkehrsanbindung sowie ihren gepflegten Zustand. Derzeit ist die Wohnung an einen zuverlässigen Mieter vermietet und bringt Mieteinnahmen von monatlich € 750,00, was einer Redite von über 3 % entspricht.
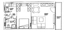
Die Wohnung bietet eine durchdachte Raumaufteilung: eine voll ausgestattete Küche, ein Badezimmer mit Dusche und WC, einen hellen Wohn- und Schlafbereich sowie einen Balkon mit Blick auf die Nordkette und integriertem Sonnenschutz. Die funktionale Einbauküche samt Elektrogeräten ist im Kaufpreis enthalten und wurde vor zwei Jahren mit einer neuen Arbeitsplatte aufgewertet.
Für zusätzlichen Komfort sorgt der Personenaufzug, der den Zugang zur Wohnung erleichtert. Als Zubehör gehört ein eigenes Kellerabteil zum Kaufobjekt, das zusätzlichen Stauraum bietet. Ein gegen Aufpreis verfügbarer Tiefgaragenplatz rundet das Angebot ab und sorgt für bequemes und sicheres Parken.
LAGEBESCHREIBUNG:
Diese Wohnung besticht durch ihre sehr gute Anbindung und die Nähe zum den Einkaufszentren DEZ und Sillpark. In unmittelbarer Nähe befinden sich ein Lebensmittelgeschäft und einige Restaurants/Cafés. Auch das Tivoli Schwimmbad und die Sportplätze beim Olympiaworld sind fußläufig schnell erreichbar. Zur Naherholung bieten sich der malerische Park des Schloss Ambras und der angrenzende Wald an.
 
ECKDATEN:
Objekttyp Wohnung | 1-Zimmer-Wohnung | Garconnière
Baujahr 1997
Zustand Gut
Wohnnutzfläche ca. 41,46 m²
Zimmer 1
Stockwerk 2. Obergeschoß
Personenaufzug Vorhanden
Heizung Radiatoren | Zentralheizung
Ausstattung Einbauküche
Böden Laminat, Fliesen
Energieausweis in Arbeit
Balkon Vorhanden
Kellerabteil Vorhanden
Parkplatz 1 Tiefgaragenplatz gegen Aufpreis
Verfügbarkeit nach Vereinbarung
Vermietet befristet bis 31.08.2027
Mietzins € 750,00 (exkl. Betriebskosten)
Betriebskosten dzt. ca. € 172,00
 
Kaufpreis Wohnung: € 265.000,00
Kaufpreis TG-Platz: € 25.000,00
Haben wir Ihr Interesse geweckt?
Gerne senden wir Ihnen auf Wunsch ein Exposé zu.
Bei weiteren Fragen sind wir jederzeit gerne für Sie da!
IHRE ANSPRECHPARTNERIN:
Frau Barbara Lechleitner
Mobil: +43 650 9805332
E-Mail: b.lechleitner@perfektimmo.at
www.perfektimmo.at
NEBENKOSTEN:
Maklerhonorar: 3,6 % inkl. USt
Vertragserrichtungskosten: ca. 2 % netto zzgl. USt zzgl. Barauslagen
Grunderwerbsteuer: 3,5 %
Grundbuchseintragung: 1,1 % - Unter Umständen könnte hier eine Befreiung gemäß dem Beschluss der Österreichischen Bundesregierung für die Eintragung des Eigentumsrechts sowie die Eintragung einer eventuellen Pfandurkunde möglich sein.
Alle Angaben nach bestem Wissen. Irrtum und Zwischenverkauf vorbehalten. Dieses Exposé ist eine Vorinformation, als Rechtsgrundlage gilt alleine der abgeschlossene Kaufvertrag. §15 der Maklerverordnung gilt als vereinbart.
Weitere tolle Angebote finden Sie unter: https://www.perfektimmo.at/angebote
Hinweis gemäß Energieausweisvorlagegesetz: Ein Energieausweis wurde vom Eigentümer bzw. Verkäufer, nach unserer Aufklärung über die generell geltende Vorlagepflicht, sowie Aufforderung zu seiner Erstellung noch nicht vorgelegt. Daher gilt zumindest eine dem Alter und der Art des Gebäudes entsprechende Gesamtenergieeffizienz als vereinbart. Wir übernehmen keinerlei Gewähr oder Haftung für die tatsächliche Energieeffizienz der angebotenen Immobilie.
Der Vermittler ist als Doppelmakler tätig.
Infrastruktur / Entfernungen
Gesundheit
Arzt <500m
Apotheke <500m
Klinik <2.000m
Krankenhaus <2.500m
Kinder & Schulen
Schule <1.000m
Kindergarten <500m
Universität <1.500m
Höhere Schule <1.500m
Nahversorgung
Supermarkt <500m
Bäckerei <500m
Einkaufszentrum <1.500m
Sonstige
Bank <500m
Geldautomat <500m
Post <1.000m
Polizei <1.000m
Verkehr
Bus <500m
Straßenbahn <500m
Autobahnanschluss <1.000m
Bahnhof <1.500m
Flughafen <5.500m
Angaben Entfernung Luftlinie / Quelle: OpenStreetMap
Eckdaten Objektnr. 6566/1673
| Art: | Wohnung | 
| Land: | Österreich | 
| Baujahr: | 1997 | 
| Kaufpreis: | 265.000,00 € | 
| Provision: | 3,6% des Kaufpreises | 
| Betriebskosten: | 172,00 € | 
| Wohnfläche: | 41,46 m² | 
| Zimmer: | 1 | 
| Bäder: | 1 | 
| WC: | 1 | 
| Balkone: | 1 | 
Ausstattung
Fliesen, Laminatboden, Zentralheizung, Einbauküche, Personenaufzug, Ostbalkon, Dusche, Parkplatz(Duplex)
Ihre persönliche Beratung
 
                                                        Barbara Lechleitner
PERFEKT IMMO GmbH
T +43 650 9805332
H +43 650 9805332
 
                 
                 
                 
                 
                 
                 
                