Erfüllen Sie sich Ihren Wohntraum - exklusive Dachgeschossmaisonette zum Verlieben

Wohnung - Dachgeschoß, 1170 Wien


Wien-Hernals, Rosensteingasse Die zentrale Lage der Wohnung ermöglicht es Ihnen, die Vorzüge des urbanen Lebens in vollen Zügen zu genießen. In unmittelbarer Nähe finden Sie eine Vielzahl von Einkaufsmöglichkeiten, gemütlichen Cafés und Restaurants, die zum Verweilen einladen. Auch die Anbindung an öffentliche Verkehrsmittel ist hervorragend, sodass Sie schnell und unkompliziert in die Innenstadt gelangen. Öffentliche Verkehrsanbindung: Straßenbahnlinien 2, 9 und 43 sind fußläufig erreichbar. Sowohl mit der Linie 2, also auch mit dem 43er gelangen Sie rasch in die Innere Stadt, dem Herzen der Metropole Wien. Eine weitere Aufwertung der Lage wird der Bau der U5-Station am Elterleinplatz bringen. Einkaufsmöglichkeiten: Diese finden Sie z.B. ausreichend auf der Hernalser Hauptstraße sowie im EKZ am Elterleinplatz. Medizin: Ärzte verschiedenster Fachrichtungen und eine Apotheke finden Sie in fußläufiger Entfernung zur gegenständlichen Liegenschaft. Bildung: In direkter Umgebung befinden sich Schulen und Kindergärten.

Beschreibung der Immobilie

Erfüllen Sie sich Ihren Wohntraum - exklusive Dachgeschossmaisonette zum Verlieben

Sehr geehrte Interessentin, sehr geehrter Interessent,



willkommen in Ihrem neuen Zuhause im Herzen von Wien-Hernals! Diese exklusive Dachgeschosswohnung vereint modernen Wohnkomfort mit urbanem Flair und bietet Ihnen die perfekte Rückzugsoase in einer pulsierenden Stadt.

 



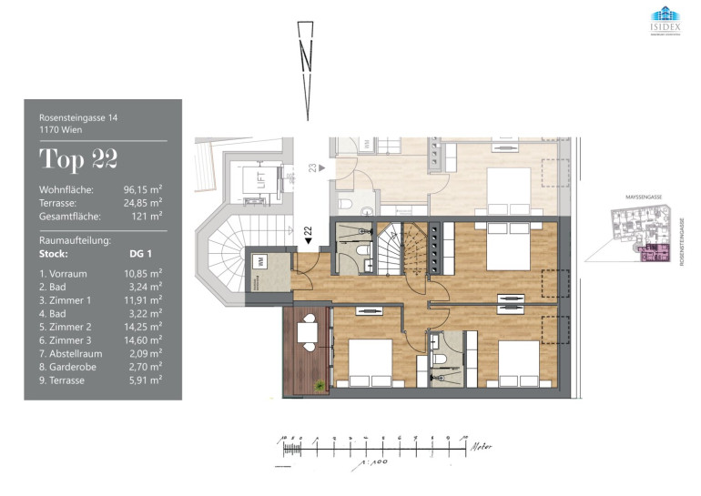
Mit einer Wohnfläche von 96,15 m² und einem durchdachten Raumkonzept erstreckt sich diese exquisite Immobilie über 4 lichtdurchflutete Zimmer. Der Erstbezug dieser Wohnung ermöglicht es Ihnen, in ein frisches, modernes Zuhause einzuziehen, das keine Wünsche offenlässt. Darüber hinaus verfügen Sie über zwei Terrassen mit insgesamt ca. 24,85 m² Freifläche.





Die Ausstattung lässt keine Wünsche offen, nachstehend ein Auszug:



  • Hochwertiger Fischgrätparkettboden in der gesamten Wohnung
  • Verflieste Nassräume
  • Fußbodenheizung für angenehmes Raumklima
  • Klimaanlage für optimalen Komfort
  • Terrasse mit Strom- und Wasseranschluss
  • Videosprechanlage für mehr Sicherheit
  • KMX Haussteuerungssystem – kompatibel mit Smartphones und Tablets
  • Elektronische Außenjalousien für Sonnenschutz und Privatsphäre




Im Zuge des DG-Ausbaus und Sanierung der Regelgeschosswohnungen wurde die gesamte Liegenschaft generalsaniert und hat nichts unversucht lassen, aus diesem Wohngebäude ein repräsentatives Schmuckstück zu schaffen.





Lassen Sie sich von dieser einzigartigen Wohnung begeistern und vereinbaren Sie noch heute einen Besichtigungstermin. Ihr Traum vom eigenen Zuhause in Wien könnte schon bald Wirklichkeit werden!





Vertragserrichtung: Mag. Herbert Nigl (1,5 % v. KP zzgl. 20 % u. Barauslagen)





Ausführliche Informationen und entsprechende Unterlagen werden Ihnen gerne übermittelt. Für dies und zwecks Vereinbarung eines Besichtigungstermines kontaktieren Sie bitte Herrn Felix Kunej ausschließlich schriftlich unter kunej@isidex.at oder Sie verwenden das jeweilige Anfrageformular.



In Entsprechung des FAGG (Fern- und Auswärtsgeschäfte-Gesetz) und des VRUG (Verbraucherrechte-Richtlinie-Umsetzungsgesetz) ist es uns leider nur mehr möglich Termine nach Erhalt einer schriftlichen Anfrage mit vollständigen Kontaktangaben (Name, Adresse, Telefon, Email) zu vereinbaren, Unterlagen zu übermitteln und zu diesem Objekt Auskunft zu erteilen.


Wir weisen darauf hin, dass zwischen dem Vermittler und dem zu vermittelnden Dritten ein familiäres oder wirtschaftliches Naheverhältnis besteht.


Der Vermittler ist als Doppelmakler tätig.

Eckdaten Objektnr. 1083

Art: Wohnung - Dachgeschoß
Land: Österreich
Zustand: Erstbezug
Kaufpreis: 749.000,00
Provision: 3% des Kaufpreises zzgl. 20% USt.
Betriebskosten: 154,41 €
MwSt Gesamt: 15,44 €
Wohnfläche: 96,15 m²
Gesamtfläche: 121,00 m²
Zimmer: 4
Bäder: 2
WC: 2
Terrassen: 2
Keller: 1,50 m²
Heizwärmebedarf:  B  35,77 kWh/m²a
fGEE:  B  0,91
Immobilie merken Exposé

Ausstattung

Fliesen, Parkett, Gas, Etagenheizung, Fußbodenheizung, Wohnküche / offene Küche, Personenaufzug, Badewanne, Dusche


Immobilie anfragen


Ihre persönliche Beratung

ISIDEX GmbH

Felix Kunej

ISIDEX GmbH

T +43 676 770 52 64

H +43 676 5055237