PROVISIONSFREI: Erstbezug: 4-Zimmer-Maisonette-Wohnung mit Garten und Balkon in Steyr

Wohnung , 4400 Steyr


Beschreibung der Immobilie

PROVISIONSFREI: Erstbezug: 4-Zimmer-Maisonette-Wohnung mit Garten und Balkon in Steyr

PROVISIONSFREI: Erstbezug: 4-Zimmer-Maisonette-Wohnung mit Garten und Balkon in Steyr 



Inmitten der idyllischen Landschaft von Steyr-Christkindl entsteht das exklusive Neubauprojekt Panorama Wohnen, das modernen Wohnkomfort mit ruhiger Lage vereint. Die insgesamt 32 hochwertigen Eigentumswohnungen beeindrucken mit durchdachten Grundrissen, großzügigen Terrassen, Balkonen oder Eigengärten sowie einer hochwertigen Ausstattung, die keine Wünsche offenlässt.



Zum Verkauf gelangt eine 84,82 m² große Wohnung in Steyr-Christkindl. Die Wohnfläche wird durch einen Eigengarten mit 11,89 m² und einem Balkon mit 8,14 m² ergänzt. Die Wohnung verfügt über vier Zimmer, welche auf 2 Geschosse aufgeteilt sind. Die Wohnung eignet sich hervorragend für Familien oder Paare. Ein Kellerabteil ist im Preis inbegriffen. Ein Tiefgaragenstellplatz kann optional um je 21.000 Euro erworben werden. Die Wohnung ist provisionsfrei zu erwerben.



Dank der barrierefreien Bauweise ist ein komfortables Wohngefühl in jeder Lebensphase garantiert. Ein weiteres Highlight ist die Tiefgarage mit insgesamt 50 Stellplätzen, in der auch E-Mobilität berücksichtigt wurde.



Zur Ausstattung gehören Echtholzparkettböden in Wohn- und Schlafräumen, großflächige Fenster mit 3-fach-Isolierverglasung, elektrische Außenraffstores, Fußbodenheizung in allen Räumen sowie Sanitärausstattung mit Markenprodukten von Laufen und Grohe. Bodengleiche Duschen und Eckbadewannen sind je nach Wohnung vorhanden. Die Terrassen sind mit Betonplatten und Glasgeländern versehen. Ein Kellerabteil ist inklusive, ebenso eine zentrale Zentralschließanlage. Ein Tiefgaragenplatz kann separat erworben werden.



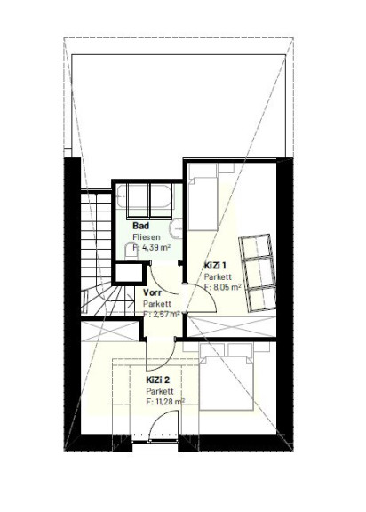
Raumaufteilung



OG: Vorraum - Bad mit WC - Wohnküche - Schlafzimmer  - Abstellraum - Dachgarten mit Balkon 



DG: Kinderzimmer - weiteres Schlafzimmer - Bad mit WC - Abstellraum 



Lage
Die Wohnanlage befindet sich in einer sonnigen, ruhigen Lage in Steyr-Christkindl. Gleichzeitig profitieren Sie von der Nähe zur Stadt Steyr mit bester Infrastruktur. In der Umgebung befinden sich Nahversorger wie Supermarkt, Bäckerei, Bank und Tankstelle, Krabbelstube, Kindergarten, Volksschule sowie höhere Schulen, ärztliche Versorgung und das Krankenhaus Steyr. Freizeitmöglichkeiten wie Fußball, Tennis und Musikvereine sind ebenfalls gut erreichbar. Die Kombination aus Naturverbundenheit und zentraler Lage macht dieses Projekt besonders attraktiv für all jene, die Wert auf Lebensqualität und Wohnkomfort legen.



Sie haben Interesse?
Ansehen lohnt sich – wir freuen uns über Ihr Interesse! Für weitere Fragen stehen wir Ihnen gerne unter der Rufnummer 0664 398 34 62 zur Verfügung. Auf Wunsch stellen wir gerne einen Kontakt zu Finanzierungsexperten her.

Haben Sie die richtige Immobilie noch nicht gefunden? Dann registrieren Sie sich hier:

👉 https://girkinger-immobilien.at/suchagent/#section-2-113717



Rechtliche Informationen
Bitte beachten Sie, dass aufgrund unserer ALLEINBEAUFTRAGUNG und Nachweispflicht für den Abgeber ausschließlich Anfragen unter Angabe Ihrer VOLLSTÄNDIGEN DATEN bearbeitet werden können (NAME, ANSCHRIFT, E-Mail, Telefonnummer). Explizit weisen wir darauf hin, dass alle Angaben nach bestem Wissen erstellt wurden. Irrtümer, Druckfehler und Änderungen vorbehalten. Für Auskünfte und Angaben, die uns von Seiten der Eigentümer und Dritten zur Verfügung gestellt wurden, können wir keine Haftung übernehmen. Besichtigungen und Beratungen erfolgen kostenlos, lediglich im Falle einer erfolgreichen Vermittlung ist die gesetzliche Provision zur Zahlung fällig.


Der Vermittler ist als Doppelmakler tätig.

Infrastruktur / Entfernungen

Gesundheit
Arzt <500m
Apotheke <1.500m
Klinik <2.000m
Krankenhaus <1.500m

Kinder & Schulen
Schule <1.000m
Kindergarten <1.000m
Universität <1.500m
Höhere Schule <1.000m

Nahversorgung
Supermarkt <500m
Bäckerei <1.000m
Einkaufszentrum <1.500m

Sonstige
Bank <1.000m
Geldautomat <1.500m
Post <1.000m
Polizei <1.000m

Verkehr
Bus <500m
Bahnhof <1.000m
Flughafen <10.000m

Angaben Entfernung Luftlinie / Quelle: OpenStreetMap

Eckdaten Objektnr. 5950/4279

Art: Wohnung
Land: Österreich
Baujahr: 2025
Zustand: Erstbezug
Kaufpreis: 442.635,00
Provision: Provision bezahlt der Abgeber.
Betriebskosten: 230,00 €
Wohnfläche: 84,82 m²
Zimmer: 4
Bäder: 2
WC: 2
Terrassen: 1
Stellplätze: 1
Garten: 11,89 m²
Keller: 3,78 m²
Heizwärmebedarf:  B  41,80 kWh/m²a
fGEE:  A+  0,67
Immobilie merken Exposé

Ausstattung

Fliesen, Parkett, Fußbodenheizung, Personenaufzug, Garage


Immobilie anfragen


Ihre persönliche Beratung

Thomas Girkinger Immobilien GmbH

Aldin Tahic

Thomas Girkinger Immobilien GmbH

T +43 732 77 52 00

H +43 664 398 34 62