Sparen beim Einzug: 2 MONATE MIETFREI - 3-Zimmer-Wohnung mit Loggia
Wohnung
,
8020
Graz
Beschreibung der Immobilie
Sparen beim Einzug: 2 MONATE MIETFREI - 3-Zimmer-Wohnung mit Loggia
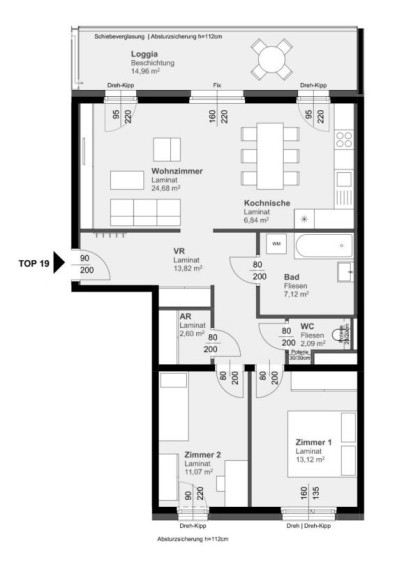
EINZIEHEN & SPAREN - 2 MONATE GESCHENKT! Bei Vertragsabschluss bis 01.06.2026Diese hochwertig geschnittene 3-Zimmer-Wohnung mit ca. 96,30 m² befindet sich im 6. Obergeschoss mit Lift und überzeugt durch ein durchdachtes Raumkonzept sowie eine angenehme Wohnatmosphäre.
- Vorraum
- Wohnzimmer mit Kochnische
- 2 Schlafzimmer
- Badezimmer mit Badewanne
- separates WC
- Abstellraum
- Loggia
Diese Wohnung wird ohne Kücheneinrichtung vermietet.
Ein Kellerabteil ist der Wohnung zugeteilt und im Mietpreis inkludiert.
Die Bruttomiete setzt sich zusammen aus:
Hauptmietzins, Betriebskosten und Umsatzsteuer.
Heizkosten und Energiekosten sind nicht enthalten.
Lage und Infrastruktur:
In unmittelbarer Nähe befinden sich zahlreiche Einkaufsmöglichkeiten wie Spar, Interspar und das Einkaufszentrum Citypark.
Die Anbindung an öffentlichen Verkehr ist durch die Nähe zum Grazer Hauptbahnhof hervorragend. Für die Freizeitgestaltung stehen Parks wie der Josef-Huber- oder Oeverseepark sowie Restaurants, Cafés und kulturelle Einrichtungen in der Umgebung zur Verfügung.
Mietbeginn:
ab sofort
Mietdauer:
unbefristet
Jetzt online anfragen oder anrufen – wir melden uns zeitnah mit Terminvorschlägen.
Weitere Immobilien finden Sie auf unserer Immobiliensuche - RUSTLER
Eckdaten Objektnr. 141/83577
| Art: | Wohnung |
| Land: | Österreich |
| Baujahr: | 2019 |
| Gesamtmiete: | 1.022,59 € |
| Kaltmiete (netto): | 628,15 € |
| Betriebskosten: | 301,48 € |
| MwSt Gesamt: | 92,96 € |
| Wohnfläche: | 96,30 m² |
| Zimmer: | 3 |
| Bäder: | 1 |
| WC: | 1 |
| Heizwärmebedarf: | B 29,22 kWh/m²a |
Ausstattung
Fernwärme, Zentralheizung, Personenaufzug
Ihre persönliche Beratung
Dieser Makler ist ein offizielles Mitglied des IR – ir.at Mehr Erfahren
