Exklusive Dachgeschosswohnung mit Terrasse in Top-Lage Groß-Enzersdorf samt 2 Tiefgaragenplätzen
Wohnung
- Dachgeschoß,
2301
Groß-Enzersdorf
Die Wohnung liegt in der Nähe des Hauptplatzes, der das Zentrum der Stadt Groß Enzersdorf darstellt. In unmittelbarer Umgebung gibt es zahlreiche Annehmlichkeiten wie einen Arzt, eine Apotheke, eine Schule und einen Kindergarten. Auch eine Universität ist in der Nähe zu finden. Für den täglichen Bedarf gibt es einen Supermarkt, eine Bäckerei und ein Einkaufszentrum. Banken u.v.m.
Beschreibung der Immobilie
Exklusive Dachgeschosswohnung mit Terrasse in Top-Lage Groß-Enzersdorf samt 2 Tiefgaragenplätzen
Sie suchen nach einer traumhaften Wohnung in Groß-Enzersdorf?
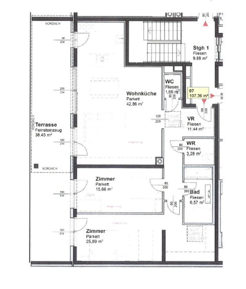
Dann haben wir genau das Richtige für Sie! Diese wunderschöne Dachgeschosswohnung befindet sich in einer ruhigen und dennoch zentralen und charmanten Lage in Groß-Enzersdorf. Mit einer Wohnfläche von 106.1m² bietet sie ausreichend Platz für Sie und Ihre Familie.
Das Highlight dieser Immobilie ist die wunderbare Terrasse, von der aus Sie etwas Freiheit genießen können. Hier sind entspannte Stunden im Freien in denen Sie sich vom Alltagsstress erholen können vorprogrammiert. Die Wohnung befindet sich im Dachgeschoss und ist somit besonders lichtdurchflutet und hell, Im Schrankraum des Schlafzimmers findet man sogar eine von zwei Lichtkuppeln, die besonderen Charm in den Ankleidebereich bringt. Die zweite Lichtkuppel erfüllt den Vorraum mit Tageslicht. Der Nassbereich ist mit eleganten Fliesen und hochwertigen Armaturen ausgestattet und bietet Ihnen einen Ort der Entspannung und Erholung. Die modernen und hochwertigen Holz- Alu Fenster mit Dreifachverglasung vom Qualitätshersteller Hrachowina lassen Licht herein, aber Hitze und Kälte draußen.
Die von Glorit errichtete Wohnung wartet aber in allen Bereichen mit höchster Qualität auf, denn Scheucher Parkett und Sanitärausstattung von Villeroy & Boch bilden nur die Basis eines überdurchschnittlich qualitätsvollen Ausstattungspaketes. Die Wohnung ist in einem neuwertigen Zustand und wurde mit Liebe zum Detail eingerichtet. Auch dabei wurde auf die Qualität geachtet.
Abgerundet wird dieses außergewöhnliche Objekt durch 2 Tiefgaragenplätze! Da bleiben keine Wünsche mehr offen!
Die öffentliche Verkehrsanbindung ist ebenso optimal, denn in unmittelbarer Nähe befindet sich eine Bushaltestelle des 26A, mit dem Sie in 26 Minuten nach Kagran gelangen. Auch für Pendler die öffentlich unterwegs sind ist diese Wohnung ideal, da der Bahnhof nur wenige Minuten entfernt ist.
Die Highlights im Überblick
- Edle Echtholz-Dielen der österreichischen Qualitätsmarke Scheucher
- Exklusive Sanitärausstattung von der Marke Villeroy & Boch
- Qualitätsvolle Armaturen der Marke Hansgrohe
- Komfortabler Handtuchheizkörper mit E-Patrone im Bad
- Großzügiger Duschbereich mit bodenebener Dusche und mit Edelstahlrinne und rahmenloser Echtglasabtrennung
- Mechanische Lüftung in allen Bädern und WCs
- Elegante Feinsteinzeug-Fliesen in den Formaten 60x60 cm bzw. 30x60 cm vom italienischen Hersteller Casalgrande Padana
- Verfliesung im Bad auf eine Höhe von 2,40 m laut Fliesenplan und im WC 1,20 m
- Fußbodenheizung in allen Zimmern einzeln regulierbar
- Innentüren der Marke Kunex mit Röhrenspaneinlagen für einen optimalen Schallschutz
- Holz-Alu-Fenster mit 3-fach Isolierverglasung von Hrachowina
- Moderne, großflächige Hebe/Schiebetüren laut Plan vom österreichischen Markenhersteller Hrachowina
- Bequem bedienbare elektrische Raffstores mit Funkfernbedienung
- Terrassenverfliesung mit Feinsteinzeug im Format 60x60 cm vom italienischen Hersteller Casalgrande Padana
- Edelstahlgeländer mit Sicherheitsglasfüllungen und einen Außenwasseranschluss auf Terrasse/Loggia
- Jeweils eine Anschlussvorbereitung für TV, Internet bzw. Telefon pro Zimmer
- Einbruchshemmende Wohnungseingangstür der Klasse WK3
- Außenwände in Massivbauweise mit hochwertigem Wärmedämmverbundsystem
- Effizientes Gas-Heizsystem
- Komfortabler Lift
- Fix zugeteilte Garagenplätze im Keller laut Garagenplan
Lassen Sie sich diese einzigartige Gelegenheit nicht entgehen und vereinbaren Sie noch heute einen Besichtigungstermin für diese traumhafte Dachgeschosswohnung in Groß-Enzersdorf. Hier können Sie Ihren Wohntraum wahr werden lassen und sich in einer modernen und komfortablen Umgebung wohlfühlen. Wir freuen uns auf Ihre Kontaktaufnahme!
.
.
.
Gut finanziert ist halb gewonnen!
Lassen Sie sich auch zum Thema der Immobilienfinanzierung beraten, bei Hillinger Immobilien bekommen Sie alles aus einer Hand. Gerne erstellen wir Ihnen ein Finanzierungsbeispiel um Ihnen einen ersten Eindruck zu verschaffen oder prüfen direkt für Sie wo die besten Konditionen für Sie zu finden sind.
Beratung, Berechnung und Prüfung sind völlig kostenfrei und unverbindlich.
Fragen lohnt sich!
Der Vermittler ist als Doppelmakler tätig.
Infrastruktur / Entfernungen
Gesundheit
Arzt <500m
Apotheke <1.000m
Klinik <4.500m
Krankenhaus <7.000m
Kinder & Schulen
Schule <500m
Kindergarten <500m
Universität <1.000m
Höhere Schule <4.000m
Nahversorgung
Supermarkt <500m
Bäckerei <500m
Einkaufszentrum <1.000m
Sonstige
Bank <500m
Geldautomat <500m
Polizei <1.000m
Post <500m
Verkehr
Bus <500m
U-Bahn <4.500m
Straßenbahn <5.000m
Bahnhof <4.500m
Autobahnanschluss <7.000m
Angaben Entfernung Luftlinie / Quelle: OpenStreetMap
Eckdaten Objektnr. 7191/82
Art: | Wohnung - Dachgeschoß |
Land: | Österreich |
Baujahr: | 2021 |
Zustand: | Neuwertig |
Alter: | Neubau |
Kaufpreis: | 729.000,00 € |
Provision: | 3% des Kaufpreises zzgl. 20% USt. |
Betriebskosten: | 190,77 € |
Heizkosten: | 136,33 € |
MwSt Gesamt: | 50,72 € |
Wohnfläche: | 107,36 m² |
Zimmer: | 3 |
Bäder: | 1 |
WC: | 1 |
Keller: | 3,00 m² |
Heizwärmebedarf: | B 39,92 kWh/m²a |
fGEE: | A 0,85 |
Ausstattung
Parkett, Fliesen, Gas, Zentralheizung, Einbauküche, Personenaufzug, Badewanne, Dusche, Bad mit Fenster, Tiefgarage
Ihre persönliche Beratung

Robert Holzmann
Hillinger Immobilien GmbH
T +4366499960996