IHR TRAUMHAUS IN IDYLLISCHER LAGE! Modern, komfortabel und naturnah!
Haus
- Doppelhaushälfte,
2732
Willendorf
Ruhige Wohngegend. Umgeben von Grünflächen und Feldern. Gute Verkehrsanbindung durch Autobahnanschluss A2, ca. 10 km von Wiener Neustadt und 50 km von Wien entfernt. In der Nähe befinden sich auch Schulen und Kindergärten. Das Haus liegt in einer Sackgasse, somit wenig Verkehr und kinderfreundlich. Schöne Aussicht auf die umliegende Landschaft.
Beschreibung der Immobilie
IHR TRAUMHAUS IN IDYLLISCHER LAGE! Modern, komfortabel und naturnah!
Willkommen in Ihrem neuen Zuhause – Erstbezug in traumhafter Ruhelage in Willendorf
In der idyllischen Gemeinde Willendorf erwartet Sie eine besondere Gelegenheit: Ein neu errichtetes, belagsfertiges Einfamilienhaus mit durchdachter Raumaufteilung und hochwertiger Ausstattung – ideal für Familien, Naturliebhaber und alle, die Ruhe und Lebensqualität suchen.
Eckdaten im Überblick
Erstbezug – belagsfertig
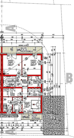
Ca. 165 m² Nutzfläche
5 Zimmer – zentral begehbar
Fußbodenheizung im gesamten Haus
Balkon & Terrasse
Eigener Garten
Moderne Bäder mit Duschen
Innovative Luftwärmepumpe – energieeffizient & kostensparend
Abstellraum für zusätzlichen Stauraum
Parkplatz direkt vor dem Haus
Absolute Ruhelage
Kaufpreis (schlüsselfertig): EUR 479.000,-
Wohnen mit Stil, Komfort und Funktionalität
Der helle, freundliche Eingangsbereich führt Sie direkt in den offen gestalteten Wohn- und Essbereich. Große Fensterflächen sorgen für ein angenehmes Raumgefühl und einen wunderschönen Blick ins Grüne. Die Fußbodenheizung schafft in allen Räumen ein angenehmes Wohnklima.
Genießen Sie entspannte Stunden auf dem Balkon oder der Terrasse – perfekt für sonnige Tage und laue Abende. Die Badezimmer sind mit modernen, ebenerdigen Duschen ausgestattet und fügen sich harmonisch in das stilvolle Gesamtkonzept des Hauses ein.
Die verbaute Luftwärmepumpe sorgt für effizientes, umweltfreundliches Heizen und hilft Ihnen dabei, langfristig Energiekosten zu sparen.
Top-Lage mit hervorragender Infrastruktur
Trotz der ruhigen Lage sind alle wichtigen Einrichtungen schnell erreichbar:
Bushaltestelle & Bahnhof in der Nähe
Supermärkte, Bäckerei, Arztpraxen bequem zu Fuß erreichbar
Direkter Zugang zur Natur: Spazier- und Radwege direkt vor der Haustür
Willendorf bietet eine ideale Kombination aus Erholung im Grünen und guter Verkehrsanbindung – perfekt für alle, die eine ausgewogene Work-Life-Balance suchen. Überzeugen sie sich selbst von unserem tollen Angebot und vereinbaren Sie gleich einen Besichtigungstermin. Für weitere Informationen steht Ihnen Axel Pagacz telefonisch unter +43 (0)678 129 30 10gerne zur Verfügung.
Wir weisen darauf hin, dass zwischen dem Vermittler und dem zu vermittelnden Dritten ein familiäres oder wirtschaftliches Naheverhältnis besteht.
Infrastruktur / Entfernungen
Gesundheit
Arzt <1.000m
Apotheke <7.000m
Krankenhaus <7.500m
Klinik <6.500m
Kinder & Schulen
Schule <1.500m
Kindergarten <2.000m
Nahversorgung
Supermarkt <1.000m
Bäckerei <500m
Einkaufszentrum <7.500m
Sonstige
Bank <500m
Geldautomat <500m
Post <500m
Polizei <1.000m
Verkehr
Bus <500m
Bahnhof <500m
Autobahnanschluss <9.500m
Angaben Entfernung Luftlinie / Quelle: OpenStreetMap
Eckdaten Objektnr. 1757/224
Art: | Haus - Doppelhaushälfte |
Land: | Österreich |
Baujahr: | 2022 |
Zustand: | Erstbezug |
Alter: | Neubau |
Kaufpreis: | 425.000,00 € |
Provision: | 3% des Kaufpreises zzgl. 20% USt. |
Betriebskosten: | 150,00 € |
MwSt Gesamt: | 15,00 € |
Wohnfläche: | 165,00 m² |
Grundstücksfl.: | 350,00 m² |
Zimmer: | 5 |
Bäder: | 2 |
WC: | 3 |
Balkone: | 2 |
Terrassen: | 1 |
Stellplätze: | 2 |
Heizwärmebedarf: | B 31,20 kWh/m²a |
fGEE: | A++ 0,49 |
Ausstattung
Estrichboden, Fußbodenheizung, Westbalkon, Bad mit Fenster, Badewanne, Dusche, Kabel/Satelliten-TV, Parkplatz
Ihre persönliche Beratung

Axel Pagacz
Immobilien Sablatnig
T +436781293010