Gepflegtes Haus mit großem Garten, Panorama und Gartenhaus
                                                            Haus
                                - Einfamilienhaus,
                            
                            
                                
                                                                            3400
                                    
                                                                            Klosterneuburg
                                    
                                    ,
                                        Lamberggasse                                                                                    
                                    
                                
                                                                    
                                        
                                    
                                
                            
                        
                        nah an der Donau, Stift Klosterneuburg
Beschreibung der Immobilie
Gepflegtes Haus mit großem Garten, Panorama und Gartenhaus
In ruhiger Lage im begehrten Villenviertel des Ölbergs in Klosterneuburg, direkt an der Stadtgrenze, befindet sich dieses gepflegte Einfamilienhaus mit drei großzügigen Wohnebenen – ideal für Familien, die viel Platz und Wohnkomfort schätzen. Das Haus überzeugt mit einem durchdachten Grundriss und bietet neben den hellen Wohnräumen auch einen wunderbaren Garten.
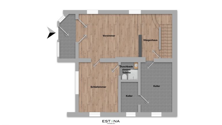
Raumaufteilung Erdgeschoss:
- großer Eingangsbereich 
- Gästezimmer (mit direktem Zugang zum Duschbadezimmer)
- Duschbadezimmer mit Toilette
- Wirtschaftsraum mit Waschmaschinenanschluss
- Heizraum
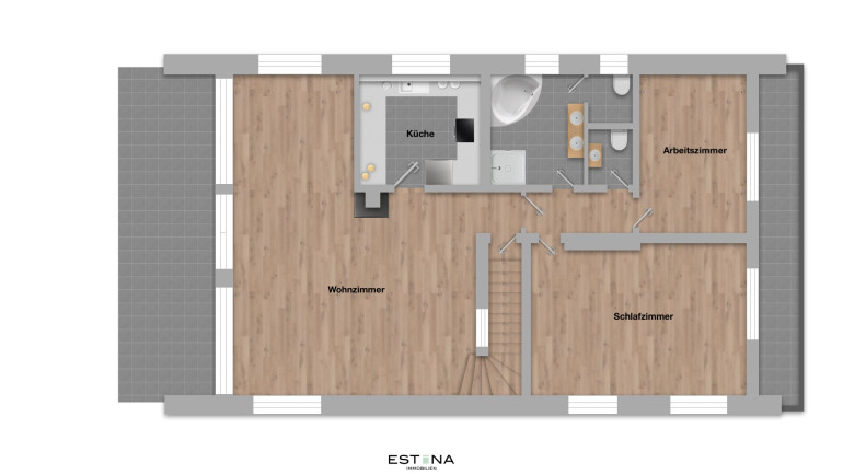
Raumaufteilung 1. Stock
- Gang
- separate Küche (Vollholz)
- lichtdurchflutendes Wohnzimmer mit offenem Karmin und Ausgang zur Terrasse 
- Masterbedroom 
- 2 Schlafzimmer mit Balkon
- Badezimmer mit Doppelwaschbecken, Badewanne und Toilette
- separate Toilette mit Fenster
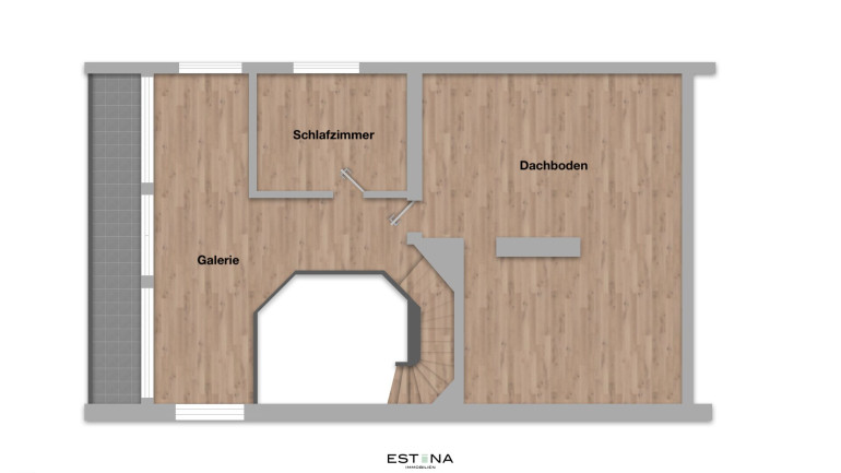
Raumaufteilung 2. Stock
- Stiegenaufgang zur Galerie
- Galerie
- Mansardenzimmer 
- Dachboden nicht ausgebaut begehbar 
Gartenhaus mit 70 Quadratmetern und Geräte Schuppen 
Lage und Infrastruktur:
Die Lamberggasse befindet sich in einer ruhigen, grünen Wohngegend von Klosterneuburg, nur wenige Minuten vom Stadtzentrum und der Wiener Stadtgrenze entfernt. Die Lage vereint die Vorteile von Natur und urbaner Infrastruktur: Einkaufsmöglichkeiten wie Interspar sind in etwa 10 Gehminuten erreichbar, ebenso wie diverse Schulen (inklusive Privatschulen wie PVS Kritzendorf, Privatgymnasium Klosterneuburg und Gallemo) sowie Kindergärten, darunter ein Montessori-Kindergarten, der bereits Kinder ab dem ersten Lebensjahr betreut.
Die Anbindung an den öffentlichen Verkehr ist sehr gut: Die nächste Bushaltestelle liegt nur 100 Meter entfernt, der Bahnhof Kierling sowie Busverbindungen Richtung Heiligenstadt sind in ca. 20 Gehminuten erreichbar. Zudem ist der Unterkritzendorf Bahnhof in etwa 20 Minuten erreichbar.
Kulturell bietet die Umgebung ein umfangreiches Programm mit Highlights wie der Oper Klosterneuburg, der Albertina Klosterneuburg und dem Museum Gugging. Für Naturliebhaber und Familien sind die nahegelegenen Naherholungsgebiete wie der Buchberg und die Donauauen perfekte Orte für Spaziergänge und sportliche Aktivitäten. Ein idyllischer Heurigenort rundet das Angebot ab.
Nicht zuletzt ist das renommierte Institute of Science and Technology (IST Austria) in unmittelbarer Nähe, was die Lage auch für Wissenschaftler und Akademiker attraktiv macht.
Kosten:
Kosten: € 3.490,- inkl. BK und USt.
Kaution 4MM € 13.960,-
Kontakt:
Bei Fragen oder zur Vereinbarung eines Besichtigungstermins wenden Sie sich bitte an Frau Johanna Obkircher unter obkircher@estina.at oder mobil unter 0676 316 37 08. 
Der Immobilienmakler erklärt, dass er – entgegen dem in der Immobilienwirtschaft üblichen Geschäftsgebrauch des Doppelmaklers – einseitig nur für den Vermieter tätig ist.
Eckdaten Objektnr. 25183
| Art: | Haus - Einfamilienhaus | 
| Land: | Österreich | 
| Zustand: | Modernisiert | 
| Gesamtmiete: | 3.490,00 € | 
| Kaltmiete (netto): | 3.172,73 € | 
| Kaltmiete: | 3.172,73 € | 
| Provision: | Gemäß Erstauftraggeberprinzip bezahlt der Abgeber die Provision. | 
| MwSt Gesamt: | 317,27 € | 
| Wohnfläche: | 183,19 m² | 
| Grundstücksfl.: | 1.000,00 m² | 
| Lagerfläche: | 86,20 m² | 
| Zimmer: | 6 | 
| Bäder: | 2 | 
| WC: | 3 | 
| Balkone: | 1 | 
| Terrassen: | 1 | 
| Stellplätze: | 1 | 
| Garten: | 600,00 m² | 
| Keller: | 86,20 m² | 
Ausstattung
Fliesen, Parkett, Gas, Etagenheizung, Kamin, Einbauküche, Bad mit Fenster, Badewanne, Dusche, Parkplatz
Ihre persönliche Beratung
 
                                                        Johanna Obkircher
WH2 Immobilienverwertungs GmbH
H +43 676 316 37 08
 
                 
                 
                 
                 
                 
                 
                 
                 
                 
                 
                 
                 
                 
                 
                 
                 
                 
                 
                 
                 
                 
                 
                 
                 
                 
                 
                 
                 
                