Wohlfühlen leicht gemacht – Schlüsselfertige Doppelhaushälfte in Traumlage am Walchsee
Haus
- Doppelhaushälfte,
6344
Walchsee
Walchsee, eingebettet in die atemberaubende Kulisse der Tiroler Alpen, ist ein wahres Juwel für Naturliebhaber und Ruhesuchende. Umgeben von der majestätischen Bergkulisse des Zahmen Kaisers, bietet Walchsee nicht nur einen malerischen Ausblick, sondern auch ein breites Spektrum an Freizeitmöglichkeiten. Ob Wandern, Radfahren oder einfach nur die Natur genießen – die Region bietet zahlreiche Aktivitäten für jede Jahreszeit. In unmittelbarer Nähe finden Sie die Zahme Kaiser Liftanlage und die spannende Sommerrodelbahn, ideal für Abenteuer und Familienausflüge. Zusätzlicher Spaß für die ganze Familie wird durch die aufregende Trampolinhalle in der Nähe garantiert!
Beschreibung der Immobilie
Wohlfühlen leicht gemacht – Schlüsselfertige Doppelhaushälfte in Traumlage am Walchsee
Wohlfühlen leicht gemacht – Schlüsselfertige Doppelhaushälfte in Traumlage am Walchsee
Das Haus wird in ökologischer Holzständerbauweise errichtet – eine Bauweise, die für gesunde Wohnatmosphäre, hohe Energieeffizienz und Langlebigkeit steht.
Für ein optimales Raumklima sorgen eine kontrollierte Wohnraumlüftung und eine moderne Luftwärmepumpe in Kombination mit einer komfortablen Fußbodenheizung in allen Räumen. So wohnen Sie das ganze Jahr über behaglich und energiesparend.
Großflächige 3-fach-verglaste Fenster – im Wohnzimmer teils bodentief – durchfluten das Haus mit Tageslicht und schaffen ein helles, freundliches Wohngefühl. Der offene Wohn-Essbereich im Erdgeschoss bietet direkten Zugang zur sonnigen Terrasse und dem privaten Garten – ideal zum Entspannen und Genießen.
Schon beim Eintreten spürt man die Qualität: Edle Parkettböden in den Wohnräumen, stilvolle großformatige Fliesen in Bad und WC, sowie eine hochwertige Sanitärausstattung inklusive bodengleicher Dusche und Fenster sorgen für Komfort und zeitloses Design.
Der Sonnenschutz ist elektrisch steuerbar – perfekt für warme Sommertage. Ein geräumiges Carport kann optional mitgeplant werden und bietet Schutz für Ihr Fahrzeug sowie zusätzlichen Stauraum.
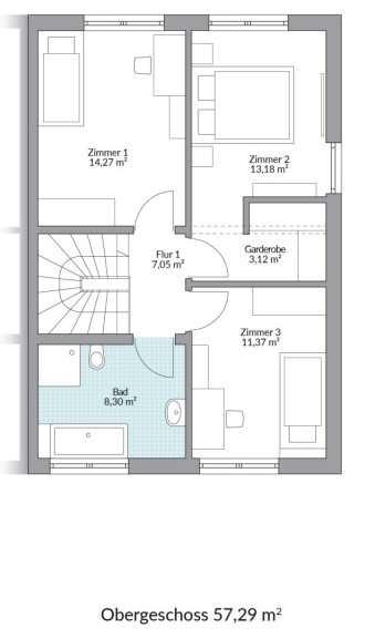
Im Obergeschoss finden Sie ein großzügiges Master Bedroom mit Ankleide, zwei weitere flexibel nutzbare Zimmer sowie ein modernes Badezimmer mit Fenster, bodengleicher Dusche, WC und Waschtisch – funktional und elegant zugleich.
Für dieses Bauvorhaben ist unter Erfüllung der persönlichen Voraussetzungen die Eigenheimförderung des Land Tirols möglich
Aufteilung:
Über ein elegantes Podest erreichen Sie die einladende Garderobe. Zur linken Seite finden Ihre Gäste eine komfortable Toilette. Rechts gelangen Sie in den Technikraum, der mit einem Warmwasserspeicher ausgestattet ist und Platz für Ihre Waschmaschine sowie zusätzlichen Stauraum bietet.
Nach der stilvollen Holztreppe führt Sie der Weg in den lichtdurchfluteten Wohn- und Essbereich. Große Fenster sorgen hier für ein helles, freundliches Ambiente und bieten Ihnen einen direkten Zugang zur Terrasse und dem eigenen Garten.
Genießen Sie von dort aus den atemberaubenden Blick auf den Zahmen Kaiser und verbringen Sie entspannte Stunden im Freien.
Im ersten Obergeschoss erwartet Sie das großzügige Master Bedroom mit einer praktischen Ankleide und viel Raum für Ihre persönlichen Bedürfnisse. Zusätzlich stehen Ihnen zwei weitere Schlafzimmer oder Büros zur Verfügung.
Das Badezimmer ist mit einem Waschbecken, einer bodengleichen Dusche, einem WC und einem Fenster ausgestattet, welches für Tageslicht sorgt.
Zusammenfassung der Highlights dieses Hauses:
- 3 Schlafzimmer
- Parkettböden
- großformatige Fliesen
- effiziente Luftwärmepumpe
- Fußbodenheizung
- Holzständerbauweise
- geräumiges Carport (optional)
- traumhafter Garten
- Fenster mit 3-fach Verglasung
- kontrollierte Wohnraumlüftung
Vereinbaren Sie noch heute einen Besichtigungstermin und lassen Sie sich von diesem Wohntraum überzeugen!
Weitere tolle Immobilienangebote finden Sie auf zefi.at
Noch nichts gefunden? Wir informieren Sie über geeignete Immobilienangebote noch vor allen anderen.
Legen Sie jetzt Ihren individuellen Suchagenten unter folgendem Link an. Wir schicken Ihnen passende Immobilien exklusiv vorab zu.
Suchagent anlegen - https://zefi-immobilien.service.immo/registrieren/de
Wir weisen darauf hin, dass zwischen dem Vermittler und dem zu vermittelnden Dritten ein familiäres oder wirtschaftliches Naheverhältnis besteht.
Der Vermittler ist als Doppelmakler tätig.
Infrastruktur / Entfernungen
Gesundheit
Arzt <1.500m
Apotheke <1.500m
Kinder & Schulen
Schule <2.500m
Kindergarten <2.000m
Nahversorgung
Supermarkt <1.000m
Bäckerei <2.500m
Sonstige
Bank <2.000m
Post <1.500m
Geldautomat <6.500m
Polizei <6.500m
Verkehr
Bus <500m
Autobahnanschluss <7.500m
Bahnhof <9.000m
Angaben Entfernung Luftlinie / Quelle: OpenStreetMap
Eckdaten Objektnr. 5390/1000
Art: | Haus - Doppelhaushälfte |
Land: | Österreich |
Baujahr: | 2024 |
Zustand: | Projektiert |
Alter: | Neubau |
Kaufpreis: | 615.000,00 € |
Kaufpreis / m²: | 5.314,55 € |
Provision: | 3% des Kaufpreises zzgl. 20% USt. |
Wohnfläche: | 115,72 m² |
Nutzfläche: | 115,72 m² |
Grundstücksfl.: | 265,96 m² |
Zimmer: | 4 |
Bäder: | 1 |
WC: | 1 |
Terrassen: | 1 |
Stellplätze: | 2 |
Heizwärmebedarf: | B 30,40 kWh/m²a |
fGEE: | A+ 0,65 |
Ausstattung
Fliesen, Parkett, Zentralheizung, Bad mit Fenster, Badewanne, Dusche, Kabel/Satelliten-TV, Carport
Ihre persönliche Beratung

Klaudio Zefi
Zefi Immobilien GmbH
T +43 5332 22818
H +43 699 16 18 75 75