Beschreibung der Immobilie
Business Center: Bürofläche direkt an der Dresdner Straße
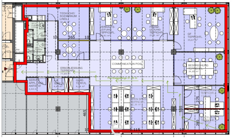
Das 2007 erricchtete Bürogebäude verfügt über eine Gesamtmietfläche von rd. 22.049,00m². Das zur Verfügung stehende Büro befindet sich im BC 20. Unter dem Bürogebäude finden in einer 2-geschoßigen Tiefgarage 415 Pkws platz. Dadurch sind für Geschäftspartner, Kunden und Angstelle immer ausreichende Parkplätze gewährt.
Die Bürofläche ist flexibel gestaltbar. Die TRakttiefe von 16m ermöglicht maximale Offenheit, lichtdurchflutete Räume und optimal auf die Mietbedürfnisse zugeschnittene Büroorganisationsformen. Effiziente Energienutzung wird durch eine energiesparende Bauteilkühlung gewährleistet. Für den Individualkomfort der Nutzer bestehen offenbare Fenster.
Bei dem Erschließungsgebiet "Dresdner Spange" mit der Dresdner Straße als Verbrindungsachse zwischen dem 2. und 19. Wiener Gemeindebezirk trifft eine strategisch günstige Lage auf eine ausgezeichnete Infrastrktur. In unmittelbarer Nähe gibt es diverse Geschäfte, Hauptpostamt und Banken. Ein Lebensmittel- und Drogeriefachgeschäft befindet sich direkt im Business Center. Ein paar Schritte weiter erhält mana uch erstklassige medizinische Versorgung durch Apotheke, Ärztezentrum und Krankenhaus. Die optimale Verkehrsanbindung macht das BC 20 zu einer erstklassigen Business Location in Wien. Der Zugang zur U-Bahn-Linie U6 befindet sich in unmittelbarer Nähe.
Sollten wir Ihr Interesse geweckt haben, dann vereinbaren Sie noch heute einen Besichtigungstermin inklusive persönlichem Beratungsgespräch!
Bitte beachten Sie, dass wir aufgrund der Nachweispflicht gegenüber dem Eigentümer nur Anfragen mit vollständiger Angabe ihrer Kontaktdaten (Anschrift, Telefonnummer, E-Mailadresse) bearbeiten können.
Sophie Mayerhofer, 0677/6485 5412
Haftungserklärung zum Inserat:
Wir weisen darauf hin, dass alle Angaben nach bestem Wissen und Gewissen erstellt wurden. Für Auskünfte und Angaben, die uns von Seiten der Eigentümer und Dritten zur Verfügung gestellt wurden, übernehmen wir keine Haftung. Dieses Angebot ist unverbindlich und freibleibend. Zwischenverwertung, Irrtum, Druckfehler und Änderungen vorbehalten. Sofern es sich bei Bildern um Visualisierungen handelt, können Abänderungen zur tatsächlichen Ausführung resultieren.
Noch nichts gefunden? Wir informieren Sie über geeignete Immobilienangebote noch vor allen anderen.
Legen Sie jetzt Ihren individuellen Suchagenten unter folgendem Link an. Wir schicken Ihnen passende Immobilien exklusiv vorab zu.
Suchagent anlegen - https://eurea-real-estates.service.immo/registrieren/de
Wir weisen darauf hin, dass zwischen dem Vermittler und dem zu vermittelnden Dritten ein familiäres oder wirtschaftliches Naheverhältnis besteht.
Der Vermittler ist als Doppelmakler tätig.
Infrastruktur / Entfernungen
Gesundheit
Arzt <500m
Apotheke <500m
Klinik <500m
Krankenhaus <500m
Kinder & Schulen
Schule <500m
Kindergarten <500m
Universität <500m
Höhere Schule <1.000m
Nahversorgung
Supermarkt <500m
Bäckerei <500m
Einkaufszentrum <500m
Sonstige
Geldautomat <500m
Bank <500m
Post <500m
Polizei <1.000m
Verkehr
Bus <500m
U-Bahn <500m
Straßenbahn <500m
Bahnhof <500m
Autobahnanschluss <1.500m
Angaben Entfernung Luftlinie / Quelle: OpenStreetMap
Eckdaten Objektnr. 6244/870
Art: | Büro / Praxis - Bürofläche |
Land: | Österreich |
Kaltmiete (netto): | 5.527,50 € |
Kaltmiete: | 7.035,00 € |
Miete / m²: | 16,50 € |
Provision: | 3 Bruttomonatsmieten zzgl. 20% USt. |
Betriebskosten: | 1.507,50 € |
MwSt Gesamt: | 1.407,00 € |
Nutzfläche: | 335,00 m² |
Heizwärmebedarf: | 63,00 kWh/m²a |
Ausstattung
Doppelboden
Ihre persönliche Beratung

Sophie Mayerhofer
COORE-GC Real Estate GmbH
T +4367764855412