Bungalow, 4 Zimmer, 2 Kfz Stellplätze, Seezugang, Fertigstellungsarbeiten nötig
Haus
- Einfamilienhaus,
2491
Hornstein
Sonnige Lage, Grünlage, Stadtrand/Ortsrand, Seenähe, Ruhelage
Beschreibung der Immobilie
Bungalow, 4 Zimmer, 2 Kfz Stellplätze, Seezugang, Fertigstellungsarbeiten nötig
Bungalow mit 3-4 Zimmern, Terrasse, 2 Kfz Stellplätzen, Seezugang, Fertigstellungsarbeiten noch nötig!
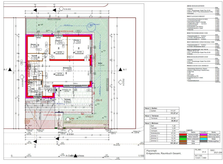
In der Seesiedlung XV in 2491 Hornstein, kommt dieser auf einer Eckparzelle gelegene Bungalow zum Verkauf. Der gesamte Rohbau, Zwischenwände, Vollwärmeschutz, Eingangstüre und Fenster inkl. Insektenschutz und elektrischer Beschattung sowie das Dach und der Gartenzaun wurden bereits fertiggestellt. Folgende Arbeiten müssen noch ausgeführt werden: Elektroinstallationen (Strombock und Stromzähler bereits vorhanden), Sanitärinstallationen inkl. Fußbodenheizung und Wärmepumpe, Estrich, Innenputz und Malerei, Silikatputz außen (Material hierfür bereits vorhanden), Terrasse und Kfz-Stellplätze betonieren sowie div. kleinere Fertigstellungsarbeiten und Gestaltung Garten.
Dieses Haus wurde auf einer ca. 300m² großen Eckparzelle (nur einen direkten Nachbarn) der Esterhazy´schen Feriensiedlung, Weekendsiedlung III, am Neufelder See errichtet. Es verfügt über ca. 102m² Wohnfläche und gliedert sich in:
Vorraum, Bad, Technikraum, Wohnküche und 2 oder 3 Schlafzimmer (je nach Bedarf).
In wenigen Minuten ist der Neufelder See fußläufig erreichbar, dessen Zutritt in den jährlich zu entrichtenden Kosten von ca. 3.200,-- inkludiert ist (diese Kosten beinhalten: Pacht/Miete, Grundsteuer, Badekarte, Grünflächenbetreuung, Kanalbenützung, Straßenbeleuchtung und Winterdienst).
Der Pachtvertrag läuft auf 10 Jahre mit einer Verlängerungsoption auf weitere 10 Jahre.
Sie haben hier die Möglichkeit mit Eigenleistung bzw. überschaubaren Fertigstellungsarbeiten ein sehr günstiges Eigenheim zu schaffen mit der privilegierten Situation der Benützung des in wenigen Minuten erreichbaren Neufelder Sees.
Sollten Sie noch Fragen haben, oder das Haus besichtigen wollen, freue ich mich auf Ihre Anfrage.
Michael Vajk, vajk@netmakler.at, Tel. 0676 7282020
Der Vermittler ist als Doppelmakler tätig.
Infrastruktur / Entfernungen
Gesundheit
Arzt <1.500m
Apotheke <1.500m
Klinik <4.000m
Krankenhaus <9.500m
Kinder & Schulen
Schule <1.500m
Kindergarten <2.500m
Universität <9.500m
Nahversorgung
Supermarkt <1.500m
Bäckerei <1.500m
Sonstige
Bank <1.500m
Geldautomat <1.500m
Post <1.500m
Polizei <2.000m
Verkehr
Bus <1.000m
Autobahnanschluss <2.000m
Bahnhof <1.500m
Angaben Entfernung Luftlinie / Quelle: OpenStreetMap
Eckdaten Objektnr. 1858/10136
Art: | Haus - Einfamilienhaus |
Land: | Österreich |
Baujahr: | 2024 |
Zustand: | Erstbezug |
Kaufpreis: | 144.900,00 € |
Provision: | 3% des Kaufpreises zzgl. 20% USt. |
Wohnfläche: | 102,00 m² |
Grundstücksfl.: | 300,00 m² |
Gesamtfläche: | 102,00 m² |
Zimmer: | 4 |
Bäder: | 1 |
WC: | 1 |
Stellplätze: | 2 |
Garten: | 112,00 m² |
Heizwärmebedarf: | B 48,00 kWh/m²a |
fGEE: | A+ 0,66 |
Ausstattung
Parkplatz
Ihre persönliche Beratung

Michael Vajk
Amadeus Immobilien GmbH
H +43 676 / 7282020