Beschreibung der Immobilie
Wohn(t)raum in Favoriten – sonnig, charmant, sorgenfrei
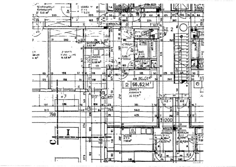
Wohnfläche: ca. 57 m²
Zimmer: 2,5
Kaufpreis: € 225.000
Energiekennzahlen: HWB 51,3 kWh/m²a | Klasse C | fGEE 1,27
Diese gepflegte Eigentumswohnung befindet sich in einem gut erhaltenen Neubau und bietet auf rund 57 m² alles, was modernes und praktisches Wohnen ausmacht. Der helle Wohnbereich, das ruhige Schlafzimmer, die separate Küche und ein praktischer Abstellraum schaffen ein harmonisches Gesamtpaket. Große Fensterflächen sorgen für ein freundliches, lichtdurchflutetes Ambiente.
Der durchdachte Grundriss und der gepflegte Zustand unterstreichen den wohnlichen Charakter dieser Immobilie.
Laufend modernisiert & zukunftsfit
Das Haus wird laufend instand gehalten. Nach dem frischen Anstrich des hofseitigen Steildachs im Jahr 2024 ist im kommenden Jahr die straßenseitige Fassade an der Reihe. Die Wohnung wird derzeit mit einer Gas-Zentralheizung beheizt. Ein neues Energiekonzept ist bereits beauftragt und wird in Kürze vorgelegt, um eine nachhaltige und effiziente Heizlösung sicherzustellen.
Auch die Heizungsumstellung ist in Planung. Das Energiekonzept liegt in Kürze vor, um eine zukunftsorientierte und effiziente Lösung umzusetzen.
Die Reparaturreserve beträgt aktuell rund 958.000 Euro, was die solide wirtschaftliche Basis und die nachhaltige Instandhaltung des Gebäudes garantiert. Eine Gemeinschaftswaschküche mit fairen Nutzungspreisen rundet das Angebot ab.
Lage
Die Wohnung befindet sich in einer sehr guten Lage in Wien-Favoriten mit ausgezeichneter Infrastruktur. Öffentliche Verkehrsmittel, Einkaufsmöglichkeiten und Freizeitangebote sind fußläufig erreichbar.
Warum diese Wohnung?
✅ Sonnig und gut geschnitten
✅ Gepflegter Zustand – sofort einziehen
✅ Sorglos dank - hohe Rücklagen 
✅ Infrastruktur: Alles, was Sie brauchen, liegt vor der Tür (öffentliche Anbindung, Nahversorgung, Freizeit)
Das perfekte Zuhause für...
... Singles, Paare oder junge Familien, die eine solide Eigentumswohnung mit Entwicklungspotenzial und wertbeständiger Lage suchen.
Besichtigung
Diese Immobilie könnte Ihr neues Zuhause werden. Gerne lade ich Sie zu einer persönlichen Besichtigung ein, um sich selbst von den Vorzügen dieser Wohnung zu überzeugen. Ich freue mich auf Ihre Kontaktaufnahme.
Der Vermittler ist als Doppelmakler tätig.
Infrastruktur / Entfernungen
Gesundheit
Arzt <500m
Apotheke <500m
Klinik <500m
Krankenhaus <2.000m
Kinder & Schulen
Schule <500m
Kindergarten <500m
Universität <1.000m
Höhere Schule <2.500m
Nahversorgung
Supermarkt <500m
Bäckerei <500m
Einkaufszentrum <1.000m
Sonstige
Geldautomat <500m
Bank <500m
Post <500m
Polizei <500m
Verkehr
Bus <500m
U-Bahn <500m
Straßenbahn <500m
Bahnhof <500m
Autobahnanschluss <2.000m
Angaben Entfernung Luftlinie / Quelle: OpenStreetMap
Eckdaten Objektnr. 8014/308
| Art: | Wohnung | 
| Land: | Österreich | 
| Baujahr: | 1969 | 
| Zustand: | Gepflegt | 
| Alter: | Neubau | 
| Kaufpreis: | 225.000,00 € | 
| Provision: | 3% des Kaufpreises zzgl. 20% USt. | 
| Betriebskosten: | 101,79 € | 
| Heizkosten: | 49,61 € | 
| MwSt Gesamt: | 20,00 € | 
| Wohnfläche: | 56,62 m² | 
| Zimmer: | 2,50 | 
| Heizwärmebedarf: | C 51,30 kWh/m²a | 
| fGEE: | C 1,27 | 
Ausstattung
Fliesen, Laminatboden, Personenaufzug
Ihre persönliche Beratung
 
                                                        BA Rafaela Simic
FiFu24 Immobilien GmbH
T +43 6763802529
H +43 6763802529
 
                 
                 
                 
                 
                