Naschmarkt-Living | Exklusive Maisonette mit Terrasse, Panoramablick & Wintergarten !
Wohnung
,
1040
Wien
In unmittelbarer Nähe zum Naschmarkt und zu Fuß in wenigen Schritten im 1. Bezirk! Schlendern Sie durch den herrlichen Markt mit frischen Köstlichkeiten aus der ganzen Welt. Genießen Sie frisch zubereitete Speisen in den unzähligen hippen Lokalen oder gönnen Sie sich einen Abendspaziergang rund um die Oper und prominieren Sie auf der Kärntner Straße. U4 Kettenbrückengasse ca. 3 Gehminuten entfernt, U1 und U2 Karlsplatz ca. 7 Gehminuten, Straßenbahnlinie 1 ca. 8 Gehminuten, Linie 62 ca 10 Gehminuten, und Busse Linie 59 in ca 3 Minuten. Perfekte Infrastruktur mit Geschäften des täglichen Bedarfs in unmittelbarer Umgebung.
Beschreibung der Immobilie
Naschmarkt-Living | Exklusive Maisonette mit Terrasse, Panoramablick & Wintergarten !
Lichtdurchflutetes Penthouse über zwei Dachgeschoße mit sensationellem Blick und ruhiger Privatterrasse in Bestlage. Alle Schlafräume OHNE DACHSCHRÄGEN!
Diese eindrucksvolle Maisonettewohnung vereint großzügiges Raumgefühl, lichtdurchflutetes Wohnen und höchste Privatsphäre – ein wahres Refugium mitten in der Stadt. Die zentrale Lage in einem der begehrtesten Bezirke Wiens sorgt für eine perfekte Balance aus urbanem Leben und ruhigem Rückzugsort – die berühmte Kärntnerstraße ist in nur 10 Minuten bequem zu Fuß erreichbar.
Die sonnige Terrasse mit Südwest-Ausrichtung öffnet sich zum ruhigen Innenhof und ist direkt vom großzügigen Wohnbereich aus zugänglich. Ein besonderes Highlight: Der angrenzende Wintergarten mit nordwestlicher Ausrichtung bietet auch in der kühleren Jahreszeit einen geschützten Rückzugsort – ideal für Pflanzenliebhaber oder als ganzjähriger Wohlfühlbereich mit besonderem Flair.
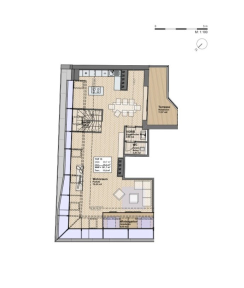
2. Dachgeschoß:
Der eindrucksvolle Wohnsalon mit rund ca. 78 m² und dem traumhaften Fernblick über Wien sowie die ruhige ca. bildet das Herzstück der Wohnung. Der benachbarte Naschmarkt sorgt für kulinarische Erlebnisse mit Stil. Abends genießen Sie hier ein einzigartiges Panorama über das Lichtermeer der Stadt.
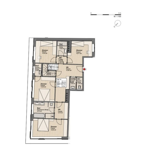
Im unteren Bereich der Wohnung (1. DG OHNE DACHSCHRÄGEN) befinden sich vier großzügige Schlafzimmer, die durchdacht und funktional angeordnet sind:
Das Master Bedroom verfügt über ein eigenes Badezimmer mit Tageslicht (Dusche & Badewanne) sowie einen begehbaren Schrankraum.
Ein weiteres Schlafzimmer punktet mit eigenem Bad (Dusche, Fenster).
Zwei weitere Zimmer teilen sich ein komfortables Bad mit Wanne.
Komfort auf höchstem Niveau garantieren Fußbodenheizung und eine moderne Klimatisierung mittels Fan Coils.
Highlights auf einen Blick:
Lichtdurchfluteter Wohnsalon mit Terrasse & Wintergarten auf Wohnebene
Traumhafte Panoramaaussicht über Wien
Exklusive Lage nahe Naschmarkt & Innenstadt
Drei elegante Badezimmer mit Tageslicht
4 großzügige Schlafzimmer, durchdachter Grundriss, keine Dachschrägen
Klimatisierung & Fußbodenheizung für ganzjährigen Komfort
Jetzt Besichtigung vereinbaren und Ihr Zuhause finden
Lassen Sie sich persönlich beraten und entdecken Sie, welches Zuhause zu Ihnen passt.
Herr Kraus Philipp steht Ihnen für individuelle Besichtigungstermine gerne zur Verfügung:
📞 +43 664 2206915
🌐 www.ringsmuth-immobilien.at
Irrtum und Änderungen vorbehalten !
Wir weisen darauf hin, dass zwischen dem Vermittler und dem zu vermittelnden Dritten ein familiäres oder wirtschaftliches Naheverhältnis besteht.
Der Vermittler ist als Doppelmakler tätig.
Infrastruktur / Entfernungen
Gesundheit
Arzt <500m
Apotheke <500m
Klinik <500m
Krankenhaus <1.500m
Kinder & Schulen
Schule <500m
Kindergarten <500m
Universität <500m
Höhere Schule <1.000m
Nahversorgung
Supermarkt <500m
Bäckerei <500m
Einkaufszentrum <1.000m
Sonstige
Geldautomat <500m
Bank <500m
Post <500m
Polizei <500m
Verkehr
Bus <500m
U-Bahn <500m
Straßenbahn <500m
Bahnhof <500m
Autobahnanschluss <3.500m
Angaben Entfernung Luftlinie / Quelle: OpenStreetMap
Eckdaten Objektnr. 15924
Art: | Wohnung |
Land: | Österreich |
Kaufpreis: | 1.550.000,00 € |
Provision: | 3% des Kaufpreises zzgl. 20% USt. |
Betriebskosten: | 408,87 € |
MwSt Gesamt: | 44,23 € |
Wohnfläche: | 192,00 m² |
Nutzfläche: | 204,00 m² |
Zimmer: | 5 |
Bäder: | 3 |
WC: | 3 |
Terrassen: | 1 |
Heizwärmebedarf: | B 39,40 kWh/m²a |
Ausstattung
Fliesen, Parkett, Fußbodenheizung, Wohnküche / offene Küche, Personenaufzug, Bad mit Fenster, Badewanne, Dusche
Ihre persönliche Beratung

Philipp Kraus
Alexander Ringsmuth GmbH
T +43 1 3709098
H +43 664 2206915