Ein Ort zum Wohlfühlen in Tattendorf – mit Garten, Pool und Charme!
Haus
- Reihenhaus,
2523
Tattendorf
Beschreibung der Immobilie
Ein Ort zum Wohlfühlen in Tattendorf – mit Garten, Pool und Charme!
Willkommen in Tattendorf – wo ländliche Ruhe auf modernen Wohnkomfort trifft! Dieses gepflegte Reihenhaus aus dem Jahr 1998 bietet mit rund 130 m² Wohnfläche und einem großzügigen Garten samt Pool die ideale Wohnlösung für Familien oder Paare. Durchdacht geschnittene Räume, ein gemütlicher Außenbereich sowie ein vielseitig nutzbarer Keller schaffen ein behagliches Zuhause mit Platz für Entfaltung. Die idyllische Lage mit guter Anbindung nach Wien oder Wiener Neustadt rundet dieses attraktive Angebot perfekt ab – für alle, die das Beste aus Stadt- und Landleben vereinen möchten.
Highlights auf einen Blick:
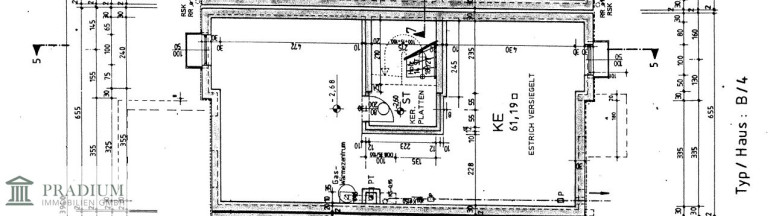
Großzügiger Keller mit 61 m² – ideal als Stauraum, Hobbyraum oder Fitnessbereich
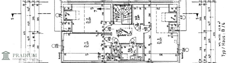
Durchdachte Raumaufteilung – perfekt für Familien, Paare oder Homeoffice-Nutzung
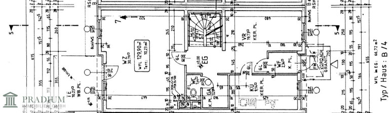
Westseitiger Garten mit herrlicher 24 m² überdachter Terrasse – sonnig, ruhig und privat
Eigener Pool mit charmantem Gartenhaus – Urlaubsfeeling im eigenen Zuhause
Privater PKW-Stellplatz – bequem und alltagstauglich
Moderne Küche mit offenem Wohn-Essbereich – lichtdurchflutet und einladend
Gäste-WC im Erdgeschoss – praktisch für den Alltag
Gute Verkehrsanbindung – in wenigen Minuten auf der A2, Bus und Bahn fußläufig erreichbar
Grüne Ruhelage mit Wien-Nähe – entspannen im Grünen, schnell in der Stadt
Lage
Das Reihenhaus liegt ruhig und dennoch verkehrsgünstig im Herzen von Tattendorf. Öffentliche Verkehrsmittel sind fußläufig erreichbar: Der Bahnhof Tattendorf (Linie 720/R95 Richtung Wien und Wiener Neustadt) ist nur 9 Gehminuten entfernt, ebenso wie mehrere Bushaltestellen (Linien 310 und 326). Mit dem Auto erreicht man in wenigen Minuten die A2 Südautobahn – ideal für Pendler nach Wien, Baden oder Wiener Neustadt. Eine Tankstelle mit E-Ladestation befindet sich direkt im Ort. Ein Nahversorger (Tankstellenshop), ein BILLA direkt im Ort sowie der nahegelegene PENNY-Markt in Oeynhausen decken den täglichen Bedarf ab. Größere Einkaufsmöglichkeiten finden sich in Oeynhausen, Baden, Leobersdorf oder in der nahegelegenen Shopping City Süd (SCS). Tattendorf verfügt über einen Kindergarten im Ort, während Volksschule und Mittelschule im benachbarten Teesdorf liegen und bequem mit dem Bus erreichbar sind. Spazierwege, der Dumba-Park sowie Sporteinrichtungen in Teesdorf und Oberwaltersdorf bieten vielfältige Freizeitmöglichkeiten – ideal für Familien, Naturfreunde und Ruhesuchende mit guter Stadtanbindung.
Rechtliches:
Bitte beachten Sie, dass wir aufgrund der gesetzlichen Nachweispflicht gegenüber dem Eigentümer Anfragen nur mit vollständigen Angaben (Name, Adresse, Telefon und Mail Adresse) bearbeiten können. Wir sind als Doppelmakler tätig! Hinweis zu Widerrufsrecht, Rücktrittsrecht bei Fern- und Auswärtsgeschäften: Gem. §11 FAGG (Fern- und Auswärtsgeschäftegesetz) kann der Interessent innerhalb von 14 Tagen vom Vertrag zurücktreten. Wünscht der Interessent mit der Kontaktaufnahme ein vorzeitiges Tätigwerden (Namhaftmachung und Adresse der Immobilie) des Immobilienbüros PRADIUM Immobilien innerhalb der offenen Rücktrittsfrist, nimmt er damit zur Kenntnis, das Rücktrittsrecht vom Maklervertrag gem. §11 FAGG zu verlieren. Grundsätzlich sei erwähnt, dass die Maklerprovision nur bei Zustandekommen eines Willensübereinkommens zwischen Verkäufer und Käufer (Kaufvertrag) gem. Makler Gesetz verrechnet wird. Bloße Besichtigungen sind absolut kostenlos.
Noch nichts gefunden? Wir informieren Sie über geeignete Immobilienangebote noch vor allen anderen.
Legen Sie jetzt Ihren individuellen Suchagenten unter folgendem Link an. Wir schicken Ihnen passende Immobilien exklusiv vorab zu.
Suchagent anlegen - https://pradium-immobilien.service.immo/registrieren/de
Der Vermittler ist als Doppelmakler tätig.
Infrastruktur / Entfernungen
Gesundheit
Arzt <2.500m
Apotheke <2.000m
Klinik <3.500m
Krankenhaus <6.000m
Kinder & Schulen
Kindergarten <2.000m
Schule <2.000m
Nahversorgung
Supermarkt <1.000m
Bäckerei <1.000m
Einkaufszentrum <7.000m
Sonstige
Bank <500m
Geldautomat <500m
Post <4.000m
Polizei <3.500m
Verkehr
Bus <1.000m
Bahnhof <1.000m
Autobahnanschluss <3.500m
Straßenbahn <5.500m
Flughafen <3.500m
Angaben Entfernung Luftlinie / Quelle: OpenStreetMap
Eckdaten Objektnr. 8230/132
Art: | Haus - Reihenhaus |
Land: | Österreich |
Baujahr: | 1998 |
Zustand: | Gepflegt |
Alter: | Neubau |
Kaufpreis: | 428.000,00 € |
Provision: | 3% des Kaufpreises zzgl. 20% USt. |
Betriebskosten: | 241,05 € |
MwSt Gesamt: | 24,11 € |
Wohnfläche: | 129,90 m² |
Nutzfläche: | 191,09 m² |
Zimmer: | 5 |
Bäder: | 1 |
WC: | 2 |
Terrassen: | 1 |
Stellplätze: | 1 |
Garten: | 134,88 m² |
Keller: | 61,19 m² |
Heizwärmebedarf: | C 57,20 kWh/m²a |
fGEE: | C 1,40 |
Ausstattung
Fliesen, Parkett, Gas, Einbauküche, Westbalkon, Badewanne
Ihre persönliche Beratung

Liam Lewis-Weber
PRADIUM Immobilien GmbH & Co KG
T +436648662666