Beste Adresse! Helle Maisonette Wohnung mit Balkon, Wintergarten und Terrasse mit Blick zum Stephansdom
Wohnung
,
1010
Wien
,
Kärntner Ring
Kärntner Ring 1010 Wien in unmittelbarer Nähe von Oper, Hotel Bristol, Kärntner Strasse, Karlsplatz und Stephandsdom Anbindung: 2A, 1, D, 71, U1, U2, U4,62, Badner Bahn, Parkpläzte und viele Tiefgaragen in unmittelbarer Nähe
Beschreibung der Immobilie
Beste Adresse! Helle Maisonette Wohnung mit Balkon, Wintergarten und Terrasse mit Blick zum Stephansdom
In einem äusserst repräsentativen Jahrhundertwendehaus kommt diese helle Maisonette Wohnung mit Klimagerät, Balkon, Wintergarten und Dachterrasse mit Blick zum Stephandsdom zur Vermietung.
Die wunderschöne und sonnendurchflutete Maisonette Wohnung auf 165 m2 mit Balkon, Wintergarten und einer 51 m2 großen Dachterrasse ist in perfekter Lage am Kärntner Ring mit Blick zum Stephansdom - Nähe Oper, Hotel Bristol, Karlsplatz, Stephansplatz und Kärntner Straße.
Durch den Dachausbau wurde eine wunderschöne Wohnung auf 3 Etagen plus Wintergarten und großer Dachterrasse mit Blick zum Stephansdom geschaffen.
Die Miete beträgt Pauschal € 3.700,- inkl. Hausbetriebskosten.
Die Wohnung ist möbliert und wird auf 5 Jahre befristet vermietet.
Ein Mietbeginn ab SOFORT möglich.
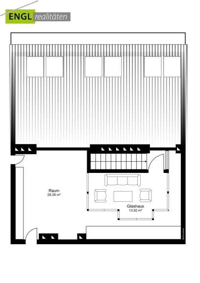
Raumaufteilung:
- Großer Eingangsbereich, WC mit Handwaschbecken und Technikraum (neuwertige Junkers Therme und Warmwasserboiler)
- Offene Garderobe mit Durchgang in die Küche
- Kleines Büro inkl. Einbauschränke
- Großes Wohnzimmer inklusive weißem Klavier von Schimmel (kann auf Wunsch entfernt werden), Esstisch für 6-8 Personen, 3 Ausgänge auf den Balkon mit Blick Richtung Südwesten und Karlskirche, Klimagerät
- Großzügige Einbauküche mit Fenster, inkl. aller Geräte (Herd, AEG Backrohr, AEG Kühlschrank und Gefrierfächer, AEG Einbau-Waschmaschine und Einbau-Trockner, AEG Geschirrspüler), Klimagerät
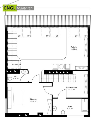
- Treppe in die offene Galerie, Loungebereich und Bücherregale ideal als 2. Wohnzimmer oder Bibliothek, mit Dachfenster (Blick Richtung Karlskirche) Klimagerät und Dachfenster mit Außenjalousie
- Schlafzimmer mit Fenster und Einbauschränke
- Großer begehbarer Kleiderschrank
- WC
- Badezimmer mit Wellnessdusche, Waschbecken und Bidet
- Aufgang in den Wintergarten mit Außenjalousien und Blick Richtung Stephansdom
- Ausgang auf die großer Terrasse mit Blick Richtung Oper, Stephansdom
Die Wohnung ist ausgezeichnet für ein bis zwei Personen geeignet. Das kleine Zimmer kann als Büro oder Gästezimmer verwendet werden.
Auch Arbeiten und Wohnen ist möglich!
Die Wohnung wird möbliert vermietet.
Ausstattung:
- hochwertige Möbel, Geräte und Einbauschränke
- Klimaanlage
- Fußbodenheizung
- Außenjalousie
Eine Besichtigung ist gerne in Absprache und rechtzeitiger Terminvereinbarung auch am Abend mit den wunderschönen Lichtern der Stadt oder am Wochenende möglich.
Virtueller Rundgang über youtube: https://youtu.be/-3yHIT4NG9A
Falls sich der Link bei Ihrem Portal nicht öffnet lässt, bitte kopieren sie den Link in den Browser
Noch nichts gefunden? Wir informieren Sie über geeignete Immobilienangebote noch vor allen anderen.
Legen Sie jetzt Ihren individuellen Suchagenten unter folgendem Link an. Wir schicken Ihnen passende Immobilien exklusiv vorab zu.
Suchagent anlegen - https://thomas-engl.service.immo/registrieren/de
Der Immobilienmakler erklärt, dass er – entgegen dem in der Immobilienwirtschaft üblichen Geschäftsgebrauch des Doppelmaklers – einseitig nur für den Vermieter tätig ist.
Infrastruktur / Entfernungen
Gesundheit
Arzt <200m
Apotheke <150m
Klinik <575m
Krankenhaus <1.150m
Kinder & Schulen
Schule <125m
Kindergarten <375m
Universität <175m
Höhere Schule <850m
Nahversorgung
Supermarkt <75m
Bäckerei <150m
Einkaufszentrum <75m
Sonstige
Geldautomat <100m
Bank <100m
Post <150m
Polizei <300m
Verkehr
Bus <75m
U-Bahn <175m
Straßenbahn <50m
Bahnhof <125m
Autobahnanschluss <3.150m
Angaben Entfernung Luftlinie / Quelle: OpenStreetMap
Eckdaten Objektnr. 7536/100
Art: | Wohnung |
Land: | Österreich |
Zustand: | Gepflegt |
Möbliert: | Voll |
Alter: | Altbau |
Gesamtmiete: | 3.700,00 € |
Kaltmiete (netto): | 3.700,00 € |
Kaltmiete: | 3.700,00 € |
Provision: | Gemäß Erstauftraggeberprinzip bezahlt der Abgeber die Provision. |
Wohnfläche: | 165,00 m² |
Nutzfläche: | 200,00 m² |
Zimmer: | 2,50 |
Bäder: | 1 |
WC: | 2 |
Balkone: | 1 |
Terrassen: | 1 |
Heizwärmebedarf: | C 93,90 kWh/m²a |
fGEE: | E 2,71 |
Ausstattung
Fliesen, Steinboden, Gas, Fußbodenheizung, Einbauküche, Personenaufzug, Bad mit Fenster, Dusche, DV-Verkabelung, Alarmanlage
Ihre persönliche Beratung

Petra Schwartz
Engl Realitäten GmbH
H +4366499734868