Beschreibung der Immobilie
| TERRASSE | BJ 1966 | SANIERUNGSBEDARF | WESTSEITIG |
Ideal für Paare, kleine Familien oder zur Vermietung nach Renovierung.
Informationen zum Objekt und Ausstattung
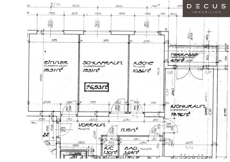
Diese westseitig-ausgerichtete, sinnvoll aufgeteilte 3-Zimmer-Wohnung mit ca. 76 m² Wohnfläche befindet sich in einem Gebäude aus den 1960er Jahren. Die Wohnung ist sanierungsbedürftig und bietet damit viel Potenzial zur individuellen Gestaltung.
Zudem befindet sich die Wohnung im Dachgeschoß, ohne Schrägen.
Ein Highlight ist die ca. 4 m² große Terrasse, die zum Entspannen im Freien einlädt. Die Wohnung verfügt über eine getrennte Küche separates WC sowie ein Badezimmer mit Handwaschbecken und Badewanne.
Beheizt wird die Einheit über eine zentrale Heizungsanlage. Der vorhandene Lift im Haus sorgt für komfortablen Zugang zur Wohnung.
Raumaufteilung
zentral begehbar
Wohnfläche: ca. 76 m²
Zimmer: 3 (ideal als Wohn-/Esszimmer, Schlafzimmer, Büro oder Kinderzimmer)
getrennte Küche
Badezimmer: mit Badewanne und Handwaschbecken
WC: separat
Außenbereich: ca. 4 m² Terrasse
Lage
Die Wohnung befindet sich in der Krebsengartengasse im 15. Wiener Gemeindebezirk Rudolfsheim-Fünfhaus, einem aufstrebenden Stadtteil mit urbanem Charakter und guter Infrastruktur.
In unmittelbarer Nähe befinden sich diverse Nahversorger, Cafés, Apotheken sowie Schulen und Kindergärten. Die Anbindung an den öffentlichen Verkehr ist ausgezeichnet: Die U-Bahn-Linie U3 (Station Schweglerstraße) sowie mehrere Bus- und Straßenbahnlinien sind fußläufig erreichbar und bieten schnelle Verbindungen ins Stadtzentrum oder zur Westbahnhof-Umgebung. Die U6 Burggasse ist in 15 Minuten fußläufig erreichbar.
Wir weisen darauf hin, dass zwischen dem Vermittler und dem zu vermittelnden Dritten ein familiäres oder wirtschaftliches Naheverhältnis besteht.
DECUS Immobilien GmbH – Wir beleben Räume
Für weitere Informationen und Besichtigungen steht Ihnen gerne Herr Ing. Nicolas Putzlager unter der Mobilnummer +43 660 302 61 70und per E-Mail unter putzlager@decus.at persönlich zur Verfügung.
www.decus.at | office@decus.at
Wichtige Informationen
Bitte beachten Sie, dass per 13.06.2014 eine neue Richtlinie für Fernabsatz- und Auswärtsgeschäfte in Kraft getreten ist.
Ab 1.4.2024 entfallen die Grundbuchs- und Pfandrechtseintragungsgebühren vorübergehend für Eigenheime bis zu einer Bemessungsgrundlage von EUR 500.000,-. Voraussetzung ist das dringende Wohnbedürfnis, ausgenommen davon sind vererbte oder geschenkte Immobilien. Die Befreiung ist jedoch für den Einzelfall zu prüfen, DECUS Immobilien übernimmt hierzu keine Haftung.
Ab 01.07.2023 gilt das Erstauftraggeber-Prinzip bei Wohnungsmietverträgen, ausgenommen davon sind Dienst-/Natural-/Werkswohnungen. Wir dürfen gem. § 17 Maklergesetz darauf hinweisen, dass wir auf die Doppelmaklertätigkeit gem. § 5 Maklergesetz bei Wohnungsmietverträgen verzichten und nur noch einseitig tätig sind (bei den restlichen Vermittlungsarten nicht) und ein wirtschaftliches Naheverhältnis zu unseren Auftraggebern besteht.
Im Falle eines Abschlusses mit Ihnen oder einem von Ihnen namhaft gemachten Dritten bzw. bei beidseitiger Willensübereinstimmung beträgt unser Honorar (lt. Honorarverordnung für Immobilienmakler) 2 Bruttomonatsmieten (BMM) bei Dienst-/Natural-/Werkwohnungen sowie Suchaufträgen, 3 BMM bei Gewerbe-, PKW- und Lagermietverträgen sowie bei Kaufobjekten 3 % des Kaufpreises, zuzüglich der gesetzlichen Umsatzsteuer.
Dieses Objekt wird Ihnen unverbindlich und freibleibend angeboten. Oben angeführte Angaben basieren auf Informationen und Unterlagen des Eigentümers und sind unsererseits ohne Gewähr.
Nähere Informationen sowie unsere AGBs und die Nebenkostenübersichtsblatt finden Sie auf unserer Homepage www.decus.at unter "Service" - "Rechtliches zum FAGG" sowie im Anhang der zugesendeten Objekt-Exposés!
Infrastruktur / Entfernungen
Gesundheit
Arzt <250m
Apotheke <250m
Klinik <1.000m
Krankenhaus <1.750m
Kinder & Schulen
Schule <500m
Kindergarten <250m
Universität <750m
Höhere Schule <1.000m
Nahversorgung
Supermarkt <250m
Bäckerei <500m
Einkaufszentrum <750m
Sonstige
Geldautomat <500m
Bank <500m
Post <500m
Polizei <500m
Verkehr
Bus <250m
U-Bahn <500m
Straßenbahn <250m
Bahnhof <500m
Autobahnanschluss <5.000m
Angaben Entfernung Luftlinie / Quelle: OpenStreetMap
Eckdaten Objektnr. 1149334
Art: | Wohnung |
Land: | Österreich |
Baujahr: | 1966 |
Alter: | Neubau |
Kaufpreis: | 374.900,00 € |
Provision: | 3% des Kaufpreises zzgl. 20% USt. |
Betriebskosten: | 194,11 € |
Heizkosten: | 145,20 € |
MwSt Gesamt: | 42,64 € |
Wohnfläche: | 76,53 m² |
Nutzfläche: | 80,70 m² |
Zimmer: | 3 |
Bäder: | 1 |
WC: | 1 |
Terrassen: | 1 |
Heizwärmebedarf: | C 61,30 kWh/m²a |
fGEE: | C 1,12 |
Ausstattung
Westbalkon
Ihre persönliche Beratung

Ing. Nicolas Putzlager
DECUS Immobilien GmbH
T +43 660 302 61 70
H +43 660 302 61 70
F +43 1 35 600 10