Großzügige & helle Büroflächen nähe Grüne Mitte
Büro / Praxis
- Bürofläche,
4040
Linz
,
Lastenstraße 36
Die Lastenstraße 36 befindet sich östlich vom Linzer Stadtzentrum gut angebunden nicht weit vom Hauptbahnhof. Die Lage ist sehr gut mit öffentlichem Verkehr erreichbar und die Autobahnauf-/abfahrt Wiener Straße & Prinz-Eugen-Straße sind wenige Minuten entfernt. Gastronomische Einrichtungen sowie Nahversorger finden sich ausreichend in fußläufiger Umgebung. Eine Ladezone befindet sich direkt vor dem Objekt.
Beschreibung der Immobilie
Großzügige & helle Büroflächen nähe Grüne Mitte
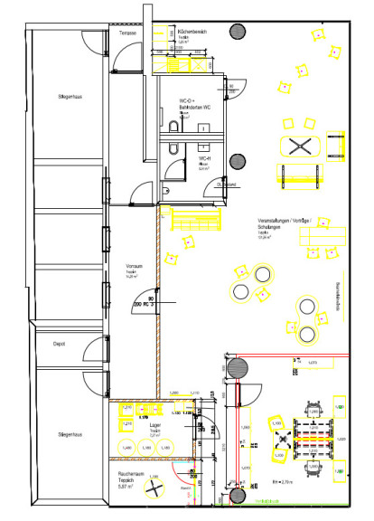
Helle und moderne, offene Büroflächen mit guter Infrastruktur - jetzt mieten!Zur Vermietung stehen helle und großzügig aufgeteilte Büroflächen im 1.OG eines modernen Bürogebäudes. Die Fläche zeichnet sich durch einen freundlichen, offenen Grundriss und hochwertigen Bürostandard aus - diese Ebene ist aktuell für Besprechungen ausgerichtet und kann für reine Büronutzung adaptiert werden.
Weitere Flächen sind im Haus bei Bedarf verfügbar.
Alle Einheiten sind bequem per Lift auch von der Tiefgarage erreichbar und verfügen über eine elektronisch gesteuerten Zugangskontrolle.
Die lichtdurchfluteten Flächen bieten optimale Voraussetzungen für ein produktives Arbeitsumfeld. Optional können Tiefgaragenplätze im Haus angemietet werden.
Die Nettomiete beträgt € 9,50/m², die BK € 2,87/m² + Heizkosten von ca. € 0,33/m².
Ideal für Unternehmen, die Wert auf moderne Infrastruktur und flexible Nutzungskonzepte legen.
Eckdaten Objektnr. 505250162_1
| Art: | Büro / Praxis - Bürofläche |
| Land: | Österreich |
| Baujahr: | 2004 |
| Gesamtmiete: | 2.588,65 € |
| Kaltmiete (netto): | 1.656,71 € |
| Miete / m²: | 9,50 € |
| Provision: | 3 BMM |
| Betriebskosten: | 500,50 € |
| Gesamtfläche: | 174,39 m² |
| Bürofläche: | 174,39 m² |
Ausstattung
Fernwärme, Personenaufzug
Ihre persönliche Beratung
Dieser Makler ist ein offizielles Mitglied des IR – ir.at Mehr Erfahren
